- 物件番号
- 259524-267156
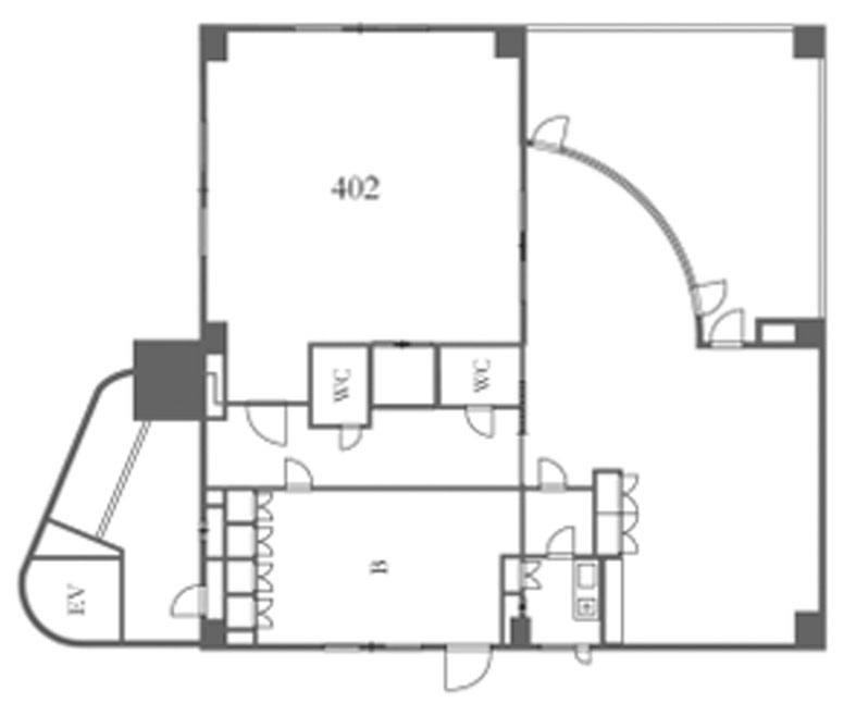
| 階数 | 402 |
|---|---|
| 用途/仕様 | 事務所 |
| 面積 | 24.52坪(81.06㎡) |
| 賃料 | 563,960円(23,000円/坪) |
| 共益費 | 込 |
| 保証金/敷金 | 6ヶ月 |
| 入居日 | 即 |
| 所在地 | 東京都港区六本木3-3-27 |
| 竣工 | 1991年11月 |
| 最寄り駅 |
東京メトロ南北線 六本木一丁目 徒歩 4分 東京メトロ日比谷線 六本木 徒歩 8分 |
| 構造 | RC造(鉄筋コンクリート造) |
ポイント
スハラ六本木ビルは、東京都港区六本木3丁目に位置する1992年竣工の賃貸オフィスビルです。地上4階・地下2階建てで、基準階面積は約102坪の広々としたオフィス空間を提供しております。東京メトロ南北線「六本木一丁目」駅から徒歩5分、都営大江戸線・東京メトロ日比谷線「六本木」駅から徒歩7分と、複数路線をご利用いただけます。
建物の外観はコンクリート打放しのモダンなデザインが特徴で、貸室内は天井が高く開放感のある空間が広がっております。エレベーターは1基設置されており、ビル内に駐車場を完備しているため、お車での通勤やお客様のご来訪にも便利です。
麻布通りから少し入った場所に立地しており、周辺は落ち着いた雰囲気のオフィス街です。六本木エリアならではの飲食店や商業施設も充実しており、ビジネス環境として大変優れた立地条件を備えております。
無料相談で理想のオフィスを見つけましょう
東京で賃貸オフィスをお探しなら、仲介手数料0円の東京オフィスチェックにお任せください。
移転をお考えの方も、お迷いの方も、メールフォームやお電話でお気軽にご相談ください。
スハラ六本木ビル のアクセス
スハラ六本木ビル の募集中区画
| 階数 | 面積 | 賃料 | 共益費 | 保証金/敷金 | 入居可能日 | 検討リスト | 詳細 | 問合せ |
|---|---|---|---|---|---|---|---|---|
| 2階 | 102.45坪 | 2,281,840円 | 込 | 6ヶ月 | 相談 | 詳細 > スハラ六本木ビル 2 (338.68㎡) |港区 の賃貸オフィス・セットアップオフィス | お問い合わせ > | |
| 402 | 24.52坪 | 563,960円 | 込 | 6ヶ月 | 即 | 詳細 > スハラ六本木ビル 402 (81.06㎡) |港区 の賃貸オフィス・セットアップオフィス | お問い合わせ > |
この区画にオススメのレイアウト
-
オフィスサンプルレイアウト120
- 広さ
- 30.2坪(100㎡)
- 会議室
- あり
- 従業員数
- 12
-
オフィスサンプルレイアウト118
- 広さ
- 40.2坪(133㎡)
- 会議室
- なし
- 従業員数
- 20
-
オフィスサンプルレイアウト117
- 広さ
- 22.6坪(75㎡)
- 会議室
- あり
- 従業員数
- 11
-
オフィスサンプルレイアウト116
- 広さ
- 39.9坪(132㎡)
- 会議室
- あり
- 従業員数
- 11
スハラ六本木ビル の条件に近い物件
-
エル麻布矢島ビル
東京都港区麻布十番2-8-8
- 面積
- 14.07坪 〜
- 空きフロア
- 1
- 最寄り駅
- 麻布十番 徒歩 2分
-
野沢ビル
東京都港区六本木3-11-6
- 面積
- 15坪 〜
- 空きフロア
- 1
- 最寄り駅
- 六本木 徒歩 2分
-
ソレアード六本木
東京都港区六本木3-3-17
- 面積
- 31.47坪 〜
- 空きフロア
- 1
- 最寄り駅
- 六本木一丁目 徒歩 3分
-
六本木グランドプラザ
東京都港区六本木3-1-25
- 面積
- 坪 〜
- 空きフロア
- 0
- 最寄り駅
- 六本木一丁目 徒歩 1分
スハラ六本木ビル の近隣のエリア・駅から探す
オフィス移転・物件探しを無料でサポートします
物件探しだけでは、オフィス移転は成功しません。
私たちは単なる「物件紹介会社」ではありません。オフィス移転にかかる費用総額を最小化する専門会社です。物件契約時の仲介手数料0円に加え、内装工事も中間マージンを排除した適正価格でご提案し、トータルコストを大幅に削減します。「希望の物件が見つからない」「移転費用を抑えたい」など、移転をお考えの方はメールまたはお電話でお気軽にご相談ください。



