- 物件番号
- 249435
| 所在地 | 東京都港区六本木1-7-27 |
|---|---|
| 竣工 | 1992年1月 |
| 最寄り駅 |
東京メトロ南北線 六本木一丁目 徒歩 1分 東京メトロ日比谷線 六本木 徒歩 10分 |
| 構造 | SRC造(鉄骨鉄筋コンクリート造) |
| 階数 | 地上9階/地下2階 |
| エレベータ | 2基 |
| 空調 | 個別空調 |
| トイレ | 男女別 |
| 警備 | 機械警備 |
| 使用時間 | 24時間使用可 |
ポイント
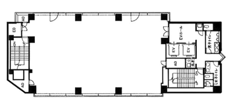
全特六本木 WESTは、東京メトロ南北線六本木一丁目駅から徒歩約1分に位置する、1992年竣工のSRC造地上9階・地下2階建ての賃貸オフィスビルです。新耐震基準に適合しており、基準階面積は約91坪、天井高は2,600mmと、ゆとりのあるオフィス空間を提供しています。
館内にはエレベーターが2基設置され、個別空調、OAフロア、男女別トイレ、機械警備システム、光ファイバー回線が完備されています。1階には郵便局が入居しており、日常の郵便業務にも便利です。敷地内には機械式駐車場も備えています。
周辺にはアークヒルズや泉ガーデンタワーなどの大規模複合施設が立地しており、大使館や国際的な企業も多く集まる洗練されたビジネスエリアです。六本木駅も徒歩約10分で利用でき、大江戸線・日比谷線へのアクセスも良好です。飲食店やカフェも豊富で、ビジネスランチや会食の場にも困りません。六本木エリアの中でも駅至近の好立地を誇るオフィスビルです。
全特六本木 WEST の募集中区画
| 階数 | 面積(坪) | 賃料(円) | 共益費 | 保証金/敷金 | 入居可能日 | 検討リスト | 詳細 | 問合せ |
|---|---|---|---|---|---|---|---|---|
| 1階 | 87.33坪 | 1,921,260円 | 込 | 10ヶ月 | 2026/5/5 | 詳細 > 全特六本木 WEST 1 (288.69㎡) |六本木・麻布・白金エリア の賃貸オフィス・セットアップオフィス | お問い合わせ > |
無料相談で理想のオフィスを見つけましょう
東京で賃貸オフィスをお探しなら、仲介手数料0円の東京オフィスチェックにお任せください。
移転をお考えの方も、お迷いの方も、メールフォームやお電話でお気軽にご相談ください。
全特六本木 WEST のアクセス
全特六本木 WEST の近隣のエリア・駅から探す
全特六本木 WEST の募集終了区画
| 階数 | 面積(坪) | 賃料(円) | 共益費 | 保証金/敷金 | 入居可能日 | 詳細 |
|---|---|---|---|---|---|---|
| 4階 | 83.08坪 | ー | ー | ー | 募集終了 | 詳細 > 全特六本木 WEST 4 (274.65㎡) |六本木・麻布・白金エリア の賃貸オフィス・セットアップオフィス |
| 7階 | 69.42坪 | ー | ー | ー | 募集終了 | 詳細 > 全特六本木 WEST 7 (229.49㎡) |六本木・麻布・白金エリア の賃貸オフィス・セットアップオフィス |
全特六本木 WEST の条件に近い物件
オフィス移転・物件探しを無料でサポートします
物件探しだけでは、オフィス移転は成功しません。
私たちは単なる「物件紹介会社」ではありません。オフィス移転にかかる費用総額を最小化する専門会社です。物件契約時の仲介手数料0円に加え、内装工事も中間マージンを排除した適正価格でご提案し、トータルコストを大幅に削減します。「希望の物件が見つからない」「移転費用を抑えたい」など、移転をお考えの方はメールまたはお電話でお気軽にご相談ください。




