- 物件番号
- 53206-61720
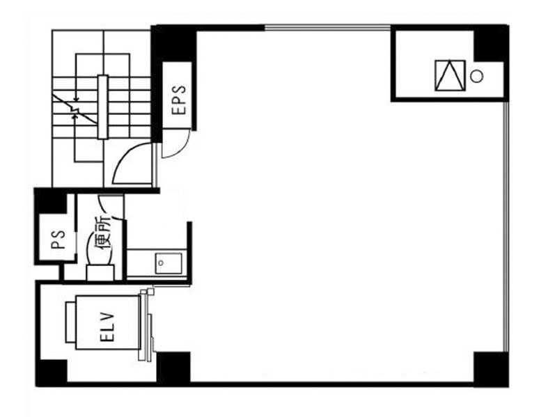
| 階数 | 7階 |
|---|---|
| 用途/仕様 | 事務所 |
| 面積 | 14.13坪(46.71㎡) |
| 賃料 | 211,950円(15,000円/坪) |
| 共益費 | 42,390円 |
| 保証金/敷金 | 8ヶ月 |
| 入居日 | 即 |
| 所在地 | 東京都港区新橋3-9-9 |
| 竣工 | 1995年11月 |
| 最寄り駅 |
JR山手線 新橋 徒歩 3分 都営三田線 内幸町 徒歩 5分 都営大江戸線 汐留 徒歩 11分 |
| 構造 | SRC造(鉄骨鉄筋コンクリート造) |
ポイント
喜三郎ビルは東京都港区新橋3-9-9に位置するオフィスビルです。竣工は1995年で、最寄り駅は都営大江戸線「汐留」駅(徒歩11分)です。JR「新橋」駅をはじめ、複数路線が利用可能で、「内幸町」駅からもアクセスできます。1フロア1テナント仕様のため、使い勝手の良いオフィスビルです。ご興味のある方はぜひお問い合わせください。
無料相談で理想のオフィスを見つけましょう
東京で賃貸オフィスをお探しなら、仲介手数料0円の東京オフィスチェックにお任せください。
移転をお考えの方も、お迷いの方も、メールフォームやお電話でお気軽にご相談ください。
喜三郎ビル のアクセス
喜三郎ビル の募集中区画
| 階数 | 面積 | 賃料 | 共益費 | 保証金/敷金 | 入居可能日 | 検討リスト | 詳細 | 問合せ |
|---|---|---|---|---|---|---|---|---|
| 1階 | 11.05坪 | 442,000円 | 33,150円 | 15ヶ月 | 即 | 詳細 > 喜三郎ビル 1 (36.53㎡) |港区 の賃貸オフィス・セットアップオフィス | お問い合わせ > | |
| 7階 | 14.13坪 | 211,950円 | 42,390円 | 8ヶ月 | 即 | 詳細 > 喜三郎ビル 7 (46.71㎡) |港区 の賃貸オフィス・セットアップオフィス | お問い合わせ > |
この区画にオススメのレイアウト
-
オフィスサンプルレイアウト98
- 広さ
- 14.7坪(49㎡)
- 会議室
- あり
- 従業員数
- 4
-
オフィスサンプルレイアウト70
- 広さ
- 14.4坪(48㎡)
- 会議室
- あり
- 従業員数
- 5
-
オフィスサンプルレイアウト64
- 広さ
- 16.8坪(56㎡)
- 会議室
- あり
- 従業員数
- 5
-
オフィスサンプルレイアウト61
- 広さ
- 15.6坪(52㎡)
- 会議室
- あり
- 従業員数
- 7
喜三郎ビル の条件に近い物件
-
虎ノ門33森ビル
東京都港区虎ノ門3-8-21
- 面積
- 27.8坪 〜
- 空きフロア
- 29
- 最寄り駅
- 神谷町 徒歩 4分
-
虎ノ門35森ビル
東京都港区虎ノ門3-4-10
- 面積
- 146.4坪 〜
- 空きフロア
- 20
- 最寄り駅
- 虎ノ門ヒルズ 徒歩 3分
-
虎ノ門ヒルズ森タワー
東京都港区虎ノ門1-23-1
- 面積
- 1000坪 〜
- 空きフロア
- 37
- 最寄り駅
- 虎ノ門 徒歩 1分
-
虎ノ門30森ビル
東京都港区虎ノ門3-2-2
- 面積
- 76坪 〜
- 空きフロア
- 22
- 最寄り駅
- 虎ノ門 徒歩 5分
喜三郎ビル の近隣のエリア・駅から探す
オフィス移転・物件探しを無料でサポートします
物件探しだけでは、オフィス移転は成功しません。
私たちは単なる「物件紹介会社」ではありません。オフィス移転にかかる費用総額を最小化する専門会社です。物件契約時の仲介手数料0円に加え、内装工事も中間マージンを排除した適正価格でご提案し、トータルコストを大幅に削減します。「希望の物件が見つからない」「移転費用を抑えたい」など、移転をお考えの方はメールまたはお電話でお気軽にご相談ください。



