- 物件番号
- 293064-293809
| 階数 | 2階 |
|---|---|
| 用途/仕様 | 事務所 |
| 面積 | 32.04坪(105.92㎡) |
| 賃料 | |
| 共益費 | |
| 保証金/敷金 | |
| 入居日 | 2026/5/1 |
| 所在地 | 東京都新宿区西新宿7-20-11 |
| 竣工 | 1992年2月 |
| 最寄り駅 |
東京メトロ丸ノ内線 西新宿 徒歩 2分 都営大江戸線 新宿西口 徒歩 7分 JR山手線 新宿 徒歩 9分 |
| 構造 | RC造(鉄筋コンクリート造) |
ポイント
西新宿AIビルは、東京都新宿区西新宿7丁目20-11に位置するRC造6階建て・地下1階の賃貸オフィスビルです。1992年2月竣工で新耐震基準に適合しております。西新宿駅から徒歩約2分、新宿西口駅から徒歩約6分、JR新宿駅から徒歩約8分と複数路線が利用可能な好立地です。
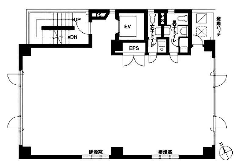
基準階面積は約32坪で、OAフロア、個別空調、男女別トイレを完備し、エレベーター1基が設置されています。機械警備・光ファイバー対応で天井高は2,300mmです。
西新宿エリアは青梅街道や小滝橋通りに近く、飲食店やコンビニが充実しております。
無料相談で理想のオフィスを見つけましょう
東京で賃貸オフィスをお探しなら、仲介手数料0円の東京オフィスチェックにお任せください。
移転をお考えの方も、お迷いの方も、メールフォームやお電話でお気軽にご相談ください。
西新宿AIビル のアクセス
西新宿AIビル の募集中区画
現在、他に募集中の区画はありません
この区画にオススメのレイアウト
-
オフィスサンプルレイアウト120
- 広さ
- 30.2坪(100㎡)
- 会議室
- あり
- 従業員数
- 12
-
オフィスサンプルレイアウト118
- 広さ
- 40.2坪(133㎡)
- 会議室
- なし
- 従業員数
- 20
-
オフィスサンプルレイアウト117
- 広さ
- 22.6坪(75㎡)
- 会議室
- あり
- 従業員数
- 11
-
オフィスサンプルレイアウト116
- 広さ
- 39.9坪(132㎡)
- 会議室
- あり
- 従業員数
- 11
西新宿AIビル の条件に近い物件
-
第2手塚ビル
東京都新宿区西新宿7-16-13
- 面積
- 31.49坪 〜
- 空きフロア
- 1
- 最寄り駅
- 西武新宿 徒歩 8分
-
セゾナ西新宿
東京都新宿区西新宿5-25-4
- 面積
- 16.45坪 〜
- 空きフロア
- 1
- 最寄り駅
- 西新宿五丁目 徒歩 1分
-
デュオ・スカーラ西新宿
東京都新宿区西新宿7-19-17
- 面積
- 21.34坪 〜
- 空きフロア
- 1
- 最寄り駅
- 新宿西口 徒歩 5分
-
立花新宿ビル
東京都新宿区西新宿3-2-26
- 面積
- 坪 〜
- 空きフロア
- 0
- 最寄り駅
- 新宿 徒歩 2分
西新宿AIビル の近隣のエリア・駅から探す
オフィス移転・物件探しを無料でサポートします
物件探しだけでは、オフィス移転は成功しません。
私たちは単なる「物件紹介会社」ではありません。オフィス移転にかかる費用総額を最小化する専門会社です。物件契約時の仲介手数料0円に加え、内装工事も中間マージンを排除した適正価格でご提案し、トータルコストを大幅に削減します。「希望の物件が見つからない」「移転費用を抑えたい」など、移転をお考えの方はメールまたはお電話でお気軽にご相談ください。
