- 物件番号
- 53232-77251
| 階数 | 14階 |
|---|---|
| 用途/仕様 | 事務所 |
| 面積 | 33.97坪(112.30㎡) |
| 賃料 | |
| 共益費 | |
| 保証金/敷金 | |
| 入居日 | |
| 所在地 | 東京都港区新橋5-23-5 |
| 竣工 | 2025年5月 |
| 最寄り駅 |
都営三田線 御成門 徒歩 4分 JR山手線 新橋 徒歩 9分 都営浅草線 大門 徒歩 10分 東京メトロ日比谷線 神谷町 徒歩 11分 |
| 構造 | RC造(鉄筋コンクリート造) |
ポイント
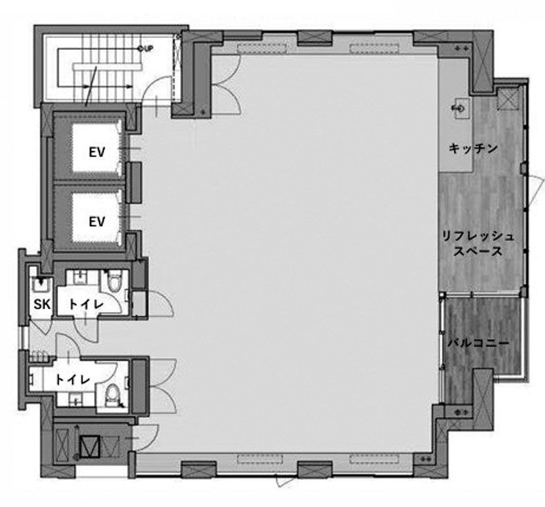
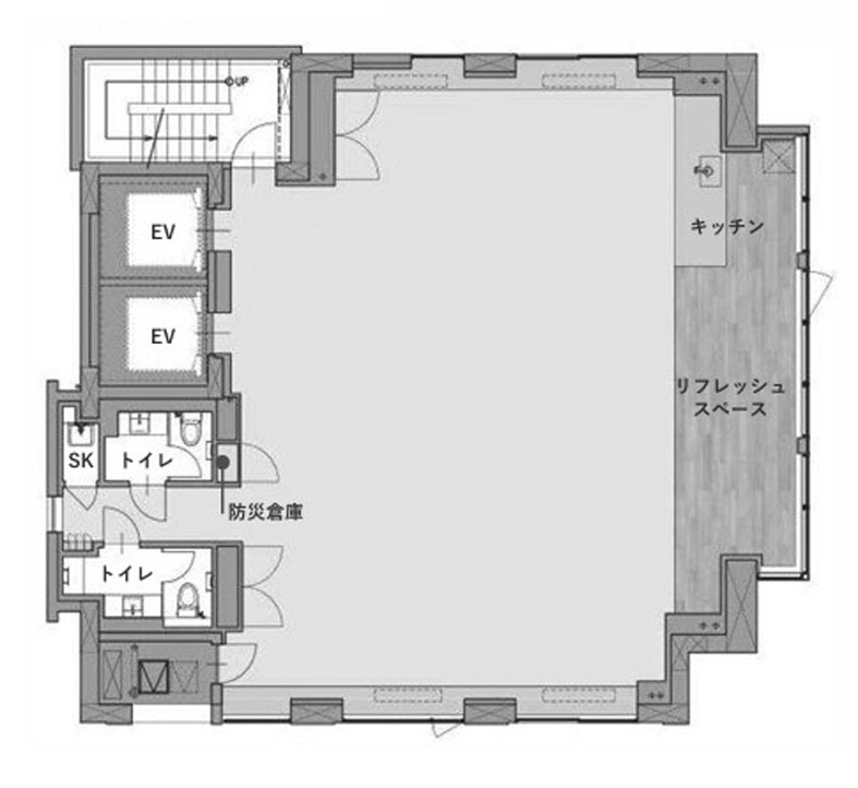
ASOOM新橋は、旭化成ホームズ株式会社が東京都港区新橋5-23-5において開発した、コンパクトオフィスブランド「ASOOM」の第1号ビルです。2025年5月竣工・同年6月1日開業という新築物件で、都営三田線「御成門」駅から徒歩4分、JR山手線「新橋」駅から徒歩9分の立地にあります。地上14階・地下1階建て、鉄筋コンクリート造(RC造)で、エレベーターは2基を備えています。
「Office as a Home」をコンセプトに掲げ、住宅事業で培ったノウハウを活かした温もりのある設計が特徴です。木製サッシをはじめとする柔らかな素材と色彩を採用し、従来のオフィスビルの印象を一新したデザインとなっています。フロアは30〜50坪規模のフロア貸しを基本とし、働く人のスケールに合ったヒューマンスケールな空間を提供しています。
共用施設も充実しており、東京タワーを望む屋上テラス(共用Wi-Fi・OAコンセント完備)、オープンキッチン、会議室・個室ブースを備えた共用ラウンジ、リフレッシュルームなどを設置。ABW(アクティビティ・ベースド・ワーキング)に対応したワークプレイスとして、用途や気分に合わせて居場所を選べる環境が整っています。セキュリティはEVホール入口とEV内にICカードリーダーを設置したダブルセキュリティ方式を採用しています。
環境性能面では、BELS★★★★、CASBEE建築評価認証Aランク・スマートウェルネスオフィス評価認証Aランク、DBJ Green Building認証★★★★を取得しており、高い省エネ・ウェルネス性能を誇ります。旭化成ホームズの住宅開発ノウハウを注ぎ込んだ次世代型オフィスビルとして、注目を集める物件です。
無料相談で理想のオフィスを見つけましょう
東京で賃貸オフィスをお探しなら、仲介手数料0円の東京オフィスチェックにお任せください。
移転をお考えの方も、お迷いの方も、メールフォームやお電話でお気軽にご相談ください。
ASOOM新橋 のアクセス
ASOOM新橋 の募集中区画
| 階数 | 面積 | 賃料 | 共益費 | 保証金/敷金 | 入居可能日 | 検討リスト | 詳細 | 問合せ |
|---|---|---|---|---|---|---|---|---|
|
新着 5階 |
45.40坪 | 相談 | 込 | 10ヶ月 | 即 | 詳細 > ASOOM新橋 5 (150.08㎡) |港区 の賃貸オフィス・セットアップオフィス | お問い合わせ > | |
|
新着 6階 |
45.40坪 | 相談 | 込 | 10ヶ月 | 即 | 詳細 > ASOOM新橋 6 (150.08㎡) |港区 の賃貸オフィス・セットアップオフィス | お問い合わせ > | |
|
新着 7階 |
45.40坪 | 相談 | 込 | 10ヶ月 | 即 | 詳細 > ASOOM新橋 7 (150.08㎡) |港区 の賃貸オフィス・セットアップオフィス | お問い合わせ > | |
|
新着 9階 |
43.04坪 | 相談 | 込 | 10ヶ月 | 即 | 詳細 > ASOOM新橋 9 (142.28㎡) |港区 の賃貸オフィス・セットアップオフィス | お問い合わせ > |
この区画にオススメのレイアウト
-
オフィスサンプルレイアウト120
- 広さ
- 30.2坪(100㎡)
- 会議室
- あり
- 従業員数
- 12
-
オフィスサンプルレイアウト118
- 広さ
- 40.2坪(133㎡)
- 会議室
- なし
- 従業員数
- 20
-
オフィスサンプルレイアウト117
- 広さ
- 22.6坪(75㎡)
- 会議室
- あり
- 従業員数
- 11
-
オフィスサンプルレイアウト116
- 広さ
- 39.9坪(132㎡)
- 会議室
- あり
- 従業員数
- 11
ASOOM新橋 の条件に近い物件
-
ル・グラシエルBLDG.83
東京都港区新橋2-11-5
- 面積
- 10.19坪 〜
- 空きフロア
- 1
- 最寄り駅
- 新橋 徒歩 4分
-
G.G House
東京都港区西新橋3-15-12
- 面積
- 51.18坪 〜
- 空きフロア
- 1
- 最寄り駅
- 虎ノ門ヒルズ 徒歩 5分
-
汐留メディアタワーアネックス
東京都港区東新橋1-7-2
- 面積
- 80.4坪 〜
- 空きフロア
- 1
- 最寄り駅
- 新橋 徒歩 7分
-
ハイマートビル
東京都港区新橋2-6-13
- 面積
- 18.12坪 〜
- 空きフロア
- 1
- 最寄り駅
- 新橋 徒歩 2分
ASOOM新橋 の近隣のエリア・駅から探す
オフィス移転・物件探しを無料でサポートします
物件探しだけでは、オフィス移転は成功しません。
私たちは単なる「物件紹介会社」ではありません。オフィス移転にかかる費用総額を最小化する専門会社です。物件契約時の仲介手数料0円に加え、内装工事も中間マージンを排除した適正価格でご提案し、トータルコストを大幅に削減します。「希望の物件が見つからない」「移転費用を抑えたい」など、移転をお考えの方はメールまたはお電話でお気軽にご相談ください。









