- 物件番号
- 54861-61321
| 階数 | 42南 |
|---|---|
| 用途/仕様 | 事務所 |
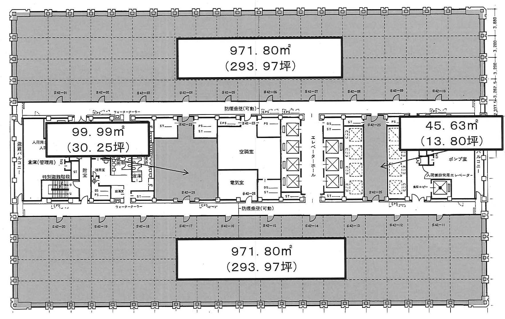
| 面積 | 293.97坪(971.80㎡) |
| 賃料 | |
| 共益費 | |
| 保証金/敷金 | |
| 入居日 | |
| 所在地 | 東京都豊島区東池袋3-1-1 |
| 竣工 | 1978年10月 |
| 最寄り駅 |
東京メトロ有楽町線 東池袋 徒歩 6分 JR山手線 池袋 徒歩 8分 |
| 構造 | SRC造(鉄骨鉄筋コンクリート造) |
ポイント
サンシャイン60は、東京都豊島区東池袋3丁目に位置する地上60階・地下4階の超高層賃貸オフィスビルです。池袋のみならず東京を代表するランドマークとして圧倒的な知名度を誇り、東池袋・南池袋エリアの象徴的存在です。 交通アクセスは、東京メトロ有楽町線東池袋駅から徒歩6分、JR山手線池袋駅から徒歩8分です。池袋駅からは地下通路で直結しており、雨の日も快適に通勤可能です。 ビルはSRC造(鉄骨鉄筋コンクリート造)の地上60階・地下4階建てで、1978年竣工、築48年です。エレベーターは21基以上を擁し、セントラル空調・男女別トイレ・有人警備を完備。24時間使用可能で、ハイグレードなオフィス環境と抜群の眺望を提供します。 同施設内にはサンシャイン水族館やコニカミノルタプラネタリウム満天などの人気施設があり、福利厚生やクライアント接待にも活用できます。ショッピングモール「アルパ」も併設され、日常的な利便性は抜群です。 企業の認知度向上とブランディング効果を最大化したいという課題を抱えている企業に最適なランドマーク物件です。ただし、セントラル空調のため個別の温度調整には制限があり、また平日約8万人が往来する施設のため、エレベーターの混雑状況は事前にご確認ください。
無料相談で理想のオフィスを見つけましょう
東京で賃貸オフィスをお探しなら、仲介手数料0円の東京オフィスチェックにお任せください。
移転をお考えの方も、お迷いの方も、メールフォームやお電話でお気軽にご相談ください。
サンシャイン60 のアクセス
サンシャイン60 の募集中区画
| 階数 | 面積 | 賃料 | 共益費 | 保証金/敷金 | 入居可能日 | 検討リスト | 詳細 | 問合せ |
|---|---|---|---|---|---|---|---|---|
| 19コア東 | 13.80坪 | 相談 | 相談 | 12ヶ月 | 相談 | 詳細 > サンシャイン60 19コア東 (45.62㎡) |豊島区 の賃貸オフィス・セットアップオフィス | お問い合わせ > | |
| 19南 | 293.97坪 | 相談 | 相談 | 12ヶ月 | 相談 | 詳細 > サンシャイン60 19南 (971.8㎡) |豊島区 の賃貸オフィス・セットアップオフィス | お問い合わせ > | |
| 20南 | 293.97坪 | 相談 | 相談 | 12ヶ月 | 即 | 詳細 > サンシャイン60 20南 (971.8㎡) |豊島区 の賃貸オフィス・セットアップオフィス | お問い合わせ > | |
| 22北 | 293.97坪 | 相談 | 相談 | 12ヶ月 | 即 | 詳細 > サンシャイン60 22北 (971.8㎡) |豊島区 の賃貸オフィス・セットアップオフィス | お問い合わせ > | |
| 22コア西 | 30.22坪 | 相談 | 相談 | 12ヶ月 | 即 | 詳細 > サンシャイン60 22コア西 (99.9㎡) |豊島区 の賃貸オフィス・セットアップオフィス | お問い合わせ > | |
| 23北 | 293.97坪 | 相談 | 相談 | 12ヶ月 | 相談 | 詳細 > サンシャイン60 23北 (971.8㎡) |豊島区 の賃貸オフィス・セットアップオフィス | お問い合わせ > | |
| 24コア西 | 30.22坪 | 相談 | 相談 | 12ヶ月 | 即 | 詳細 > サンシャイン60 24コア西 (99.9㎡) |豊島区 の賃貸オフィス・セットアップオフィス | お問い合わせ > | |
| 39コア西 | 20.83坪 | 相談 | 相談 | 12ヶ月 | 2026/11/1 | 詳細 > サンシャイン60 39コア西 (68.86㎡) |豊島区 の賃貸オフィス・セットアップオフィス | お問い合わせ > | |
| 39南 | 87.99坪 | 相談 | 相談 | 12ヶ月 | 2026/11/1 | 詳細 > サンシャイン60 39南 (290.88㎡) |豊島区 の賃貸オフィス・セットアップオフィス | お問い合わせ > |
この区画にオススメのレイアウト
-
オフィスサンプルレイアウト122
- 広さ
- 159.4坪(527㎡)
- 会議室
- あり
- 従業員数
- 50
-
オフィスサンプルレイアウト121
- 広さ
- 189.5坪(627㎡)
- 会議室
- あり
- 従業員数
- 80
-
オフィスサンプルレイアウト113
- 広さ
- 113.4坪(375㎡)
- 会議室
- あり
- 従業員数
- 84
-
オフィスサンプルレイアウト107
- 広さ
- 260.7坪(862㎡)
- 会議室
- あり
- 従業員数
- 96
サンシャイン60 の条件に近い物件
-
KHK池袋ビル
東京都豊島区南池袋2-28-13
- 面積
- 94.87坪 〜
- 空きフロア
- 1
- 最寄り駅
- 池袋 徒歩 5分
-
エクセレンス池袋
東京都豊島区南池袋2-9-8
- 面積
- 16.91坪 〜
- 空きフロア
- 1
- 最寄り駅
- 東池袋 徒歩 5分
-
太陽生命池袋ビル
東京都豊島区南池袋2-49-4
- 面積
- 86.5坪 〜
- 空きフロア
- 1
- 最寄り駅
- 東池袋 徒歩 4分
-
ゴム産業会館
東京都豊島区目白2-3-3
- 面積
- 26.88坪 〜
- 空きフロア
- 1
- 最寄り駅
- 雑司が谷 徒歩 3分
サンシャイン60 の近隣のエリア・駅から探す
オフィス移転・物件探しを無料でサポートします
物件探しだけでは、オフィス移転は成功しません。
私たちは単なる「物件紹介会社」ではありません。オフィス移転にかかる費用総額を最小化する専門会社です。物件契約時の仲介手数料0円に加え、内装工事も中間マージンを排除した適正価格でご提案し、トータルコストを大幅に削減します。「希望の物件が見つからない」「移転費用を抑えたい」など、移転をお考えの方はメールまたはお電話でお気軽にご相談ください。
