- 物件番号
- 54035-300157
新着
| 階数 | 2階 |
|---|---|
| 用途/仕様 | 事務所 |
| 面積 | 38.09坪(125.92㎡) |
| 賃料 | 490,000円(12,865円/坪) |
| 共益費 | 込 |
| 保証金/敷金 | 7ヶ月 |
| 入居日 | 即 |
| 所在地 | 東京都台東区柳橋1-3-4 |
| 竣工 | 1983年11月 |
| 最寄り駅 |
都営浅草線 浅草橋 徒歩 2分 JR中央・総武線 浅草橋 徒歩 3分 JR総武本線 馬喰町 徒歩 3分 |
| 構造 | RC造(鉄筋コンクリート造) |
ポイント
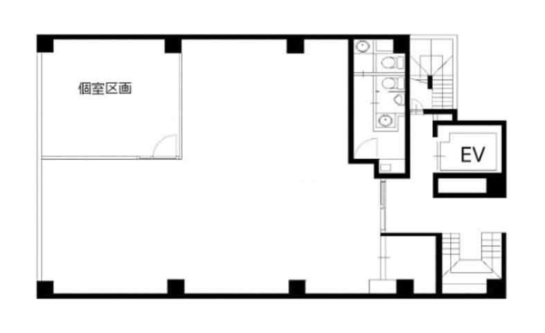
東京都台東区柳橋にある地上7階の賃貸オフィス物件です。 最寄りは、都営浅草線浅草橋駅徒歩2分、JR中央・総武線浅草橋駅徒歩3分、JR総武本線馬喰町駅徒歩3分です。東日本橋駅と馬喰横山駅も徒歩圏内です。 1984年竣工、エレベーターは1基、機械警備によりオフィスは24時間利用可能です。 江戸通り付近に位置し、周辺は落ち着いた雰囲気のオフィス街ですが、目の前には神田川が流れています。 付近には飲食店も点在しています。
無料相談で理想のオフィスを見つけましょう
東京で賃貸オフィスをお探しなら、仲介手数料0円の東京オフィスチェックにお任せください。
移転をお考えの方も、お迷いの方も、メールフォームやお電話でお気軽にご相談ください。
スケガワビル のアクセス
スケガワビル の募集中区画
| 階数 | 面積 | 賃料 | 共益費 | 保証金/敷金 | 入居可能日 | 検討リスト | 詳細 | 問合せ |
|---|---|---|---|---|---|---|---|---|
|
新着 2階 |
38.09坪 | 490,000円 | 込 | 7ヶ月 | 即 | 詳細 > スケガワビル 2 (125.92㎡) |台東区 の賃貸オフィス・セットアップオフィス | お問い合わせ > |
この区画にオススメのレイアウト
-
オフィスサンプルレイアウト120
- 広さ
- 30.2坪(100㎡)
- 会議室
- あり
- 従業員数
- 12
-
オフィスサンプルレイアウト118
- 広さ
- 40.2坪(133㎡)
- 会議室
- なし
- 従業員数
- 20
-
オフィスサンプルレイアウト117
- 広さ
- 22.6坪(75㎡)
- 会議室
- あり
- 従業員数
- 11
-
オフィスサンプルレイアウト116
- 広さ
- 39.9坪(132㎡)
- 会議室
- あり
- 従業員数
- 11
スケガワビル の条件に近い物件
-
O・Kビル
東京都台東区鳥越2-7-12
- 面積
- 坪 〜
- 空きフロア
- 0
- 最寄り駅
- 蔵前 徒歩 5分
-
赤木屋ビル
東京都台東区三筋1-12-6
- 面積
- 坪 〜
- 空きフロア
- 0
- 最寄り駅
- 新御徒町 徒歩 5分
-
ニューウイング蔵前
東京都台東区三筋1-7-1
- 面積
- 坪 〜
- 空きフロア
- 0
- 最寄り駅
- 新御徒町 徒歩 4分
-
SEIWA EAST FACE
東京都台東区浅草橋5-19-5
- 面積
- 42.49坪 〜
- 空きフロア
- 2
- 最寄り駅
- 浅草橋 徒歩 6分
スケガワビル の近隣のエリア・駅から探す
オフィス移転・物件探しを無料でサポートします
物件探しだけでは、オフィス移転は成功しません。
私たちは単なる「物件紹介会社」ではありません。オフィス移転にかかる費用総額を最小化する専門会社です。物件契約時の仲介手数料0円に加え、内装工事も中間マージンを排除した適正価格でご提案し、トータルコストを大幅に削減します。「希望の物件が見つからない」「移転費用を抑えたい」など、移転をお考えの方はメールまたはお電話でお気軽にご相談ください。


