- 物件番号
- 52847
| 所在地 | 東京都中央区築地2-11-10 |
|---|---|
| 竣工 | 1987年2月 |
| 最寄り駅 |
東京メトロ日比谷線 築地 徒歩 1分 東京メトロ有楽町線 新富町 徒歩 3分 都営浅草線 東銀座 徒歩 8分 |
| 構造 | SRC造(鉄骨鉄筋コンクリート造) |
| 階数 | 地上8階 |
| エレベータ | 1基 |
| 空調 | 個別空調 |
| トイレ | 男女別 |
| 警備 | 機械警備+EV不停止 |
| 使用時間 | 24時間使用可 |
ポイント
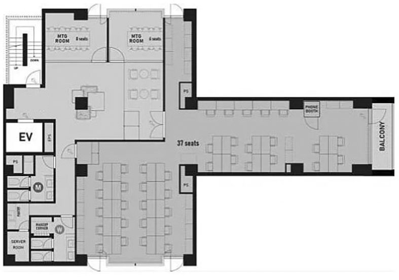
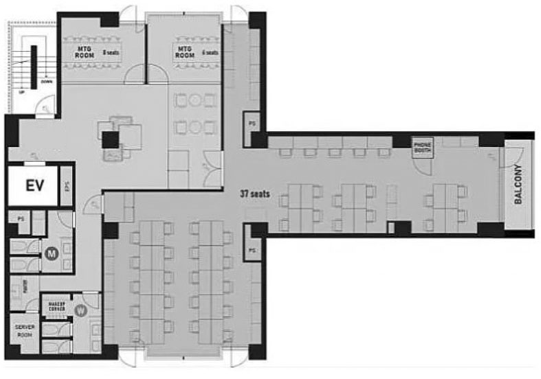
築地駅より徒歩1分、中央区築地2丁目にある賃貸オフィスビルです。2014年竣工で、新耐震基準を満たしています。地上8階建てで、エレベーターは1基設置されています。ビジネスとアートが融合したギャラリーのようなオフィスで、エントランスやエレベーターホールにもアートが飾られています。2~4階が小区画のコンパクトオフィス、5~8階がセットアップオフィスとなっています。
Misto Tsukiji の募集中区画
| 階数 | 面積(坪) | 賃料(円) | 共益費 | 保証金/敷金 | 入居可能日 | 検討リスト | 詳細 | 問合せ |
|---|---|---|---|---|---|---|---|---|
| 305 | 14.56坪 | 540,000円 | 込 | 3ヶ月 | 即 | 詳細 > Misto Tsukiji 305 (48.13㎡) |中央区 の賃貸オフィス・セットアップオフィス | お問い合わせ > |
無料相談で理想のオフィスを見つけましょう
東京で賃貸オフィスをお探しなら、仲介手数料0円の東京オフィスチェックにお任せください。
移転をお考えの方も、お迷いの方も、メールフォームやお電話でお気軽にご相談ください。
Misto Tsukiji のアクセス
Misto Tsukiji の近隣のエリア・駅から探す
Misto Tsukiji の募集終了区画
| 階数 | 面積(坪) | 賃料(円) | 共益費 | 保証金/敷金 | 入居可能日 | 詳細 |
|---|---|---|---|---|---|---|
| 5階 | 75.24坪 | ー | ー | ー | 募集終了 | 詳細 > Misto Tsukiji 5 (248.73㎡) |中央区 の賃貸オフィス・セットアップオフィス |
| 6階 | 75.24坪 | ー | ー | ー | 募集終了 | 詳細 > Misto Tsukiji 6 (248.73㎡) |中央区 の賃貸オフィス・セットアップオフィス |
| 7階 | 75.24坪 | ー | ー | ー | 募集終了 | 詳細 > Misto Tsukiji 7 (248.72㎡) |中央区 の賃貸オフィス・セットアップオフィス |
| 8階 | 73.39坪 | ー | ー | ー | 募集終了 | 詳細 > Misto Tsukiji 8 (242.61㎡) |中央区 の賃貸オフィス・セットアップオフィス |
| 207 | 14.54坪 | ー | ー | ー | 募集終了 | 詳細 > Misto Tsukiji 207 (48.07㎡) |中央区 の賃貸オフィス・セットアップオフィス |
| 304 | 17.02坪 | ー | ー | ー | 募集終了 | 詳細 > Misto Tsukiji 304 (56.26㎡) |中央区 の賃貸オフィス・セットアップオフィス |
| 404 | 17.37坪 | ー | ー | ー | 募集終了 | 詳細 > Misto Tsukiji 404 (57.42㎡) |中央区 の賃貸オフィス・セットアップオフィス |
| 405 | 15.08坪 | ー | ー | ー | 募集終了 | 詳細 > Misto Tsukiji 405 (49.85㎡) |中央区 の賃貸オフィス・セットアップオフィス |
Misto Tsukiji の条件に近い物件
オフィス移転・物件探しを無料でサポートします
物件探しだけでは、オフィス移転は成功しません。
私たちは単なる「物件紹介会社」ではありません。オフィス移転にかかる費用総額を最小化する専門会社です。物件契約時の仲介手数料0円に加え、内装工事も中間マージンを排除した適正価格でご提案し、トータルコストを大幅に削減します。「希望の物件が見つからない」「移転費用を抑えたい」など、移転をお考えの方はメールまたはお電話でお気軽にご相談ください。


