- 物件番号
- 52716
- 情報更新日
- 2025.03.25
| 所在地 | 東京都中央区八丁堀3-19-9 |
|---|---|
| 竣工 | 1985年10月 |
| 最寄り駅 |
日比谷線 八丁堀 徒歩 1分 JR京葉線 八丁堀 徒歩 2分 |
| 構造 | SRC造 |
ポイント
トーエイ八丁堀ビルは、東京都中央区八丁堀3-19-9に位置するオフィスビルです。竣工は1985年で、最寄り駅は東京メトロ日比谷線「八丁堀」駅より徒歩1分です。 八丁堀駅に加え、都営浅草線「宝町」駅へも徒歩6分とアクセスに優れた立地。24時間利用可能な設備が整っており、エントランスのグレード感も申し分ありません。条件は柔軟にご相談可能ですので、ぜひお問い合わせください。
トーエイ八丁堀ビル の募集中区画
| 階数 | 面積(坪) | 賃料(円) | 共益費(円) | 預託金 | 入居可能日 | 検討リスト | 詳細 | |
|---|---|---|---|---|---|---|---|---|
![]() |
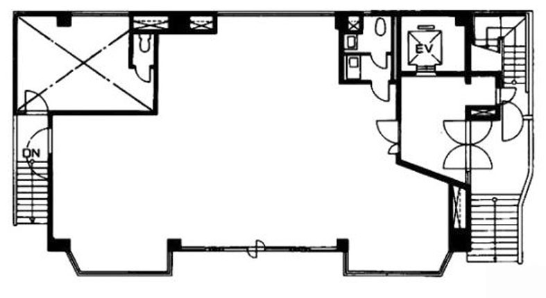
1 | 39.63 | 相談 | 3ヶ月以内 | 詳細 |
無料相談で理想のオフィスを見つけましょう
東京で賃貸オフィスをお探しなら、仲介手数料0円の東京オフィスチェックにお任せください。
移転をお考えの方も、お迷いの方も、メールフォームやお電話でお気軽にご相談ください。
トーエイ八丁堀ビル のアクセス
トーエイ八丁堀ビル の近隣のエリア・駅から探す
トーエイ八丁堀ビル の募集終了区画
| 階数 | 面積(坪) | 賃料(円) | 共益費(円) | 預託金 | 入居可能日 | 詳細 |
|---|---|---|---|---|---|---|
| 1B | 7.93 | ー | ー | ー | 募集終了 | 詳細 |
| B1 | 18.10 | ー | ー | ー | 募集終了 | 詳細 |
| 1 | 46.50 | ー | ー | ー | 募集終了 | 詳細 |
| 2 | 62.67 | ー | ー | ー | 募集終了 | 詳細 |
トーエイ八丁堀ビル の条件に近い物件
お問い合わせ
無料相談で理想のオフィスを見つけましょう
東京で賃貸オフィスをお探しなら、仲介手数料0円の東京オフィスチェックにお任せください。移転をお考えの方も、お迷いの方も、メールフォームやお電話でお気軽にご相談ください。





