- 物件番号
- 52103-82585
新着
| 階数 | 2階 |
|---|---|
| 用途/仕様 | 事務所 |
| 面積 | 47.09坪(155.67㎡) |
| 賃料 | 517,990円(11,000円/坪) |
| 共益費 | 141,270円 |
| 保証金/敷金 | 8ヶ月 |
| 入居日 | 即 |
| 所在地 | 東京都千代田区飯田橋4-9-5 |
| 竣工 | 1987年2月 |
| 最寄り駅 |
JR中央・総武線 飯田橋 徒歩 1分 東京メトロ東西線 飯田橋 徒歩 1分 東京メトロ有楽町線 飯田橋 徒歩 1分 |
| 構造 | RC造(鉄筋コンクリート造) |
ポイント
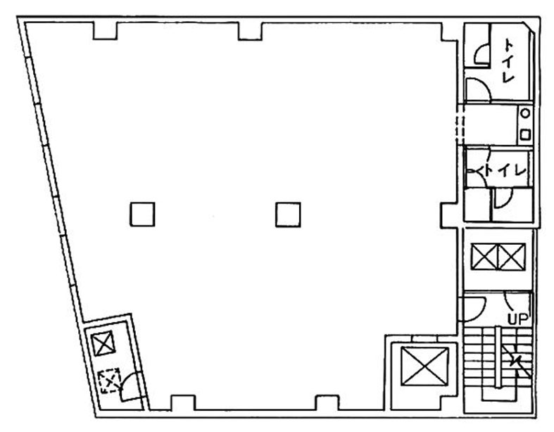
千代田区飯田橋4丁目にある賃貸オフィスビルです。貸付面積は約47坪、東西線「飯田橋駅」から徒歩1分とアクセス抜群です。他にも有楽町線飯田橋駅やJR中央・総武線飯田橋駅など、複数駅利用可能です。1階は駐車場で、その横にエントランスがございます。男女別のトイレも完備しております。8階建ての建物でエレベーターもございます。千代田区、「飯田橋エリア」でオフィスをお探しの企業様は是非ご検討ください。
無料相談で理想のオフィスを見つけましょう
東京で賃貸オフィスをお探しなら、仲介手数料0円の東京オフィスチェックにお任せください。
移転をお考えの方も、お迷いの方も、メールフォームやお電話でお気軽にご相談ください。
スギタビル のアクセス
スギタビル の募集中区画
| 階数 | 面積 | 賃料 | 共益費 | 保証金/敷金 | 入居可能日 | 検討リスト | 詳細 | 問合せ |
|---|---|---|---|---|---|---|---|---|
|
新着 2階 |
47.09坪 | 517,990円 | 141,270円 | 8ヶ月 | 即 | 詳細 > スギタビル 2 (155.67㎡) |千代田区 の賃貸オフィス・セットアップオフィス | お問い合わせ > |
この区画にオススメのレイアウト
-
オフィスサンプルレイアウト120
- 広さ
- 30.2坪(100㎡)
- 会議室
- あり
- 従業員数
- 12
-
オフィスサンプルレイアウト118
- 広さ
- 40.2坪(133㎡)
- 会議室
- なし
- 従業員数
- 20
-
オフィスサンプルレイアウト117
- 広さ
- 22.6坪(75㎡)
- 会議室
- あり
- 従業員数
- 11
-
オフィスサンプルレイアウト116
- 広さ
- 39.9坪(132㎡)
- 会議室
- あり
- 従業員数
- 11
スギタビル の条件に近い物件
-
SPROUT IIDABASHI
東京都千代田区飯田橋3-11-25
- 面積
- 17.01坪 〜
- 空きフロア
- 2
- 最寄り駅
- 飯田橋 徒歩 1分
-
九段MSCビル
東京都千代田区飯田橋1-7-4
- 面積
- 24坪 〜
- 空きフロア
- 1
- 最寄り駅
- 飯田橋 徒歩 5分
-
靖国外苑ビル
東京都千代田区九段南3-8-10
- 面積
- 27.27坪 〜
- 空きフロア
- 3
- 最寄り駅
- 市ヶ谷 徒歩 5分
-
雄邦ビル
東京都千代田区飯田橋2-14-2
- 面積
- 57.93坪 〜
- 空きフロア
- 1
- 最寄り駅
- 九段下 徒歩 5分
スギタビル の近隣のエリア・駅から探す
オフィス移転・物件探しを無料でサポートします
物件探しだけでは、オフィス移転は成功しません。
私たちは単なる「物件紹介会社」ではありません。オフィス移転にかかる費用総額を最小化する専門会社です。物件契約時の仲介手数料0円に加え、内装工事も中間マージンを排除した適正価格でご提案し、トータルコストを大幅に削減します。「希望の物件が見つからない」「移転費用を抑えたい」など、移転をお考えの方はメールまたはお電話でお気軽にご相談ください。






