- 物件番号
- 52047-58079
| 階数 | 1301 |
|---|---|
| 用途/仕様 | 事務所 |
| 面積 | 55.15坪(182.31㎡) |
| 賃料 | |
| 共益費 | |
| 保証金/敷金 | |
| 入居日 | |
| 所在地 | 東京都千代田区神田淡路町2-105 |
| 竣工 | 2013年2月 |
| 最寄り駅 |
東京メトロ丸ノ内線 淡路町 徒歩 2分 都営新宿線 小川町 徒歩 2分 JR中央・総武線 御茶ノ水 徒歩 3分 |
| 構造 | S造(鉄骨造) |
ポイント
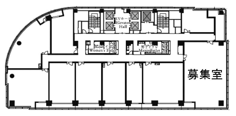
千代田区神田淡路町2丁目にある賃貸オフィスビルです。貸付面積は約11坪、丸ノ内線「淡路町駅」から徒歩2分とアクセス抜群です。他にもJR中央・総武線御茶ノ水駅や都営新宿線小川町駅など、複数駅利用可能です。2013年竣工です。足元にはスーパーや飲食店も入居しており利便性も抜群です。長方形に近い間取りで柱の無い空間でグリッド式システム天井をしており、レイアウト自由度が高いです。15階建ての建物でエレベーターも4基ございます。千代田区、「神田淡路町エリア」でオフィスをお探しの企業様は是非ご検討ください。
無料相談で理想のオフィスを見つけましょう
東京で賃貸オフィスをお探しなら、仲介手数料0円の東京オフィスチェックにお任せください。
移転をお考えの方も、お迷いの方も、メールフォームやお電話でお気軽にご相談ください。
ワテラス アネックスビル のアクセス
ワテラス アネックスビル の募集中区画
| 階数 | 面積 | 賃料 | 共益費 | 保証金/敷金 | 入居可能日 | 検討リスト | 詳細 | 問合せ |
|---|---|---|---|---|---|---|---|---|
| 1308 | 29.69坪 | 相談 | 込 | 12ヶ月 | 2026/8/1 | 詳細 > ワテラス アネックスビル 1308 (98.15㎡) |千代田区 の賃貸オフィス・セットアップオフィス | お問い合わせ > | |
| 1310 | 30.51坪 | 相談 | 込 | 12ヶ月 | 2026/7/1 | 詳細 > ワテラス アネックスビル 1310 (100.86㎡) |千代田区 の賃貸オフィス・セットアップオフィス | お問い合わせ > |
この区画にオススメのレイアウト
-
オフィスサンプルレイアウト123
- 広さ
- 53.5坪(177㎡)
- 会議室
- あり
- 従業員数
- 11
-
オフィスサンプルレイアウト119
- 広さ
- 85坪(281㎡)
- 会議室
- あり
- 従業員数
- 31
-
オフィスサンプルレイアウト112
- 広さ
- 71.3坪(236㎡)
- 会議室
- あり
- 従業員数
- 33
-
オフィスサンプルレイアウト111
- 広さ
- 85.5坪(283㎡)
- 会議室
- あり
- 従業員数
- 31
ワテラス アネックスビル の条件に近い物件
-
内神田ビル
東京都千代田区内神田1-17-8
- 面積
- 18.41坪 〜
- 空きフロア
- 1
- 最寄り駅
- 淡路町 徒歩 3分
-
KYYビル
東京都千代田区鍛冶町1-9-4
- 面積
- 63.22坪 〜
- 空きフロア
- 1
- 最寄り駅
- 神田 徒歩 3分
-
北の丸ビル
東京都千代田区神田錦町3-17-14
- 面積
- 18坪 〜
- 空きフロア
- 1
- 最寄り駅
- 竹橋 徒歩 3分
-
ACN神田錦町ビル
東京都千代田区神田錦町3-19-4
- 面積
- 坪 〜
- 空きフロア
- 0
- 最寄り駅
- 竹橋 徒歩 3分
ワテラス アネックスビル の近隣のエリア・駅から探す
オフィス移転・物件探しを無料でサポートします
物件探しだけでは、オフィス移転は成功しません。
私たちは単なる「物件紹介会社」ではありません。オフィス移転にかかる費用総額を最小化する専門会社です。物件契約時の仲介手数料0円に加え、内装工事も中間マージンを排除した適正価格でご提案し、トータルコストを大幅に削減します。「希望の物件が見つからない」「移転費用を抑えたい」など、移転をお考えの方はメールまたはお電話でお気軽にご相談ください。










