- 物件番号
- 259799-267549
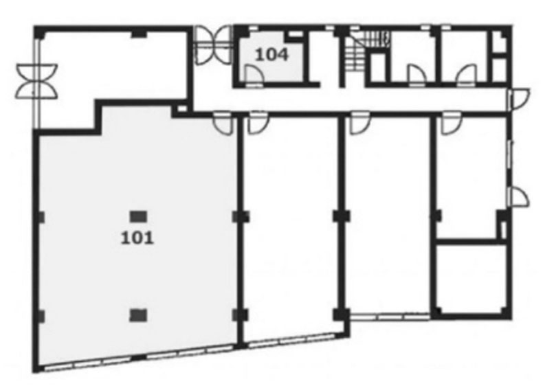
| 階数 | 101+104 |
|---|---|
| 用途/仕様 | 事務所 |
| 面積 | 47.96坪(158.55㎡) |
| 賃料 | 863,663円(18,008円/坪) |
| 共益費 | 込 |
| 保証金/敷金 | 10ヶ月 |
| 入居日 | 即 |
| 所在地 | 東京都渋谷区代官山町2-6 |
| 竣工 | 1986年8月 |
| 最寄り駅 |
東急東横線 代官山 徒歩 8分 JR山手線 恵比寿 徒歩 10分 JR山手線 渋谷 徒歩 10分 東京メトロ日比谷線 恵比寿 徒歩 10分 |
| 構造 | RC造(鉄筋コンクリート造) |
ポイント
シャトレ代官山アネックスは、東京都渋谷区代官山町2-6に位置する地上5階・地下1階建ての鉄筋コンクリート造ビルです。1985年3月に竣工し、新耐震基準に適合しております。タイル張りの落ち着いた外観が特徴で、マンションタイプの賃貸事務所兼住居物件として利用されています。
交通アクセスは、東急東横線の代官山駅から徒歩8分、JR山手線の渋谷駅から徒歩10分、JR山手線・東京メトロ日比谷線の恵比寿駅から徒歩14分と、複数路線の利用が可能です。設備面では個別空調、エレベーター1基、オートロック、有人警備を完備しており、セキュリティ面も充実しています。
また、男女別トイレを備え、24時間使用可能となっております。機械式立体駐車場も併設されており、お車でのご利用にも対応しています。代官山の洗練された街並みの中に立地し、周辺にはカフェやブティックが点在する魅力的な環境です。
無料相談で理想のオフィスを見つけましょう
東京で賃貸オフィスをお探しなら、仲介手数料0円の東京オフィスチェックにお任せください。
移転をお考えの方も、お迷いの方も、メールフォームやお電話でお気軽にご相談ください。
シャトレ代官山アネックス のアクセス
シャトレ代官山アネックス の募集中区画
| 階数 | 面積 | 賃料 | 共益費 | 保証金/敷金 | 入居可能日 | 検討リスト | 詳細 | 問合せ |
|---|---|---|---|---|---|---|---|---|
| 101+104 | 47.96坪 | 863,663円 | 込 | 10ヶ月 | 即 | 詳細 > シャトレ代官山アネックス 101+104 (158.55㎡) |渋谷区 の賃貸オフィス・セットアップオフィス | お問い合わせ > |
この区画にオススメのレイアウト
-
オフィスサンプルレイアウト120
- 広さ
- 30.2坪(100㎡)
- 会議室
- あり
- 従業員数
- 12
-
オフィスサンプルレイアウト118
- 広さ
- 40.2坪(133㎡)
- 会議室
- なし
- 従業員数
- 20
-
オフィスサンプルレイアウト117
- 広さ
- 22.6坪(75㎡)
- 会議室
- あり
- 従業員数
- 11
-
オフィスサンプルレイアウト116
- 広さ
- 39.9坪(132㎡)
- 会議室
- あり
- 従業員数
- 11
シャトレ代官山アネックス の条件に近い物件
-
Sreed EBISU EAST
東京都渋谷区恵比寿1-24-15
- 面積
- 56.47坪 〜
- 空きフロア
- 2
- 最寄り駅
- 恵比寿 徒歩 5分
-
恵比寿ライトビル
東京都渋谷区恵比寿南3-1-19
- 面積
- 41.88坪 〜
- 空きフロア
- 3
- 最寄り駅
- 代官山 徒歩 5分
-
代官山島田ビル
東京都渋谷区恵比寿南3-7-1
- 面積
- 27.99坪 〜
- 空きフロア
- 4
- 最寄り駅
- 代官山 徒歩 3分
-
第6伊藤ビル
東京都渋谷区恵比寿4-4-7
- 面積
- 52.88坪 〜
- 空きフロア
- 1
- 最寄り駅
- 恵比寿 徒歩 3分
シャトレ代官山アネックス の近隣のエリア・駅から探す
オフィス移転・物件探しを無料でサポートします
物件探しだけでは、オフィス移転は成功しません。
私たちは単なる「物件紹介会社」ではありません。オフィス移転にかかる費用総額を最小化する専門会社です。物件契約時の仲介手数料0円に加え、内装工事も中間マージンを排除した適正価格でご提案し、トータルコストを大幅に削減します。「希望の物件が見つからない」「移転費用を抑えたい」など、移転をお考えの方はメールまたはお電話でお気軽にご相談ください。







