- 物件番号
- 249536-252003
| 階数 | 9階 |
|---|---|
| 用途/仕様 | 事務所 |
| 面積 | 205.20坪(678.35㎡) |
| 賃料 | 相談 |
| 共益費 | 相談 |
| 保証金/敷金 | 12ヶ月 |
| 入居日 | 即 |
| 所在地 | 東京都台東区東上野5-24-8 |
| 竣工 | 1993年10月 |
| 最寄り駅 |
東京メトロ銀座線 稲荷町 徒歩 6分 JR山手線 上野 徒歩 7分 東京メトロ日比谷線 入谷 徒歩 7分 |
| 構造 | SRC造(鉄骨鉄筋コンクリート造) |
ポイント
JMFビル上野01は、東京都台東区東上野に位置する地上11階地下2階建ての大型オフィスビルです。旧称は住友不動産上野ビル6号館で、1993年12月に竣工いたしました。東京メトロ銀座線の稲荷町駅から徒歩6分、JR各線の上野駅から徒歩7分と、主要駅へのアクセスに優れた立地です。清洲橋通り沿いに面しており、高い視認性を誇ります。
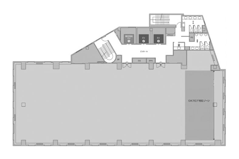
基準階面積は約205.2坪と、まとまった大規模フロアを提供しております。天井高は2,600mmと開放感があり、個別空調、OAフロア、男女別トイレ、機械警備を完備しています。エレベーターは3基設置され、機械式駐車場は72台を収容可能です。新耐震基準に適合しており、安心の構造設計です。
上野エリアはJR各線・東京メトロ各線が集まるターミナル地区で、都内各方面はもちろん、新幹線を利用した地方出張にも便利な立地です。周辺にはアメ横商店街をはじめ多彩な飲食店や商業施設が揃い、充実したビジネス環境が整っております。
無料相談で理想のオフィスを見つけましょう
東京で賃貸オフィスをお探しなら、仲介手数料0円の東京オフィスチェックにお任せください。
移転をお考えの方も、お迷いの方も、メールフォームやお電話でお気軽にご相談ください。
JMFビル上野01 のアクセス
JMFビル上野01 の募集中区画
| 階数 | 面積 | 賃料 | 共益費 | 保証金/敷金 | 入居可能日 | 検討リスト | 詳細 | 問合せ |
|---|---|---|---|---|---|---|---|---|
| 2階 | 169.05坪 | 相談 | 相談 | 12ヶ月 | 即 | 詳細 > JMFビル上野01 2 (558.84㎡) |台東区 の賃貸オフィス・セットアップオフィス | お問い合わせ > | |
| 3階 | 84.50坪 | 相談 | 相談 | 12ヶ月 | 即 | 詳細 > JMFビル上野01 3 (279.34㎡) |台東区 の賃貸オフィス・セットアップオフィス | お問い合わせ > | |
| 8階 | 205.20坪 | 相談 | 相談 | 12ヶ月 | 即 | 詳細 > JMFビル上野01 8 (678.35㎡) |台東区 の賃貸オフィス・セットアップオフィス | お問い合わせ > | |
| 9階 | 205.20坪 | 相談 | 相談 | 12ヶ月 | 即 | 詳細 > JMFビル上野01 9 (678.35㎡) |台東区 の賃貸オフィス・セットアップオフィス | お問い合わせ > | |
| 10階 | 205.20坪 | 相談 | 相談 | 12ヶ月 | 即 | 詳細 > JMFビル上野01 10 (678.35㎡) |台東区 の賃貸オフィス・セットアップオフィス | お問い合わせ > |
この区画にオススメのレイアウト
-
オフィスサンプルレイアウト122
- 広さ
- 159.4坪(527㎡)
- 会議室
- あり
- 従業員数
- 50
-
オフィスサンプルレイアウト121
- 広さ
- 189.5坪(627㎡)
- 会議室
- あり
- 従業員数
- 80
-
オフィスサンプルレイアウト113
- 広さ
- 113.4坪(375㎡)
- 会議室
- あり
- 従業員数
- 84
-
オフィスサンプルレイアウト107
- 広さ
- 260.7坪(862㎡)
- 会議室
- あり
- 従業員数
- 96
JMFビル上野01 の条件に近い物件
-
エムプレイス東上野
東京都台東区東上野3-15-12
- 面積
- 15.94坪 〜
- 空きフロア
- 1
- 最寄り駅
- 上野 徒歩 3分
-
東上野エムビルI
東京都台東区東上野1-15-3
- 面積
- 18.6坪 〜
- 空きフロア
- 1
- 最寄り駅
- 仲御徒町 徒歩 1分
-
中央法規ビル
東京都台東区台東3-29-1
- 面積
- 93.61坪 〜
- 空きフロア
- 1
- 最寄り駅
- 新御徒町 徒歩 4分
-
URE御徒町ビル
東京都台東区上野3-12-3
- 面積
- 38.82坪 〜
- 空きフロア
- 8
- 最寄り駅
- 御徒町 徒歩 3分
JMFビル上野01 の近隣のエリア・駅から探す
オフィス移転・物件探しを無料でサポートします
物件探しだけでは、オフィス移転は成功しません。
私たちは単なる「物件紹介会社」ではありません。オフィス移転にかかる費用総額を最小化する専門会社です。物件契約時の仲介手数料0円に加え、内装工事も中間マージンを排除した適正価格でご提案し、トータルコストを大幅に削減します。「希望の物件が見つからない」「移転費用を抑えたい」など、移転をお考えの方はメールまたはお電話でお気軽にご相談ください。






