- 物件番号
- 249165
- 情報更新日
- 2025.06.03
| 所在地 | 〒103-0004 東京都中央区東日本橋2-4-9 |
|---|---|
| 竣工 | 1987年1月 |
| 最寄り駅 |
都営浅草線 東日本橋 徒歩 1分 R総武本線 馬喰町 徒歩 5分 営新宿線 馬喰横山 徒歩 5分 |
| 構造 | SRC造 |
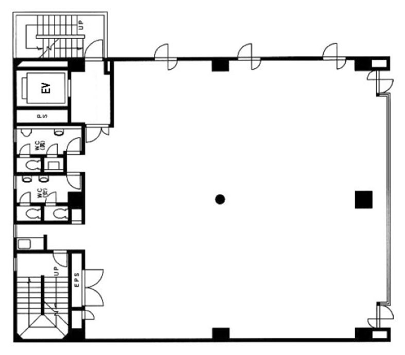
宮城館ビル の募集中区画
| 階数 | 面積(坪) | 賃料(円) | 共益費(円) | 預託金 | 入居可能日 | 検討リスト | 詳細 | |
|---|---|---|---|---|---|---|---|---|
![]() |
3 | 71.13 | 相談 | 6ヶ月 | 3ヶ月以内 | 詳細 |
無料相談で理想のオフィスを見つけましょう
東京で賃貸オフィスをお探しなら、仲介手数料0円の東京オフィスチェックにお任せください。
移転をお考えの方も、お迷いの方も、メールフォームやお電話でお気軽にご相談ください。
宮城館ビル のアクセス
宮城館ビル の近隣のエリア・駅から探す
宮城館ビル の募集終了区画
| 階数 | 面積(坪) | 賃料(円) | 共益費(円) | 預託金 | 入居可能日 | 詳細 |
|---|
お問い合わせ
無料相談で理想のオフィスを見つけましょう
東京で賃貸オフィスをお探しなら、仲介手数料0円の東京オフィスチェックにお任せください。移転をお考えの方も、お迷いの方も、メールフォームやお電話でお気軽にご相談ください。




