- 物件番号
- 248960
| 所在地 | 東京都台東区柳橋1-13-5 |
|---|---|
| 竣工 | 1977年1月 |
| 最寄り駅 |
JR中央・総武線 浅草橋 徒歩 1分 都営浅草線 浅草橋 徒歩 1分 |
| 構造 | RC造(鉄筋コンクリート造) |
| 階数 | 地上6階 |
| エレベータ | - |
| 空調 | 個別空調 |
| トイレ | - |
| 警備 | - |
| 使用時間 | - |
ポイント
大島屋浅草橋ビルは、東京都台東区柳橋1丁目に位置する地上6階建ての賃貸オフィスビルです。1977年に竣工し、JR総武線・都営浅草線「浅草橋」駅から徒歩1分という駅至近の好立地にあります。
24時間利用が可能で、個別空調を備えています。浅草橋駅は秋葉原駅から1駅と都心へのアクセスも良好で、都営浅草線を利用すれば日本橋や新橋方面への移動にも便利です。
浅草橋エリアは問屋街として知られ、近年ではクリエイティブ系の企業やスタートアップも増加しているエリアです。隅田川にも近く、周辺には飲食店も充実しています。コンパクトなオフィスをお探しの企業に適した物件です。
大島屋浅草橋ビル の募集中区画
| 階数 | 面積(坪) | 賃料(円) | 共益費 | 保証金/敷金 | 入居可能日 | 検討リスト | 詳細 | 問合せ |
|---|---|---|---|---|---|---|---|---|
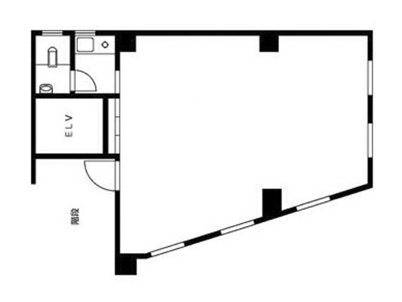
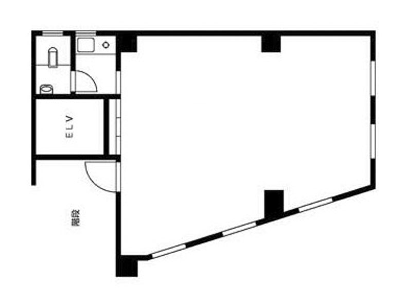
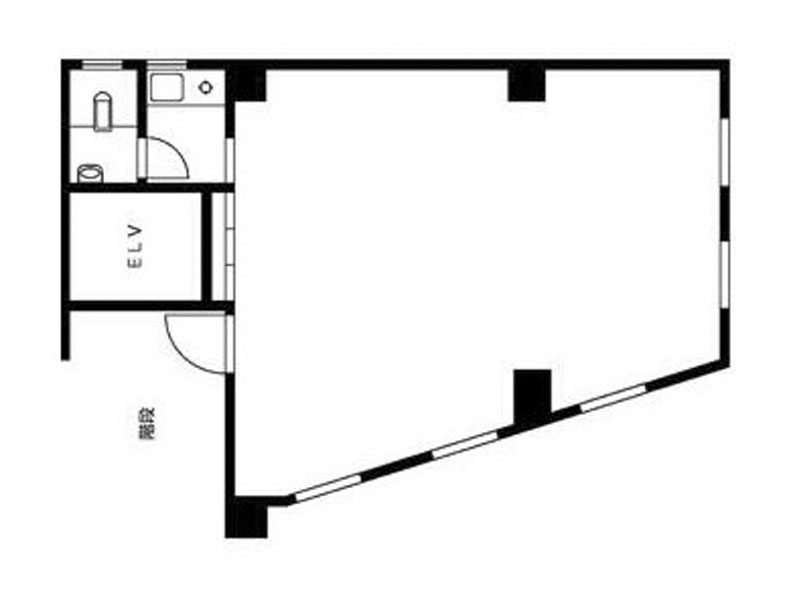
| 4階 | 16.00坪 | 250,000円 | 30,000円 | 6ヶ月 | 即 | 詳細 > 大島屋浅草橋ビル 4 (52.89㎡) |台東区 の賃貸オフィス・セットアップオフィス | お問い合わせ > |
無料相談で理想のオフィスを見つけましょう
東京で賃貸オフィスをお探しなら、仲介手数料0円の東京オフィスチェックにお任せください。
移転をお考えの方も、お迷いの方も、メールフォームやお電話でお気軽にご相談ください。
大島屋浅草橋ビル のアクセス
大島屋浅草橋ビル の近隣のエリア・駅から探す
大島屋浅草橋ビル の募集終了区画
| 階数 | 面積(坪) | 賃料(円) | 共益費 | 保証金/敷金 | 入居可能日 | 詳細 |
|---|---|---|---|---|---|---|
| 3階 | 16.00坪 | ー | ー | ー | 募集終了 | 詳細 > 大島屋浅草橋ビル 3 (52.89㎡) |台東区 の賃貸オフィス・セットアップオフィス |
| 5階 | 16.00坪 | ー | ー | ー | 募集終了 | 詳細 > 大島屋浅草橋ビル 5 (52.89㎡) |台東区 の賃貸オフィス・セットアップオフィス |
大島屋浅草橋ビル の条件に近い物件
オフィス移転・物件探しを無料でサポートします
物件探しだけでは、オフィス移転は成功しません。
私たちは単なる「物件紹介会社」ではありません。オフィス移転にかかる費用総額を最小化する専門会社です。物件契約時の仲介手数料0円に加え、内装工事も中間マージンを排除した適正価格でご提案し、トータルコストを大幅に削減します。「希望の物件が見つからない」「移転費用を抑えたい」など、移転をお考えの方はメールまたはお電話でお気軽にご相談ください。




