- 物件番号
- 100271
| 所在地 | 東京都中央区日本橋小伝馬町12-5 |
|---|---|
| 竣工 | 1973年6月 |
| 最寄り駅 |
東京メトロ日比谷線 小伝馬町 徒歩 1分 都営浅草線 東日本橋 徒歩 4分 都営新宿線 馬喰横山 徒歩 4分 東京メトロ銀座線 三越前 徒歩 7分 |
| 構造 | SRC造(鉄骨鉄筋コンクリート造) |
| 階数 | 地上9階/地下1階 |
| エレベータ | 2基 |
| 空調 | 個別空調 |
| トイレ | 隔階男女別 |
| 警備 | 機械警備 |
| 使用時間 | 24時間使用可 |
ポイント
小伝馬町YSビルは、中央区日本橋小伝馬町に位置するオフィスビルです。日比谷線小伝馬町駅から徒歩1分と駅至近の好立地にあり、都営浅草線東日本橋駅・都営新宿線馬喰横山駅から徒歩4分、銀座線三越前駅から徒歩7分と4駅4路線が利用できます。小伝馬町は江戸時代から続く問屋街の面影を残しつつ、近年はIT企業も集積するビジネスエリアです。建物はSRC造の地上9階・地下1階建てで、個別空調・隔階男女別トイレ・機械警備を備えています。日本橋エリアの一角として企業の信頼性向上にも寄与する立地です。
小伝馬町YSビル の募集中区画
現在、募集中の区画はありません
無料相談で理想のオフィスを見つけましょう
東京で賃貸オフィスをお探しなら、仲介手数料0円の東京オフィスチェックにお任せください。
移転をお考えの方も、お迷いの方も、メールフォームやお電話でお気軽にご相談ください。
小伝馬町YSビル のアクセス
小伝馬町YSビル の近隣のエリア・駅から探す
小伝馬町YSビル の募集終了区画
| 階数 | 面積(坪) | 賃料(円) | 共益費 | 保証金/敷金 | 入居可能日 | 詳細 |
|---|---|---|---|---|---|---|
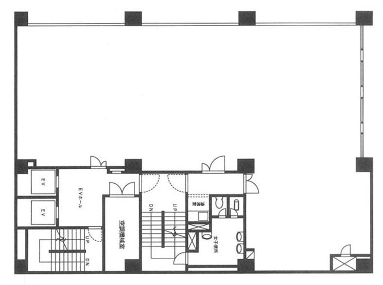
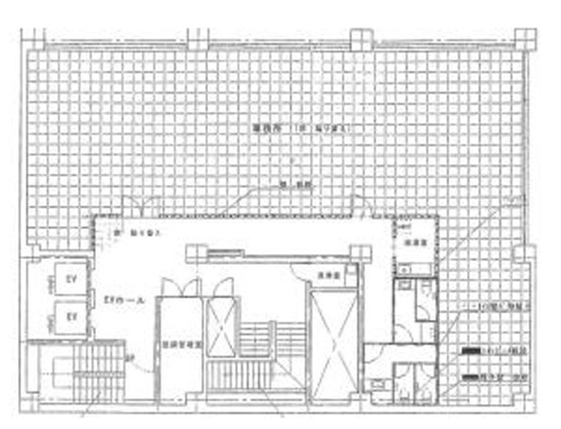
| 3階 | 72.70坪 | ー | ー | ー | 募集終了 | 詳細 > 小伝馬町YSビル 3 (240.33㎡) |中央区 の賃貸オフィス・セットアップオフィス |
小伝馬町YSビル の条件に近い物件
オフィス移転・物件探しを無料でサポートします
物件探しだけでは、オフィス移転は成功しません。
私たちは単なる「物件紹介会社」ではありません。オフィス移転にかかる費用総額を最小化する専門会社です。物件契約時の仲介手数料0円に加え、内装工事も中間マージンを排除した適正価格でご提案し、トータルコストを大幅に削減します。「希望の物件が見つからない」「移転費用を抑えたい」など、移転をお考えの方はメールまたはお電話でお気軽にご相談ください。



