- 物件番号
- 100127-171539
| 階数 | 4階 |
|---|---|
| 用途/仕様 | 事務所 |
| 面積 | 24.66坪(81.52㎡) |
| 賃料 | |
| 共益費 | |
| 保証金/敷金 | |
| 入居日 | |
| 所在地 | 東京都渋谷区道玄坂1-19-12 |
| 竣工 | 2002年3月 |
| 最寄り駅 | JR山手線 渋谷 徒歩 7分 |
| 構造 | SRC造(鉄骨鉄筋コンクリート造) |
ポイント
道玄坂今井ビルは、渋谷区道玄坂1丁目に立地するオフィスビルです。渋谷の主要商業エリアである道玄坂沿いに位置し、にぎわいのある環境です。JR山手線渋谷駅から徒歩7分でアクセスでき、複数の地下鉄路線も利用可能です。SRC造地上10階建てで、個別空調・男女別トイレ・機械警備を完備し、セキュリティ面でも安心です。周辺には渋谷マークシティやBunkamuraがあり、飲食店や金融機関、郵便局なども徒歩圏内に充実。渋谷駅前の再開発が進む注目エリアで、ビジネスの拠点として高い利便性を誇ります。
無料相談で理想のオフィスを見つけましょう
東京で賃貸オフィスをお探しなら、仲介手数料0円の東京オフィスチェックにお任せください。
移転をお考えの方も、お迷いの方も、メールフォームやお電話でお気軽にご相談ください。
道玄坂今井ビル のアクセス
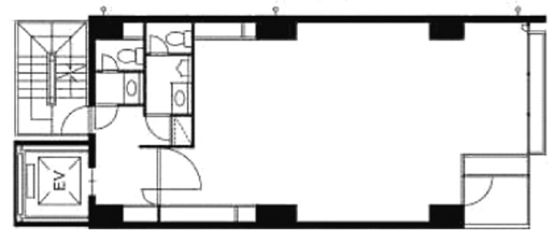
道玄坂今井ビル の募集中区画
| 階数 | 面積 | 賃料 | 共益費 | 保証金/敷金 | 入居可能日 | 検討リスト | 詳細 | 問合せ |
|---|---|---|---|---|---|---|---|---|
| 6階 | 24.66坪 | 相談 | 98,640円 | 10ヶ月 | 即 | 詳細 > 道玄坂今井ビル 6 (81.52㎡) |渋谷区 の賃貸オフィス・セットアップオフィス | お問い合わせ > |
この区画にオススメのレイアウト
-
オフィスサンプルレイアウト120
- 広さ
- 30.2坪(100㎡)
- 会議室
- あり
- 従業員数
- 12
-
オフィスサンプルレイアウト118
- 広さ
- 40.2坪(133㎡)
- 会議室
- なし
- 従業員数
- 20
-
オフィスサンプルレイアウト117
- 広さ
- 22.6坪(75㎡)
- 会議室
- あり
- 従業員数
- 11
-
オフィスサンプルレイアウト116
- 広さ
- 39.9坪(132㎡)
- 会議室
- あり
- 従業員数
- 11
道玄坂今井ビル の条件に近い物件
-
ACN青山PLACE
東京都渋谷区神宮前3-39-5
- 面積
- 坪 〜
- 空きフロア
- 0
- 最寄り駅
- 外苑前 徒歩 7分
-
渋谷道玄坂東急ビル
東京都渋谷区道玄坂1-10-8
- 面積
- 145.66坪 〜
- 空きフロア
- 1
- 最寄り駅
- 渋谷 徒歩 4分
-
ニューハイツ青山
東京都渋谷区渋谷1-1-10
- 面積
- 14.32坪 〜
- 空きフロア
- 1
- 最寄り駅
- 渋谷 徒歩 5分
-
T&Aビル
東京都渋谷区神宮前6-34-17
- 面積
- 75.36坪 〜
- 空きフロア
- 1
- 最寄り駅
- 原宿 徒歩 3分
道玄坂今井ビル の近隣のエリア・駅から探す
オフィス移転・物件探しを無料でサポートします
物件探しだけでは、オフィス移転は成功しません。
私たちは単なる「物件紹介会社」ではありません。オフィス移転にかかる費用総額を最小化する専門会社です。物件契約時の仲介手数料0円に加え、内装工事も中間マージンを排除した適正価格でご提案し、トータルコストを大幅に削減します。「希望の物件が見つからない」「移転費用を抑えたい」など、移転をお考えの方はメールまたはお電話でお気軽にご相談ください。




