- 物件番号
- 54502-88370
- 情報更新日
- 2025.11.14
| 階数 | 5 |
|---|---|
| 用途/仕様 | 事務所 |
| 面積 | 173.60坪() |
| 賃料 | |
| 共益費 | |
| 預託金 | |
| 入居日 | |
| 所在地 | 東京都大田区南蒲田2-16-2 |
| 竣工 | 1990年8月 |
| 最寄り駅 |
JR京浜東北線 蒲田 徒歩 12分 京急本線 京急蒲田 徒歩 6分 |
| 構造 | S造 |
ポイント
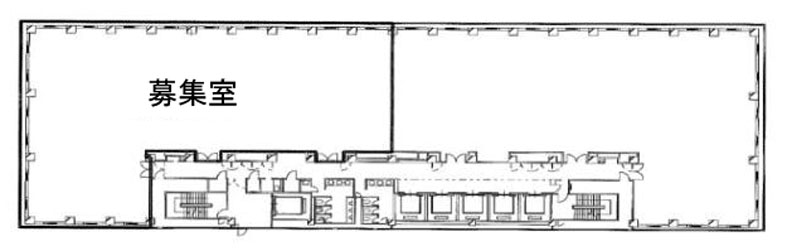
東京都大田区南蒲田にある地上11階地下1階の賃貸オフィス物件です。最寄りは、京急本線京急蒲田駅徒歩6分、JR京浜東北線蒲田駅徒歩12分です。 2008年に本館リニューアル済、新耐震基準を満たした建物です。ワンフロア最大約350坪、室内は共用部を囲う長方形に近いコの字型で無柱で、レイアウトも自由です。 エレベーターは5基、駐車場は機械式と平面式の併用です。蒲田駅周辺は飲食店や金融機関などが集まっています。
無料相談で理想のオフィスを見つけましょう
東京で賃貸オフィスをお探しなら、仲介手数料0円の東京オフィスチェックにお任せください。
移転をお考えの方も、お迷いの方も、メールフォームやお電話でお気軽にご相談ください。
テクノポート大樹生命ビル のアクセス
テクノポート大樹生命ビル の募集中区画
この区画にオススメのレイアウト
-
オフィスサンプルレイアウト122
- 広さ
- 159.4坪(527㎡)
- 会議室
- あり
- 従業員数
- 50
-
オフィスサンプルレイアウト121
- 広さ
- 189.5坪(627㎡)
- 会議室
- あり
- 従業員数
- 80
-
オフィスサンプルレイアウト113
- 広さ
- 113.4坪(375㎡)
- 会議室
- あり
- 従業員数
- 84
-
オフィスサンプルレイアウト107
- 広さ
- 260.7坪(862㎡)
- 会議室
- あり
- 従業員数
- 96
テクノポート大樹生命ビル の近隣のエリア・駅から探す
お問い合わせ
無料相談で理想のオフィスを見つけましょう
東京で賃貸オフィスをお探しなら、仲介手数料0円の東京オフィスチェックにお任せください。移転をお考えの方も、お迷いの方も、メールフォームやお電話でお気軽にご相談ください。


