- 物件番号
- 249161
新着
| 所在地 | 東京都千代田区九段北4-1-14 |
|---|---|
| 竣工 | 1975年1月 |
| 最寄り駅 | 都営新宿線 市ヶ谷 徒歩 2分 |
| 構造 | RC造(鉄筋コンクリート造) |
| 階数 | 地上7階/地下1階 |
| エレベータ | 1基 |
| 空調 | 個別空調 |
| トイレ | 男女別 |
| 警備 | 機械警備 |
| 使用時間 | 24時間使用可 |
ポイント
九段北TLビルは、東京メトロ有楽町線・都営新宿線・JR総武線の市ヶ谷駅から徒歩2分、千代田区九段北4丁目に位置する地上7階・地下1階建てのオフィスビルです。1986年竣工で新耐震基準に適合しており、靖国通り近くの閑静なオフィス街に立地しています。
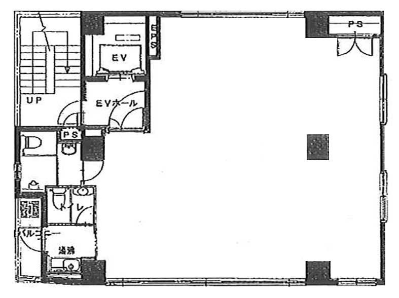
基準階面積は約30坪で、個別空調を完備しています。男女別トイレが設置され、エレベーターは1基を備えています。市ヶ谷駅から徒歩2分という駅近立地は、社員の通勤利便性はもちろん、来訪者にとっても分かりやすいアクセス環境です。
周辺には飲食店が多数あり、ランチ環境が充実しています。麹町郵便局が徒歩3分の場所にあるほか、コンビニエンスストア、スーパー、ドラッグストアも徒歩圏内に揃っており、日常の利便性に優れています。九段エリアは出版社や教育機関が集まる文教エリアとしても知られ、落ち着いた環境でビジネスに取り組める好立地です。
九段北TLビル の募集中区画
| 階数 | 面積(坪) | 賃料(円) | 共益費 | 保証金/敷金 | 入居可能日 | 検討リスト | 詳細 | 問合せ |
|---|---|---|---|---|---|---|---|---|
|
新着 3階 |
28.94坪 | 376,220円 | 101,290円 | 5ヶ月 | 即 | 詳細 > 九段北TLビル 3 (95.67㎡) |千代田区 の賃貸オフィス・セットアップオフィス | お問い合わせ > | |
|
新着 4階 |
28.94坪 | 376,220円 | 101,290円 | 5ヶ月 | 即 | 詳細 > 九段北TLビル 4 (95.67㎡) |千代田区 の賃貸オフィス・セットアップオフィス | お問い合わせ > |
無料相談で理想のオフィスを見つけましょう
東京で賃貸オフィスをお探しなら、仲介手数料0円の東京オフィスチェックにお任せください。
移転をお考えの方も、お迷いの方も、メールフォームやお電話でお気軽にご相談ください。
九段北TLビル のアクセス
九段北TLビル の近隣のエリア・駅から探す
九段北TLビル の募集終了区画
| 階数 | 面積(坪) | 賃料(円) | 共益費 | 保証金/敷金 | 入居可能日 | 詳細 |
|---|---|---|---|---|---|---|
| 5階 | 24.39坪 | ー | ー | ー | 募集終了 | 詳細 > 九段北TLビル 5 (80.63㎡) |千代田区 の賃貸オフィス・セットアップオフィス |
九段北TLビル の条件に近い物件
オフィス移転・物件探しを無料でサポートします
物件探しだけでは、オフィス移転は成功しません。
私たちは単なる「物件紹介会社」ではありません。オフィス移転にかかる費用総額を最小化する専門会社です。物件契約時の仲介手数料0円に加え、内装工事も中間マージンを排除した適正価格でご提案し、トータルコストを大幅に削減します。「希望の物件が見つからない」「移転費用を抑えたい」など、移転をお考えの方はメールまたはお電話でお気軽にご相談ください。



