- 物件番号
- 296837-305302
新着
| 階数 | 4階 |
|---|---|
| 用途/仕様 | 事務所 |
| 面積 | 35.31坪(116.73㎡) |
| 賃料 | 相談 |
| 共益費 | 98,868円 |
| 保証金/敷金 | 12ヶ月 |
| 入居日 | 2026/5/11 |
| 所在地 | 東京都新宿区新宿1-18-10 |
| 竣工 | 1989年1月 |
| 最寄り駅 |
東京メトロ丸ノ内線 新宿御苑前 徒歩 3分 都営新宿線 新宿三丁目 徒歩 6分 |
| 構造 | SRC造(鉄骨鉄筋コンクリート造) |
ポイント
カテリーナ柳通りビルは、東京都新宿区新宿1-18-10に所在する1989年竣工のSRC造9階建て賃貸オフィスビルです。新耐震基準に適合した安全性の高い建物で、基準階面積は約35坪です。
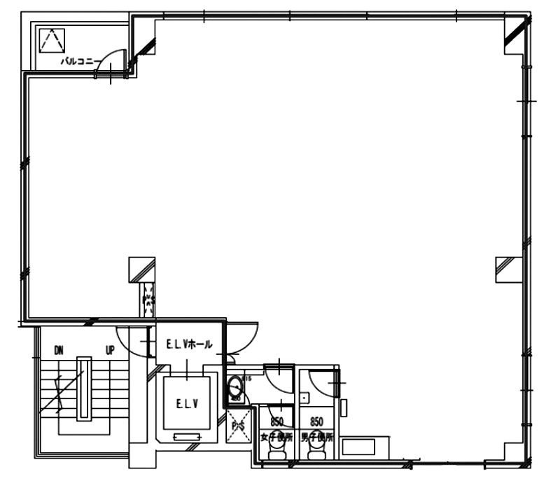
設備面では、個別空調・機械警備を完備し、水回りは貸室内に設置されています。柱のない整形無柱空間のためレイアウトの自由度が高く、効率的なオフィス運用が可能です。エレベーターは1基設置されています。
交通アクセスは東京メトロ丸ノ内線・新宿御苑前駅から徒歩約2分と非常に近く、新宿三丁目駅も利用可能です。周辺には多様な飲食店やコンビニが立ち並び、新宿御苑の緑豊かな環境も徒歩圏内にあるため、働きやすさと利便性を兼ね備えたエリアとなっています。
無料相談で理想のオフィスを見つけましょう
東京で賃貸オフィスをお探しなら、仲介手数料0円の東京オフィスチェックにお任せください。
移転をお考えの方も、お迷いの方も、メールフォームやお電話でお気軽にご相談ください。
カテリーナ柳通りビル のアクセス
カテリーナ柳通りビル の募集中区画
| 階数 | 面積 | 賃料 | 共益費 | 保証金/敷金 | 入居可能日 | 検討リスト | 詳細 | 問合せ |
|---|---|---|---|---|---|---|---|---|
|
新着 4階 |
35.31坪 | 相談 | 98,868円 | 12ヶ月 | 2026/5/11 | 詳細 > カテリーナ柳通りビル 4 (116.73㎡) |新宿区 の賃貸オフィス・セットアップオフィス | お問い合わせ > |
この区画にオススメのレイアウト
-
オフィスサンプルレイアウト120
- 広さ
- 30.2坪(100㎡)
- 会議室
- あり
- 従業員数
- 12
-
オフィスサンプルレイアウト118
- 広さ
- 40.2坪(133㎡)
- 会議室
- なし
- 従業員数
- 20
-
オフィスサンプルレイアウト117
- 広さ
- 22.6坪(75㎡)
- 会議室
- あり
- 従業員数
- 11
-
オフィスサンプルレイアウト116
- 広さ
- 39.9坪(132㎡)
- 会議室
- あり
- 従業員数
- 11
カテリーナ柳通りビル の条件に近い物件
-
京王新宿321ビル
東京都新宿区新宿3-2-1
- 面積
- 坪 〜
- 空きフロア
- 0
- 最寄り駅
- 新宿三丁目 徒歩 1分
-
第2ウイザードセブンビル
東京都新宿区歌舞伎町1-2-8
- 面積
- 17坪 〜
- 空きフロア
- 1
- 最寄り駅
- 東新宿 徒歩 4分
-
セラヴィ新宿
東京都新宿区新宿6-21-17
- 面積
- 30.63坪 〜
- 空きフロア
- 1
- 最寄り駅
- 東新宿 徒歩 4分
-
御苑スカイビル
東京都新宿区新宿2-1-11
- 面積
- 31.47坪 〜
- 空きフロア
- 3
- 最寄り駅
- 新宿御苑前 徒歩 1分
カテリーナ柳通りビル の近隣のエリア・駅から探す
オフィス移転・物件探しを無料でサポートします
物件探しだけでは、オフィス移転は成功しません。
私たちは単なる「物件紹介会社」ではありません。オフィス移転にかかる費用総額を最小化する専門会社です。物件契約時の仲介手数料0円に加え、内装工事も中間マージンを排除した適正価格でご提案し、トータルコストを大幅に削減します。「希望の物件が見つからない」「移転費用を抑えたい」など、移転をお考えの方はメールまたはお電話でお気軽にご相談ください。
