- 物件番号
- 56453-60833
| 階数 | 10階 |
|---|---|
| 用途/仕様 | 事務所 |
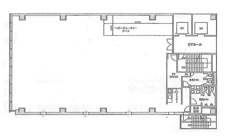
| 面積 | 117.49坪(388.40㎡) |
| 賃料 | |
| 共益費 | |
| 保証金/敷金 | |
| 入居日 | |
| 所在地 | 東京都新宿区西新宿8-1-2 |
| 竣工 | 2019年6月 |
| 最寄り駅 |
東京メトロ丸ノ内線 西新宿 徒歩 1分 都営大江戸線 都庁前 徒歩 6分 JR山手線 新宿 徒歩 9分 |
| 構造 | - |
ポイント
PMO西新宿は、新宿区西新宿8丁目に建つ地上13階建ての大型オフィスビルです。東京メトロ丸ノ内線西新宿駅から徒歩1分、都営大江戸線都庁前駅から徒歩6分、JR山手線新宿駅から徒歩9分と抜群のアクセスを誇ります。個別空調・男女別トイレ・機械警備を備えたハイスペックな仕様です。青梅街道沿いの視認性の高い立地で、新宿アイランドタワーや住友不動産新宿グランドタワーが近接するビジネスエリアの中心に位置します。周辺にはコンビニや多彩な飲食店が揃い、ランチタイムにも困りません。新宿中央公園も徒歩圏内で、オンオフのメリハリがつけやすい環境です。
無料相談で理想のオフィスを見つけましょう
東京で賃貸オフィスをお探しなら、仲介手数料0円の東京オフィスチェックにお任せください。
移転をお考えの方も、お迷いの方も、メールフォームやお電話でお気軽にご相談ください。
PMO西新宿 のアクセス
PMO西新宿 の募集中区画
| 階数 | 面積 | 賃料 | 共益費 | 保証金/敷金 | 入居可能日 | 検討リスト | 詳細 | 問合せ |
|---|---|---|---|---|---|---|---|---|
|
新着 401 |
12.86坪 | 1,110,000円 | 相談 | 即 | 詳細 > PMO西新宿 401 (42.51㎡) |新宿区 の賃貸オフィス・セットアップオフィス | お問い合わせ > | ||
|
新着 603 |
13.31坪 | 1,050,000円 | 相談 | 即 | 詳細 > PMO西新宿 603 (44㎡) |新宿区 の賃貸オフィス・セットアップオフィス | お問い合わせ > |
この区画にオススメのレイアウト
-
オフィスサンプルレイアウト122
- 広さ
- 159.4坪(527㎡)
- 会議室
- あり
- 従業員数
- 50
-
オフィスサンプルレイアウト121
- 広さ
- 189.5坪(627㎡)
- 会議室
- あり
- 従業員数
- 80
-
オフィスサンプルレイアウト113
- 広さ
- 113.4坪(375㎡)
- 会議室
- あり
- 従業員数
- 84
-
オフィスサンプルレイアウト107
- 広さ
- 260.7坪(862㎡)
- 会議室
- あり
- 従業員数
- 96
PMO西新宿 の条件に近い物件
-
新宿ワシントンホテルアネックス
東京都新宿区西新宿3-3-15
- 面積
- 11.39坪 〜
- 空きフロア
- 1
- 最寄り駅
- 新宿 徒歩 5分
-
第2佐山ビル
東京都新宿区西新宿3-1-4
- 面積
- 40坪 〜
- 空きフロア
- 1
- 最寄り駅
- 新宿 徒歩 1分
-
ヒノデビル
東京都新宿区西新宿7-1-8
- 面積
- 坪 〜
- 空きフロア
- 0
- 最寄り駅
- 新宿西口 徒歩 1分
-
イマス西新宿第二ビル
東京都新宿区西新宿3-9-19
- 面積
- 坪 〜
- 空きフロア
- 0
- 最寄り駅
- 初台 徒歩 5分
PMO西新宿 の近隣のエリア・駅から探す
オフィス移転・物件探しを無料でサポートします
物件探しだけでは、オフィス移転は成功しません。
私たちは単なる「物件紹介会社」ではありません。オフィス移転にかかる費用総額を最小化する専門会社です。物件契約時の仲介手数料0円に加え、内装工事も中間マージンを排除した適正価格でご提案し、トータルコストを大幅に削減します。「希望の物件が見つからない」「移転費用を抑えたい」など、移転をお考えの方はメールまたはお電話でお気軽にご相談ください。







