- 物件番号
- 56381-84307
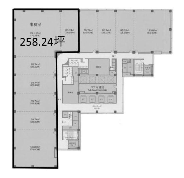
| 階数 | 12階 |
|---|---|
| 用途/仕様 | 事務所 |
| 面積 | 258.24坪(853.69㎡) |
| 賃料 | |
| 共益費 | |
| 保証金/敷金 | |
| 入居日 | |
| 所在地 | 東京都新宿区西新宿1-6-1 |
| 竣工 | 1989年6月 |
| 最寄り駅 |
JR山手線 新宿 徒歩 2分 JR中央線(快速) 新宿 徒歩 2分 東京メトロ丸ノ内線 新宿 徒歩 2分 京王線 新宿 徒歩 3分 |
| 構造 | S造(鉄骨造) |
ポイント
新宿エルタワーは、S造(鉄骨造)の地上31階・地下5階建ての大型オフィスビルです。JR山手線・中央線快速・東京メトロ丸ノ内線の新宿駅から徒歩2分、京王線新宿駅から徒歩3分と、新宿駅西口直近の抜群のアクセスを誇ります。新宿駅前のランドマーク的な高層ビルとして高い知名度を持ち、ビジネスの拠点として優れたステータス性があります。個別空調を完備し、テナントごとの柔軟な温度管理が可能。トイレは男女別で、有人警備によるきめ細やかなセキュリティ体制を整えています。
無料相談で理想のオフィスを見つけましょう
東京で賃貸オフィスをお探しなら、仲介手数料0円の東京オフィスチェックにお任せください。
移転をお考えの方も、お迷いの方も、メールフォームやお電話でお気軽にご相談ください。
新宿エルタワー のアクセス
新宿エルタワー の募集中区画
| 階数 | 面積 | 賃料 | 共益費 | 保証金/敷金 | 入居可能日 | 検討リスト | 詳細 | 問合せ |
|---|---|---|---|---|---|---|---|---|
| 6階 | 10.59坪 | 相談 | 相談 | 2026/6 | 詳細 > 新宿エルタワー 6 (35.01㎡) |新宿区 の賃貸オフィス・セットアップオフィス | お問い合わせ > | ||
| 6階 | 10.36坪 | 相談 | 相談 | 2026/6 | 詳細 > 新宿エルタワー 6 (34.25㎡) |新宿区 の賃貸オフィス・セットアップオフィス | お問い合わせ > |
この区画にオススメのレイアウト
-
オフィスサンプルレイアウト122
- 広さ
- 159.4坪(527㎡)
- 会議室
- あり
- 従業員数
- 50
-
オフィスサンプルレイアウト121
- 広さ
- 189.5坪(627㎡)
- 会議室
- あり
- 従業員数
- 80
-
オフィスサンプルレイアウト113
- 広さ
- 113.4坪(375㎡)
- 会議室
- あり
- 従業員数
- 84
-
オフィスサンプルレイアウト107
- 広さ
- 260.7坪(862㎡)
- 会議室
- あり
- 従業員数
- 96
新宿エルタワー の条件に近い物件
-
新宿ワシントンホテルアネックス
東京都新宿区西新宿3-3-15
- 面積
- 11.39坪 〜
- 空きフロア
- 1
- 最寄り駅
- 新宿 徒歩 5分
-
第2佐山ビル
東京都新宿区西新宿3-1-4
- 面積
- 40坪 〜
- 空きフロア
- 1
- 最寄り駅
- 新宿 徒歩 1分
-
ヒノデビル
東京都新宿区西新宿7-1-8
- 面積
- 坪 〜
- 空きフロア
- 0
- 最寄り駅
- 新宿西口 徒歩 1分
-
イマス西新宿第二ビル
東京都新宿区西新宿3-9-19
- 面積
- 坪 〜
- 空きフロア
- 0
- 最寄り駅
- 初台 徒歩 5分
新宿エルタワー の近隣のエリア・駅から探す
オフィス移転・物件探しを無料でサポートします
物件探しだけでは、オフィス移転は成功しません。
私たちは単なる「物件紹介会社」ではありません。オフィス移転にかかる費用総額を最小化する専門会社です。物件契約時の仲介手数料0円に加え、内装工事も中間マージンを排除した適正価格でご提案し、トータルコストを大幅に削減します。「希望の物件が見つからない」「移転費用を抑えたい」など、移転をお考えの方はメールまたはお電話でお気軽にご相談ください。





