- 物件番号
- 56376-62654
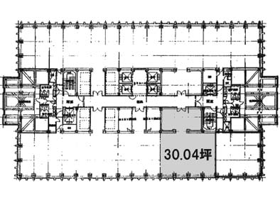
| 階数 | 28階 |
|---|---|
| 用途/仕様 | 事務所 |
| 面積 | 30.04坪(99.31㎡) |
| 賃料 | |
| 共益費 | |
| 保証金/敷金 | |
| 入居日 | |
| 所在地 | 東京都新宿区西新宿1-26-2 |
| 竣工 | 1978年6月 |
| 最寄り駅 |
東京メトロ丸ノ内線 西新宿 徒歩 2分 都営大江戸線 都庁前 徒歩 4分 JR山手線 新宿 徒歩 8分 |
| 構造 | S造(鉄骨造) |
ポイント
新宿野村ビルは、S造(鉄骨造)の地上50階・地下5階を誇る西新宿を代表する超高層オフィスビルです。東京メトロ丸ノ内線西新宿駅から徒歩2分、都営大江戸線都庁前駅から徒歩4分と、駅近の優れたアクセスを有しています。新宿副都心の高層ビル群において存在感を放つランドマーク的存在で、企業のステータス向上にも寄与します。セントラル空調により安定した快適な室内環境を提供し、トイレは男女別を完備。有人警備による信頼性の高いセキュリティ体制が整っています。
無料相談で理想のオフィスを見つけましょう
東京で賃貸オフィスをお探しなら、仲介手数料0円の東京オフィスチェックにお任せください。
移転をお考えの方も、お迷いの方も、メールフォームやお電話でお気軽にご相談ください。
新宿野村ビル のアクセス
新宿野村ビル の募集中区画
| 階数 | 面積 | 賃料 | 共益費 | 保証金/敷金 | 入居可能日 | 検討リスト | 詳細 | 問合せ |
|---|---|---|---|---|---|---|---|---|
| 5西9-14 | 58.32坪 | 相談 | 相談 | 相談 | 即 | 詳細 > 新宿野村ビル 5西9-14 (192.79㎡) |新宿区 の賃貸オフィス・セットアップオフィス | お問い合わせ > | |
| 9西 | 173.11坪 | 相談 | 込 | 2027/9/1 | 詳細 > 新宿野村ビル 9西 (572.26㎡) |新宿区 の賃貸オフィス・セットアップオフィス | お問い合わせ > | ||
| 9東15-22 | 72.57坪 | 相談 | 込 | 2027/9/1 | 詳細 > 新宿野村ビル 9東15-22 (239.9㎡) |新宿区 の賃貸オフィス・セットアップオフィス | お問い合わせ > | ||
| 34階 | 381.86坪 | 相談 | 込 | 相談 | 2027/5/1 | 詳細 > 新宿野村ビル 34 (1262.35㎡) |新宿区 の賃貸オフィス・セットアップオフィス | お問い合わせ > | |
| 37階 | 381.86坪 | 相談 | 込 | 相談 | 2026/4/1 | 詳細 > 新宿野村ビル 37 (1262.35㎡) |新宿区 の賃貸オフィス・セットアップオフィス | お問い合わせ > | |
| 38階 | 391.99坪 | 相談 | 込 | 相談 | 2026/4/1 | 詳細 > 新宿野村ビル 38 (1295.83㎡) |新宿区 の賃貸オフィス・セットアップオフィス | お問い合わせ > | |
| 2603 | 45.30坪 | 相談 | 込 | 相談 | 2026/5/1 | 詳細 > 新宿野村ビル 2603 (149.75㎡) |新宿区 の賃貸オフィス・セットアップオフィス | お問い合わせ > | |
| 2606 | 36.24坪 | 相談 | 込 | 相談 | 2026/5/1 | 詳細 > 新宿野村ビル 2606 (119.8㎡) |新宿区 の賃貸オフィス・セットアップオフィス | お問い合わせ > | |
| 2607 | 45.30坪 | 相談 | 込 | 相談 | 2026/4/1 | 詳細 > 新宿野村ビル 2607 (149.75㎡) |新宿区 の賃貸オフィス・セットアップオフィス | お問い合わせ > | |
| 2608 | 57.54坪 | 相談 | 込 | 相談 | 2026/5/1 | 詳細 > 新宿野村ビル 2608 (190.21㎡) |新宿区 の賃貸オフィス・セットアップオフィス | お問い合わせ > |
この区画にオススメのレイアウト
-
オフィスサンプルレイアウト120
- 広さ
- 30.2坪(100㎡)
- 会議室
- あり
- 従業員数
- 12
-
オフィスサンプルレイアウト118
- 広さ
- 40.2坪(133㎡)
- 会議室
- なし
- 従業員数
- 20
-
オフィスサンプルレイアウト117
- 広さ
- 22.6坪(75㎡)
- 会議室
- あり
- 従業員数
- 11
-
オフィスサンプルレイアウト116
- 広さ
- 39.9坪(132㎡)
- 会議室
- あり
- 従業員数
- 11
新宿野村ビル の条件に近い物件
-
野村不動産西新宿ビル
東京都新宿区西新宿8-4-2
- 面積
- 145.54坪 〜
- 空きフロア
- 7
- 最寄り駅
- 西新宿 徒歩 1分
-
ゼンコウビル
東京都新宿区西新宿7-1-4
- 面積
- 11.21坪 〜
- 空きフロア
- 3
- 最寄り駅
- 新宿西口 徒歩 1分
-
新宿セントランドビル
東京都新宿区西新宿3-5-1
- 面積
- 29.85坪 〜
- 空きフロア
- 4
- 最寄り駅
- 都庁前 徒歩 5分
-
VORT西新宿
東京都新宿区西新宿7-18-5
- 面積
- 坪 〜
- 空きフロア
- 0
- 最寄り駅
- 西新宿 徒歩 5分
新宿野村ビル の近隣のエリア・駅から探す
オフィス移転・物件探しを無料でサポートします
物件探しだけでは、オフィス移転は成功しません。
私たちは単なる「物件紹介会社」ではありません。オフィス移転にかかる費用総額を最小化する専門会社です。物件契約時の仲介手数料0円に加え、内装工事も中間マージンを排除した適正価格でご提案し、トータルコストを大幅に削減します。「希望の物件が見つからない」「移転費用を抑えたい」など、移転をお考えの方はメールまたはお電話でお気軽にご相談ください。







