- 物件番号
- 56374-89582
| 階数 | 22階 |
|---|---|
| 用途/仕様 | 事務所 |
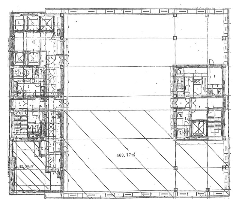
| 面積 | 17.66坪(58.38㎡) |
| 賃料 | |
| 共益費 | |
| 保証金/敷金 | |
| 入居日 | |
| 所在地 | 東京都新宿区西新宿1-24-1 |
| 竣工 | 1992年10月 |
| 最寄り駅 |
都営大江戸線 都庁前 徒歩 3分 JR山手線 新宿 徒歩 4分 |
| 構造 | S造(鉄骨造) |
ポイント
エステック情報ビルは、西新宿エリアに位置するS造(鉄骨造)地上28階・地下6階建ての大型オフィスビルです。都営大江戸線 都庁前駅から徒歩3分、JR山手線 新宿駅から徒歩4分と複数路線が利用可能で、通勤の利便性に優れています。西新宿の高層ビル群に隣接し、ビジネス拠点として高い存在感を誇ります。館内はセントラル空調を完備し、快適なオフィス環境を維持。トイレは男女別で設けられており、有人警備によるセキュリティ体制も整っています。新宿エリアを代表するハイグレードオフィスビルとして、多様な企業ニーズに対応します。
無料相談で理想のオフィスを見つけましょう
東京で賃貸オフィスをお探しなら、仲介手数料0円の東京オフィスチェックにお任せください。
移転をお考えの方も、お迷いの方も、メールフォームやお電話でお気軽にご相談ください。
エステック情報ビル のアクセス
エステック情報ビル の募集中区画
| 階数 | 面積 | 賃料 | 共益費 | 保証金/敷金 | 入居可能日 | 検討リスト | 詳細 | 問合せ |
|---|---|---|---|---|---|---|---|---|
| 6階 | 141.80坪 | 相談 | 込 | 2026/4/1 | 詳細 > エステック情報ビル 6 (468.76㎡) |新宿区 の賃貸オフィス・セットアップオフィス | お問い合わせ > | ||
| 20階 | 146.00坪 | 相談 | 込 | 相談 | 2026/10 | 詳細 > エステック情報ビル 20 (482.64㎡) |新宿区 の賃貸オフィス・セットアップオフィス | お問い合わせ > |
この区画にオススメのレイアウト
-
オフィスサンプルレイアウト98
- 広さ
- 14.7坪(49㎡)
- 会議室
- あり
- 従業員数
- 4
-
オフィスサンプルレイアウト70
- 広さ
- 14.4坪(48㎡)
- 会議室
- あり
- 従業員数
- 5
-
オフィスサンプルレイアウト64
- 広さ
- 16.8坪(56㎡)
- 会議室
- あり
- 従業員数
- 5
-
オフィスサンプルレイアウト61
- 広さ
- 15.6坪(52㎡)
- 会議室
- あり
- 従業員数
- 7
エステック情報ビル の条件に近い物件
-
立花新宿ビル
東京都新宿区西新宿3-2-26
- 面積
- 坪 〜
- 空きフロア
- 0
- 最寄り駅
- 新宿 徒歩 2分
-
新宿JECビル
東京都新宿区西新宿7-22-43
- 面積
- 87.5坪 〜
- 空きフロア
- 1
- 最寄り駅
- 西新宿 徒歩 4分
-
カーメルⅡ
東京都新宿区西新宿8-3-30
- 面積
- 13.89坪 〜
- 空きフロア
- 1
- 最寄り駅
- 西新宿 徒歩 5分
-
平田ビル
東京都新宿区西新宿7-11-3
- 面積
- 30.08坪 〜
- 空きフロア
- 31
- 最寄り駅
- 新宿 徒歩 3分
エステック情報ビル の近隣のエリア・駅から探す
オフィス移転・物件探しを無料でサポートします
物件探しだけでは、オフィス移転は成功しません。
私たちは単なる「物件紹介会社」ではありません。オフィス移転にかかる費用総額を最小化する専門会社です。物件契約時の仲介手数料0円に加え、内装工事も中間マージンを排除した適正価格でご提案し、トータルコストを大幅に削減します。「希望の物件が見つからない」「移転費用を抑えたい」など、移転をお考えの方はメールまたはお電話でお気軽にご相談ください。




