- 物件番号
- 54725-87921
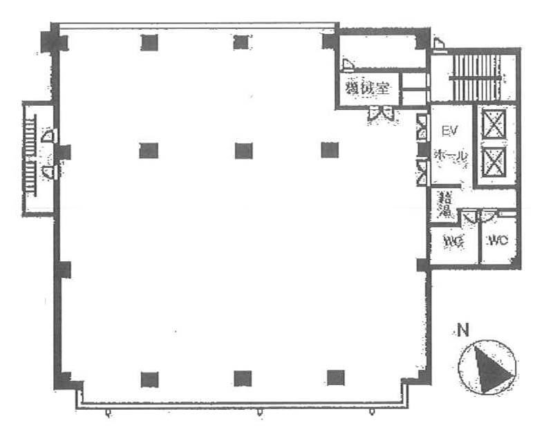
| 階数 | 7階 |
|---|---|
| 用途/仕様 | 事務所 |
| 面積 | 174.25坪(576.03㎡) |
| 賃料 | |
| 共益費 | |
| 保証金/敷金 | |
| 入居日 | |
| 所在地 | 東京都新宿区下宮比町2-1 |
| 竣工 | 1974年8月 |
| 最寄り駅 |
JR中央・総武線 飯田橋 徒歩 1分 都営大江戸線 牛込神楽坂 徒歩 9分 東京メトロ東西線 神楽坂 徒歩 10分 |
| 構造 | SRC造(鉄骨鉄筋コンクリート造) |
ポイント
第一勧銀稲垣ビルは、東京都新宿区下宮比町に位置する賃貸オフィスビルです。四谷・市ヶ谷エリアの飯田橋駅至近に立地し、官公庁や大手企業が集まるビジネスエリアへのアクセスに優れた好立地です。 交通アクセスは、東京メトロ東西線・南北線およびJR中央・総武線の飯田橋駅からいずれも徒歩2分と、3路線を均等に利用できる交通至便の立地です。東西線で大手町方面、南北線で溜池山王・六本木方面へダイレクトに移動でき、ビジネスの機動力を高めます。 ビルはSRC造(鉄骨鉄筋コンクリート造)の地上8階・地下2階建てで、2007年に耐震補強工事を実施済みです。エレベーターは2基設置され、個別空調・男女別トイレ・機械警備を完備。24時間使用可能で、深夜や早朝の業務にも柔軟に対応できます。 1階にはみずほ銀行飯田橋支店が入居しており、法人の金融手続きをスムーズに行えます。またセブン-イレブン飯田橋駅西口店も至近にあり、日常の買い物にも不自由しません。飯田橋サクラテラスも徒歩圏内で、ランチや打ち合わせの選択肢が豊富です。 駅徒歩2分の抜群のアクセスと複数路線の利便性を活かして事業展開を加速させたいという課題を抱えている企業に最適です。ただし、竣工年が不明の物件のため、共用部や設備の経年状態については内見時に十分ご確認ください。
無料相談で理想のオフィスを見つけましょう
東京で賃貸オフィスをお探しなら、仲介手数料0円の東京オフィスチェックにお任せください。
移転をお考えの方も、お迷いの方も、メールフォームやお電話でお気軽にご相談ください。
第一勧銀稲垣ビル のアクセス
第一勧銀稲垣ビル の募集中区画
| 階数 | 面積 | 賃料 | 共益費 | 保証金/敷金 | 入居可能日 | 検討リスト | 詳細 | 問合せ |
|---|---|---|---|---|---|---|---|---|
|
新着 6階 |
174.25坪 | 相談 | 相談 | 2027/02/01 | 詳細 > 第一勧銀稲垣ビル 6 (576.03㎡) |新宿区 の賃貸オフィス・セットアップオフィス | お問い合わせ > |
この区画にオススメのレイアウト
-
オフィスサンプルレイアウト122
- 広さ
- 159.4坪(527㎡)
- 会議室
- あり
- 従業員数
- 50
-
オフィスサンプルレイアウト121
- 広さ
- 189.5坪(627㎡)
- 会議室
- あり
- 従業員数
- 80
-
オフィスサンプルレイアウト113
- 広さ
- 113.4坪(375㎡)
- 会議室
- あり
- 従業員数
- 84
-
オフィスサンプルレイアウト107
- 広さ
- 260.7坪(862㎡)
- 会議室
- あり
- 従業員数
- 96
第一勧銀稲垣ビル の条件に近い物件
-
四谷Sfida Base
東京都新宿区四谷4-10-12
- 面積
- 194.42坪 〜
- 空きフロア
- 1
- 最寄り駅
- 四谷三丁目 徒歩 4分
-
シャトレ市ヶ谷
東京都新宿区富久町11-5
- 面積
- 17.58坪 〜
- 空きフロア
- 1
- 最寄り駅
- 新宿御苑前 徒歩 8分
-
ル・グラシエル レゼール四谷
東京都新宿区四谷坂町3-19
- 面積
- 35.17坪 〜
- 空きフロア
- 2
- 最寄り駅
- 四ツ谷 徒歩 6分
-
第2ミヤコビル
東京都新宿区荒木町6
- 面積
- 坪 〜
- 空きフロア
- 0
- 最寄り駅
- 四谷三丁目 徒歩 4分
第一勧銀稲垣ビル の近隣のエリア・駅から探す
オフィス移転・物件探しを無料でサポートします
物件探しだけでは、オフィス移転は成功しません。
私たちは単なる「物件紹介会社」ではありません。オフィス移転にかかる費用総額を最小化する専門会社です。物件契約時の仲介手数料0円に加え、内装工事も中間マージンを排除した適正価格でご提案し、トータルコストを大幅に削減します。「希望の物件が見つからない」「移転費用を抑えたい」など、移転をお考えの方はメールまたはお電話でお気軽にご相談ください。







