- 物件番号
- 292375-292944
| 階数 | 3階 |
|---|---|
| 用途/仕様 | 事務所・店舗 |
| 面積 | 36.47坪(120.56㎡) |
| 賃料 | 887,285円(24,330円/坪) |
| 共益費 | 133,875円 |
| 保証金/敷金 | 6ヶ月 |
| 入居日 | 2026/6 |
| 所在地 | 東京都豊島区西池袋1-16-1 |
| 竣工 | 1968年1月 |
| 最寄り駅 | JR山手線 池袋 徒歩 1分 |
| 構造 | RC造(鉄筋コンクリート造) |
ポイント
新東第一ビルは、東京都豊島区西池袋1-16-1に位置するRC造地上9階・地下1階建てのオフィスビルで、1968年1月竣工です。JR・東京メトロ・東武・西武各線が乗り入れる池袋駅西口から徒歩1分、地下鉄8番出口の目の前という抜群のアクセスを誇ります。
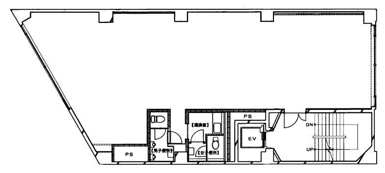
基準階面積は約40坪で、エレベーター1基を備えています。各貸室には室内トイレと給湯設備が設置されています。テナントにはNOVAや三井住友銀行出張所などが入居しています。
池袋駅は1日の乗降客数が約264万人を誇る都内有数のターミナル駅で、サンシャインシティや東武百貨店などの大型商業施設が集積しています。
無料相談で理想のオフィスを見つけましょう
東京で賃貸オフィスをお探しなら、仲介手数料0円の東京オフィスチェックにお任せください。
移転をお考えの方も、お迷いの方も、メールフォームやお電話でお気軽にご相談ください。
新東第一ビル のアクセス
新東第一ビル の募集中区画
| 階数 | 面積 | 賃料 | 共益費 | 保証金/敷金 | 入居可能日 | 検討リスト | 詳細 | 問合せ |
|---|---|---|---|---|---|---|---|---|
| 3階 | 36.47坪 | 887,285円 | 133,875円 | 6ヶ月 | 2026/6 | 詳細 > 新東第一ビル 3 (120.56㎡) |豊島区 の賃貸オフィス・セットアップオフィス | お問い合わせ > |
この区画にオススメのレイアウト
-
オフィスサンプルレイアウト120
- 広さ
- 30.2坪(100㎡)
- 会議室
- あり
- 従業員数
- 12
-
オフィスサンプルレイアウト118
- 広さ
- 40.2坪(133㎡)
- 会議室
- なし
- 従業員数
- 20
-
オフィスサンプルレイアウト117
- 広さ
- 22.6坪(75㎡)
- 会議室
- あり
- 従業員数
- 11
-
オフィスサンプルレイアウト116
- 広さ
- 39.9坪(132㎡)
- 会議室
- あり
- 従業員数
- 11
新東第一ビル の条件に近い物件
-
KHK池袋ビル
東京都豊島区南池袋2-28-13
- 面積
- 94.87坪 〜
- 空きフロア
- 1
- 最寄り駅
- 池袋 徒歩 5分
-
エクセレンス池袋
東京都豊島区南池袋2-9-8
- 面積
- 16.91坪 〜
- 空きフロア
- 1
- 最寄り駅
- 東池袋 徒歩 5分
-
太陽生命池袋ビル
東京都豊島区南池袋2-49-4
- 面積
- 86.5坪 〜
- 空きフロア
- 1
- 最寄り駅
- 東池袋 徒歩 4分
-
ゴム産業会館
東京都豊島区目白2-3-3
- 面積
- 26.88坪 〜
- 空きフロア
- 1
- 最寄り駅
- 雑司が谷 徒歩 3分
新東第一ビル の近隣のエリア・駅から探す
オフィス移転・物件探しを無料でサポートします
物件探しだけでは、オフィス移転は成功しません。
私たちは単なる「物件紹介会社」ではありません。オフィス移転にかかる費用総額を最小化する専門会社です。物件契約時の仲介手数料0円に加え、内装工事も中間マージンを排除した適正価格でご提案し、トータルコストを大幅に削減します。「希望の物件が見つからない」「移転費用を抑えたい」など、移転をお考えの方はメールまたはお電話でお気軽にご相談ください。
