- 物件番号
- 249271
| 所在地 | 東京都新宿区西新宿7-16-13 |
|---|---|
| 竣工 | 1988年12月 |
| 最寄り駅 |
西武新宿線 西武新宿 徒歩 8分 JR山手線 新宿 徒歩 10分 |
| 構造 | RC造(鉄筋コンクリート造) |
| 階数 | 地上6階 |
| エレベータ | 1基 |
| 空調 | 個別空調 |
| トイレ | 男女別 |
| 警備 | - |
| 使用時間 | 使用制限有り |
ポイント
第2手塚ビルは、東京都新宿区西新宿7-16-13に位置する地上6階建ての賃貸オフィスビルです。1988年に竣工した建物で、赤茶色のレンガ調の外観が特徴的です。都営大江戸線・新宿西口駅から徒歩5分、西武新宿線・西武新宿駅から徒歩6分、JR中央線・大久保駅から徒歩7分、JR各線・新宿駅から徒歩8分と、多数の路線・駅を利用できる交通環境にあります。
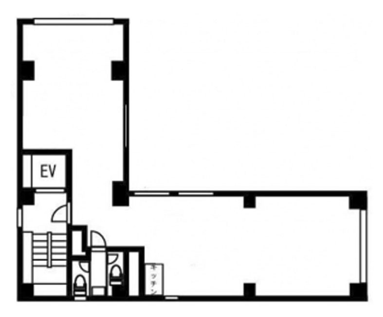
基準階面積は約33坪で、L字型の間取りとなっております。2016年にはエアコンおよび水回りのリニューアル工事が実施されており、清潔で快適なオフィス環境が維持されています。OAフロア、個別空調を備え、エレベーターは1基設置されております。
小滝橋通りから少し入った場所に位置しており、周辺はオフィスビルや飲食店が立ち並ぶ活気あるエリアです。新宿駅周辺の豊富な商業施設や交通インフラを活用できる利便性の高い物件で、少人数から中規模のオフィス利用に適しております。
第2手塚ビル の募集中区画
| 階数 | 面積(坪) | 賃料(円) | 共益費 | 保証金/敷金 | 入居可能日 | 検討リスト | 詳細 | 問合せ |
|---|---|---|---|---|---|---|---|---|
| 2階 | 31.49坪 | 472,350円 | 78,725円 | 12ヶ月 | 即 | 詳細 > 第2手塚ビル 2 (104.1㎡) |新宿区 の賃貸オフィス・セットアップオフィス | お問い合わせ > |
無料相談で理想のオフィスを見つけましょう
東京で賃貸オフィスをお探しなら、仲介手数料0円の東京オフィスチェックにお任せください。
移転をお考えの方も、お迷いの方も、メールフォームやお電話でお気軽にご相談ください。
第2手塚ビル のアクセス
第2手塚ビル の近隣のエリア・駅から探す
第2手塚ビル の募集終了区画
| 階数 | 面積(坪) | 賃料(円) | 共益費 | 保証金/敷金 | 入居可能日 | 詳細 |
|---|
第2手塚ビル の条件に近い物件
オフィス移転・物件探しを無料でサポートします
物件探しだけでは、オフィス移転は成功しません。
私たちは単なる「物件紹介会社」ではありません。オフィス移転にかかる費用総額を最小化する専門会社です。物件契約時の仲介手数料0円に加え、内装工事も中間マージンを排除した適正価格でご提案し、トータルコストを大幅に削減します。「希望の物件が見つからない」「移転費用を抑えたい」など、移転をお考えの方はメールまたはお電話でお気軽にご相談ください。


