- 物件番号
- 153842-302120
| 階数 | 5階 |
|---|---|
| 用途/仕様 | 事務所 |
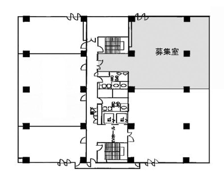
| 面積 | 50.85坪(168.10㎡) |
| 賃料 | 相談 |
| 共益費 | 込 |
| 保証金/敷金 | 相談 |
| 入居日 | 2026/5/1 |
| 所在地 | 神奈川県横浜市港北区新横浜3-6-5 |
| 竣工 | 1986年3月 |
| 最寄り駅 |
JR横浜線 新横浜 徒歩 1分 ブルーライン 新横浜 徒歩 1分 |
| 構造 | SRC造(鉄骨鉄筋コンクリート造) |
ポイント
新横浜第一生命ビルは、神奈川県横浜市港北区新横浜に位置するSRC造地上9階・地下1階建てのオフィスビルです。JR横浜線新横浜駅から徒歩1分、横浜市営地下鉄ブルーライン新横浜駅3番出口はビル目の前という駅前ロータリーに面した抜群の立地を誇ります。新幹線停車駅である新横浜は広域ビジネスの拠点として最適です。個別空調を備え、別棟タワーパークには機械式64台・平面4台の計68台分の駐車場を確保しています。周辺には三菱UFJ銀行や三井住友銀行の支店、コンビニ、飲食店が徒歩圏内に充実し、横浜アリーナや日産スタジアムも近く賑わいのあるエリアです。
無料相談で理想のオフィスを見つけましょう
東京で賃貸オフィスをお探しなら、仲介手数料0円の東京オフィスチェックにお任せください。
移転をお考えの方も、お迷いの方も、メールフォームやお電話でお気軽にご相談ください。
新横浜第一生命ビル のアクセス
新横浜第一生命ビル の募集中区画
| 階数 | 面積 | 賃料 | 共益費 | 保証金/敷金 | 入居可能日 | 検討リスト | 詳細 | 問合せ |
|---|---|---|---|---|---|---|---|---|
| 4階 | 19.24坪 | 相談 | 込 | 相談 | 即 | 詳細 > 新横浜第一生命ビル 4 (63.6㎡) |その他(神奈川) の賃貸オフィス・セットアップオフィス | お問い合わせ > | |
| 5階 | 50.85坪 | 相談 | 込 | 相談 | 2026/5/1 | 詳細 > 新横浜第一生命ビル 5 (168.1㎡) |その他(神奈川) の賃貸オフィス・セットアップオフィス | お問い合わせ > | |
| 9階 | 50.85坪 | 相談 | 込 | 相談 | 即 | 詳細 > 新横浜第一生命ビル 9 (168.1㎡) |その他(神奈川) の賃貸オフィス・セットアップオフィス | お問い合わせ > |
この区画にオススメのレイアウト
-
オフィスサンプルレイアウト123
- 広さ
- 53.5坪(177㎡)
- 会議室
- あり
- 従業員数
- 11
-
オフィスサンプルレイアウト119
- 広さ
- 85坪(281㎡)
- 会議室
- あり
- 従業員数
- 31
-
オフィスサンプルレイアウト112
- 広さ
- 71.3坪(236㎡)
- 会議室
- あり
- 従業員数
- 33
-
オフィスサンプルレイアウト111
- 広さ
- 85.5坪(283㎡)
- 会議室
- あり
- 従業員数
- 31
新横浜第一生命ビル の条件に近い物件
-
アクアリアタワー横浜
神奈川県横浜市神奈川区新浦島町1-1-32
- 面積
- 256.44坪 〜
- 空きフロア
- 42
- 最寄り駅
- 神奈川新町 徒歩 8分
-
ベルフェリーク横濱山下町
神奈川県横浜市中区山下町127-1
- 面積
- 23.52坪 〜
- 空きフロア
- 1
- 最寄り駅
- 元町・中華街 徒歩 6分
-
メゾン滝頭
神奈川県横浜市磯子区丸山2-20-16
- 面積
- 17.1坪 〜
- 空きフロア
- 1
- 最寄り駅
- 根岸 徒歩 22分
-
横浜ウエストサイドビル
神奈川県横浜市西区北幸2-15-10
- 面積
- 55.71坪 〜
- 空きフロア
- 1
- 最寄り駅
- 横浜 徒歩 11分
新横浜第一生命ビル の近隣のエリア・駅から探す
オフィス移転・物件探しを無料でサポートします
物件探しだけでは、オフィス移転は成功しません。
私たちは単なる「物件紹介会社」ではありません。オフィス移転にかかる費用総額を最小化する専門会社です。物件契約時の仲介手数料0円に加え、内装工事も中間マージンを排除した適正価格でご提案し、トータルコストを大幅に削減します。「希望の物件が見つからない」「移転費用を抑えたい」など、移転をお考えの方はメールまたはお電話でお気軽にご相談ください。




