- 物件番号
- 56027-84423
| 階数 | 5階 |
|---|---|
| 用途/仕様 | 店舗 |
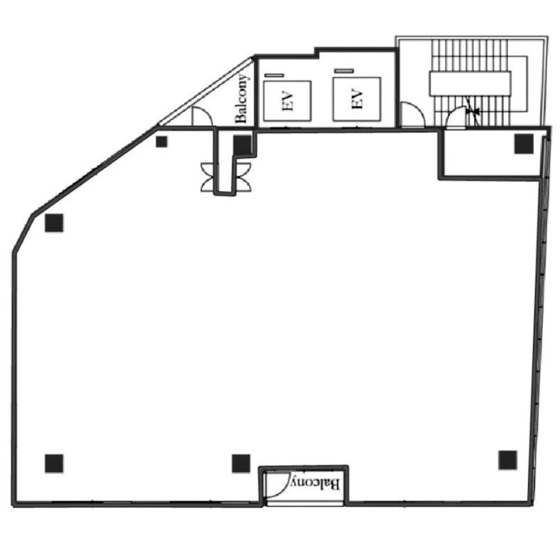
| 面積 | 52.11坪(172.26㎡) |
| 賃料 | |
| 共益費 | |
| 保証金/敷金 | |
| 入居日 | |
| 所在地 | 東京都渋谷区代々木1-35-3 |
| 竣工 | 1970年1月 |
| 最寄り駅 |
都営大江戸線 代々木 徒歩 1分 JR山手線 代々木 徒歩 1分 |
| 構造 | S造(鉄骨造) |
ポイント
toDOe代々木は、東京都渋谷区代々木1-35-3に位置する地上7階・地下1階建てのオフィスビルです。都営大江戸線「代々木」駅から徒歩1分、JR山手線「代々木」駅からも徒歩1分という駅直結に近い好立地です。1970年竣工のS造で、基準階面積は約52坪、天井高は3
無料相談で理想のオフィスを見つけましょう
東京で賃貸オフィスをお探しなら、仲介手数料0円の東京オフィスチェックにお任せください。
移転をお考えの方も、お迷いの方も、メールフォームやお電話でお気軽にご相談ください。
toDOe代々木 のアクセス
toDOe代々木 の募集中区画
現在、他に募集中の区画はありません
この区画にオススメのレイアウト
-
オフィスサンプルレイアウト123
- 広さ
- 53.5坪(177㎡)
- 会議室
- あり
- 従業員数
- 11
-
オフィスサンプルレイアウト119
- 広さ
- 85坪(281㎡)
- 会議室
- あり
- 従業員数
- 31
-
オフィスサンプルレイアウト112
- 広さ
- 71.3坪(236㎡)
- 会議室
- あり
- 従業員数
- 33
-
オフィスサンプルレイアウト111
- 広さ
- 85.5坪(283㎡)
- 会議室
- あり
- 従業員数
- 31
toDOe代々木 の条件に近い物件
-
LARK YOYOGI
東京都渋谷区代々木4-27-25
- 面積
- 719.04坪 〜
- 空きフロア
- 1
- 最寄り駅
- 初台 徒歩 7分
-
アカデミービル
東京都渋谷区千駄ヶ谷3-7-4
- 面積
- 29.07坪 〜
- 空きフロア
- 1
- 最寄り駅
- 北参道 徒歩 1分
-
ウエストサイド新宿御苑
東京都渋谷区千駄ヶ谷5-12-13
- 面積
- 32.6坪 〜
- 空きフロア
- 1
- 最寄り駅
- 代々木 徒歩 6分
-
メゾンポア
東京都渋谷区千駄ヶ谷1-5-5
- 面積
- 13.5坪 〜
- 空きフロア
- 1
- 最寄り駅
- 千駄ケ谷 徒歩 4分
toDOe代々木 の近隣のエリア・駅から探す
オフィス移転・物件探しを無料でサポートします
物件探しだけでは、オフィス移転は成功しません。
私たちは単なる「物件紹介会社」ではありません。オフィス移転にかかる費用総額を最小化する専門会社です。物件契約時の仲介手数料0円に加え、内装工事も中間マージンを排除した適正価格でご提案し、トータルコストを大幅に削減します。「希望の物件が見つからない」「移転費用を抑えたい」など、移転をお考えの方はメールまたはお電話でお気軽にご相談ください。






