- 物件番号
- 54206-74611
| 階数 | 1階 |
|---|---|
| 用途/仕様 | 事務所 |
| 面積 | 29.84坪(98.64㎡) |
| 賃料 | 相談 |
| 共益費 | 込 |
| 保証金/敷金 | 12ヶ月 |
| 入居日 | 即 |
| 所在地 | 東京都墨田区堤通1-19-9 |
| 竣工 | 1994年7月 |
| 最寄り駅 |
東武伊勢崎線 東向島 徒歩 9分 京成押上線 京成曳舟 徒歩 15分 |
| 構造 | SRC造(鉄骨鉄筋コンクリート造) |
ポイント
リバーサイド隅田は、東京都墨田区堤通1-19-9に位置するオフィスビルです。竣工は1994年、最寄り駅は東武伊勢崎線「東向島」駅(徒歩9分)です。元・大林組本社ビルとして建設され、下層階がオフィス、上層階はレジデンスになっています。2015年末にエントランスや共用部を大幅リニューアルし、木目調と緑を取り入れたモダンなデザインへ刷新。駐車場が充実し、曳舟駅からシャトルバスも運行。通勤の利便性も確保された物件です。
無料相談で理想のオフィスを見つけましょう
東京で賃貸オフィスをお探しなら、仲介手数料0円の東京オフィスチェックにお任せください。
移転をお考えの方も、お迷いの方も、メールフォームやお電話でお気軽にご相談ください。
リバーサイド隅田 のアクセス
リバーサイド隅田 の募集中区画
| 階数 | 面積 | 賃料 | 共益費 | 保証金/敷金 | 入居可能日 | 検討リスト | 詳細 | 問合せ |
|---|---|---|---|---|---|---|---|---|
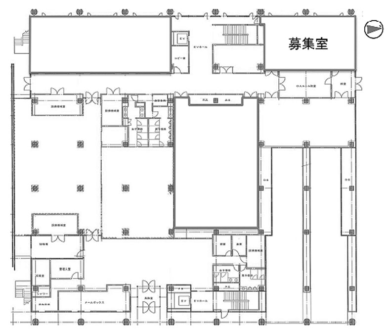
| 1階 | 29.84坪 | 相談 | 込 | 12ヶ月 | 即 | 詳細 > リバーサイド隅田 1 (98.64㎡) |墨田区 の賃貸オフィス・セットアップオフィス | お問い合わせ > | |
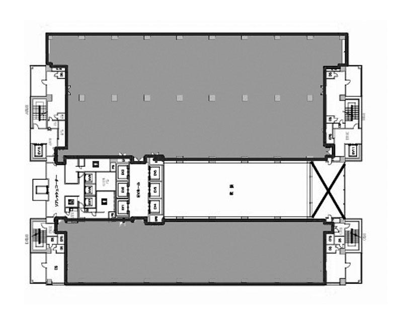
| 9階 | 89.04坪 | 相談 | 込 | 12ヶ月 | 即 | 詳細 > リバーサイド隅田 9 (294.35㎡) |墨田区 の賃貸オフィス・セットアップオフィス | お問い合わせ > | |
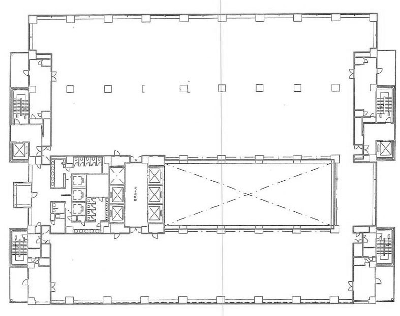
| 12階 | 592.39坪 | 相談 | 込 | 12ヶ月 | 即 | 詳細 > リバーサイド隅田 12 (1958.31㎡) |墨田区 の賃貸オフィス・セットアップオフィス | お問い合わせ > |
この区画にオススメのレイアウト
-
オフィスサンプルレイアウト120
- 広さ
- 30.2坪(100㎡)
- 会議室
- あり
- 従業員数
- 12
-
オフィスサンプルレイアウト118
- 広さ
- 40.2坪(133㎡)
- 会議室
- なし
- 従業員数
- 20
-
オフィスサンプルレイアウト117
- 広さ
- 22.6坪(75㎡)
- 会議室
- あり
- 従業員数
- 11
-
オフィスサンプルレイアウト116
- 広さ
- 39.9坪(132㎡)
- 会議室
- あり
- 従業員数
- 11
リバーサイド隅田 の近隣のエリア・駅から探す
オフィス移転・物件探しを無料でサポートします
物件探しだけでは、オフィス移転は成功しません。
私たちは単なる「物件紹介会社」ではありません。オフィス移転にかかる費用総額を最小化する専門会社です。物件契約時の仲介手数料0円に加え、内装工事も中間マージンを排除した適正価格でご提案し、トータルコストを大幅に削減します。「希望の物件が見つからない」「移転費用を抑えたい」など、移転をお考えの方はメールまたはお電話でお気軽にご相談ください。



