- 物件番号
- 54029-300156
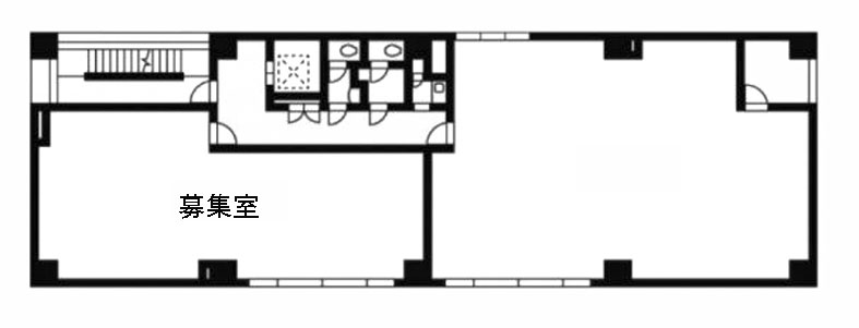
| 階数 | 5A |
|---|---|
| 用途/仕様 | 事務所 |
| 面積 | 23.86坪(78.88㎡) |
| 賃料 | 262,460円(11,000円/坪) |
| 共益費 | 71,580円 |
| 保証金/敷金 | 10ヶ月 |
| 入居日 | 2026/4 |
| 所在地 | 東京都台東区蔵前3-12-8 |
| 竣工 | 1987年5月 |
| 最寄り駅 |
都営大江戸線 蔵前 徒歩 1分 都営浅草線 蔵前 徒歩 1分 |
| 構造 | SRC造(鉄骨鉄筋コンクリート造) |
ポイント
岡安ビルは、東京都台東区蔵前3-12-8に位置するオフィスビルです。竣工は1987年、最寄り駅は都営大江戸線「蔵前」駅(徒歩1分)です。タイル貼りの落ち着いた外観が特徴で、江戸通りに面し視認性・採光性ともに良好です。ぜひ一度ご内見ください。
無料相談で理想のオフィスを見つけましょう
東京で賃貸オフィスをお探しなら、仲介手数料0円の東京オフィスチェックにお任せください。
移転をお考えの方も、お迷いの方も、メールフォームやお電話でお気軽にご相談ください。
岡安ビル のアクセス
岡安ビル の募集中区画
| 階数 | 面積 | 賃料 | 共益費 | 保証金/敷金 | 入居可能日 | 検討リスト | 詳細 | 問合せ |
|---|---|---|---|---|---|---|---|---|
| 5A | 23.86坪 | 262,460円 | 71,580円 | 10ヶ月 | 2026/4 | 詳細 > 岡安ビル 5A (78.88㎡) |台東区 の賃貸オフィス・セットアップオフィス | お問い合わせ > | |
| 8A | 23.81坪 | 261,910円 | 71,430円 | 10ヶ月 | 2026/8 | 詳細 > 岡安ビル 8A (78.71㎡) |台東区 の賃貸オフィス・セットアップオフィス | お問い合わせ > |
この区画にオススメのレイアウト
-
オフィスサンプルレイアウト120
- 広さ
- 30.2坪(100㎡)
- 会議室
- あり
- 従業員数
- 12
-
オフィスサンプルレイアウト118
- 広さ
- 40.2坪(133㎡)
- 会議室
- なし
- 従業員数
- 20
-
オフィスサンプルレイアウト117
- 広さ
- 22.6坪(75㎡)
- 会議室
- あり
- 従業員数
- 11
-
オフィスサンプルレイアウト116
- 広さ
- 39.9坪(132㎡)
- 会議室
- あり
- 従業員数
- 11
岡安ビル の条件に近い物件
-
O・Kビル
東京都台東区鳥越2-7-12
- 面積
- 坪 〜
- 空きフロア
- 0
- 最寄り駅
- 蔵前 徒歩 5分
-
赤木屋ビル
東京都台東区三筋1-12-6
- 面積
- 坪 〜
- 空きフロア
- 0
- 最寄り駅
- 新御徒町 徒歩 5分
-
ニューウイング蔵前
東京都台東区三筋1-7-1
- 面積
- 坪 〜
- 空きフロア
- 0
- 最寄り駅
- 新御徒町 徒歩 4分
-
SEIWA EAST FACE
東京都台東区浅草橋5-19-5
- 面積
- 42.49坪 〜
- 空きフロア
- 2
- 最寄り駅
- 浅草橋 徒歩 6分
岡安ビル の近隣のエリア・駅から探す
オフィス移転・物件探しを無料でサポートします
物件探しだけでは、オフィス移転は成功しません。
私たちは単なる「物件紹介会社」ではありません。オフィス移転にかかる費用総額を最小化する専門会社です。物件契約時の仲介手数料0円に加え、内装工事も中間マージンを排除した適正価格でご提案し、トータルコストを大幅に削減します。「希望の物件が見つからない」「移転費用を抑えたい」など、移転をお考えの方はメールまたはお電話でお気軽にご相談ください。
