- 物件番号
- 53845-86124
| 階数 | 8階 |
|---|---|
| 用途/仕様 | 事務所 |
| 面積 | 64.60坪(213.55㎡) |
| 賃料 | |
| 共益費 | |
| 保証金/敷金 | |
| 入居日 | |
| 所在地 | 東京都港区南青山6-12-1 |
| 竣工 | 1984年6月 |
| 最寄り駅 |
銀座線 表参道 徒歩 7分 千代田線 表参道 徒歩 7分 半蔵門線 表参道 徒歩 7分 |
| 構造 | SRC造(鉄骨鉄筋コンクリート造) |
ポイント
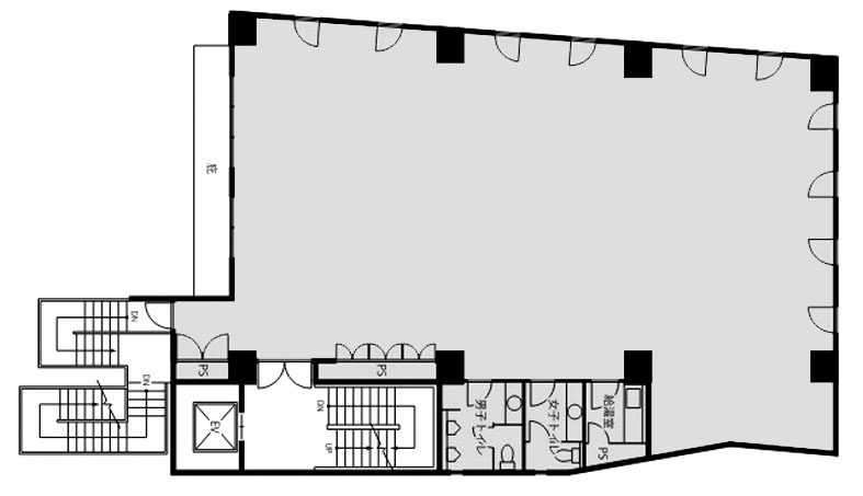
東京都港区南青山にある地上8階地下1階の賃貸オフィス物件です。 最寄りは、銀座線・千代田線・半蔵門線の各表参道駅より徒歩7分です。 1984年竣工、エレベーター1基、機械警備システムを導入済です。 貸室は、シンプルな間取り、トイレと給湯スペースは貸室内、各階個別空調を完備、角地で窓面も多く、採光も優れています。 周辺はカフェや雑貨店なども多く立ち並びます。
無料相談で理想のオフィスを見つけましょう
東京で賃貸オフィスをお探しなら、仲介手数料0円の東京オフィスチェックにお任せください。
移転をお考えの方も、お迷いの方も、メールフォームやお電話でお気軽にご相談ください。
TTS南青山ビル のアクセス
TTS南青山ビル の募集中区画
現在、他に募集中の区画はありません
この区画にオススメのレイアウト
-
オフィスサンプルレイアウト123
- 広さ
- 53.5坪(177㎡)
- 会議室
- あり
- 従業員数
- 11
-
オフィスサンプルレイアウト119
- 広さ
- 85坪(281㎡)
- 会議室
- あり
- 従業員数
- 31
-
オフィスサンプルレイアウト112
- 広さ
- 71.3坪(236㎡)
- 会議室
- あり
- 従業員数
- 33
-
オフィスサンプルレイアウト111
- 広さ
- 85.5坪(283㎡)
- 会議室
- あり
- 従業員数
- 31
TTS南青山ビル の条件に近い物件
-
アーク森ビル
東京都港区赤坂1-12-32
- 面積
- 612坪 〜
- 空きフロア
- 9
- 最寄り駅
- 六本木一丁目 徒歩 2分
-
英ビル
東京都港区南青山5-12-6
- 面積
- 15.51坪 〜
- 空きフロア
- 1
- 最寄り駅
- 表参道 徒歩 6分
-
寿光ビル
東京都港区南青山1-26-1
- 面積
- 144.75坪 〜
- 空きフロア
- 1
- 最寄り駅
- 乃木坂 徒歩 1分
-
オーク赤坂ビル
東京都港区赤坂7-1-16
- 面積
- 86.36坪 〜
- 空きフロア
- 5
- 最寄り駅
- 青山一丁目 徒歩 6分
TTS南青山ビル の近隣のエリア・駅から探す
オフィス移転・物件探しを無料でサポートします
物件探しだけでは、オフィス移転は成功しません。
私たちは単なる「物件紹介会社」ではありません。オフィス移転にかかる費用総額を最小化する専門会社です。物件契約時の仲介手数料0円に加え、内装工事も中間マージンを排除した適正価格でご提案し、トータルコストを大幅に削減します。「希望の物件が見つからない」「移転費用を抑えたい」など、移転をお考えの方はメールまたはお電話でお気軽にご相談ください。





