- 物件番号
- 53544-76128
| 階数 | 1階 |
|---|---|
| 用途/仕様 | 事務所 |
| 面積 | 39.31坪(129.95㎡) |
| 賃料 | 1,061,370円(27,000円/坪) |
| 共益費 | 98,275円 |
| 保証金/敷金 | 6ヶ月 |
| 入居日 | 2026/9 |
| 所在地 | 東京都港区六本木2-2-6 |
| 竣工 | 1964年11月 |
| 最寄り駅 |
東京メトロ南北線 六本木一丁目 徒歩 3分 東京メトロ銀座線 溜池山王 徒歩 7分 東京メトロ千代田線 赤坂 徒歩 8分 東京メトロ日比谷線 六本木 徒歩 10分 都営大江戸線 六本木 徒歩 10分 |
| 構造 | SRC造(鉄骨鉄筋コンクリート造) |
ポイント
福吉町ビルは、東京都港区六本木2-2-6に位置するオフィスビルです。竣工は1964年で、最寄り駅は東京メトロ銀座線「溜池山王」駅(徒歩7分)です。東京メトロ南北線「六本木一丁目」駅(徒歩3分)も利用可能。赤坂アークヒルズ向かいの大通り沿いに位置し、天井高2.6mの開放的な空間が特徴。ビル内には有料の会議室や2箇所の喫煙所も完備されています。
無料相談で理想のオフィスを見つけましょう
東京で賃貸オフィスをお探しなら、仲介手数料0円の東京オフィスチェックにお任せください。
移転をお考えの方も、お迷いの方も、メールフォームやお電話でお気軽にご相談ください。
六本木福吉町ビル のアクセス
六本木福吉町ビル の募集中区画
| 階数 | 面積 | 賃料 | 共益費 | 保証金/敷金 | 入居可能日 | 検討リスト | 詳細 | 問合せ |
|---|---|---|---|---|---|---|---|---|
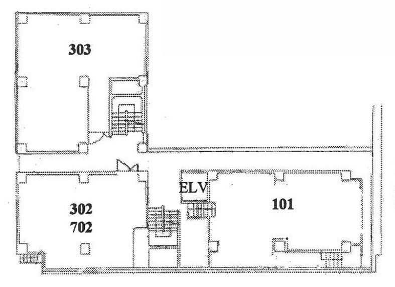
| 1階 | 39.31坪 | 1,061,370円 | 98,275円 | 6ヶ月 | 2026/9 | 詳細 > 六本木福吉町ビル 1 (129.95㎡) |港区 の賃貸オフィス・セットアップオフィス | お問い合わせ > | |
| 201 | 38.50坪 | 481,250円 | 77,000円 | 4ヶ月 | 即 | 詳細 > 六本木福吉町ビル 201 (127.27㎡) |港区 の賃貸オフィス・セットアップオフィス | お問い合わせ > | |
| 203 | 34.15坪 | 426,875円 | 68,300円 | 6ヶ月 | 2026/9 | 詳細 > 六本木福吉町ビル 203 (112.89㎡) |港区 の賃貸オフィス・セットアップオフィス | お問い合わせ > |
この区画にオススメのレイアウト
-
オフィスサンプルレイアウト120
- 広さ
- 30.2坪(100㎡)
- 会議室
- あり
- 従業員数
- 12
-
オフィスサンプルレイアウト118
- 広さ
- 40.2坪(133㎡)
- 会議室
- なし
- 従業員数
- 20
-
オフィスサンプルレイアウト117
- 広さ
- 22.6坪(75㎡)
- 会議室
- あり
- 従業員数
- 11
-
オフィスサンプルレイアウト116
- 広さ
- 39.9坪(132㎡)
- 会議室
- あり
- 従業員数
- 11
六本木福吉町ビル の条件に近い物件
-
エル麻布矢島ビル
東京都港区麻布十番2-8-8
- 面積
- 14.07坪 〜
- 空きフロア
- 1
- 最寄り駅
- 麻布十番 徒歩 2分
-
野沢ビル
東京都港区六本木3-11-6
- 面積
- 15坪 〜
- 空きフロア
- 1
- 最寄り駅
- 六本木 徒歩 2分
-
ソレアード六本木
東京都港区六本木3-3-17
- 面積
- 31.47坪 〜
- 空きフロア
- 1
- 最寄り駅
- 六本木一丁目 徒歩 3分
-
六本木グランドプラザ
東京都港区六本木3-1-25
- 面積
- 坪 〜
- 空きフロア
- 0
- 最寄り駅
- 六本木一丁目 徒歩 1分
六本木福吉町ビル の近隣のエリア・駅から探す
オフィス移転・物件探しを無料でサポートします
物件探しだけでは、オフィス移転は成功しません。
私たちは単なる「物件紹介会社」ではありません。オフィス移転にかかる費用総額を最小化する専門会社です。物件契約時の仲介手数料0円に加え、内装工事も中間マージンを排除した適正価格でご提案し、トータルコストを大幅に削減します。「希望の物件が見つからない」「移転費用を抑えたい」など、移転をお考えの方はメールまたはお電話でお気軽にご相談ください。




