- 物件番号
- 53251-98083
| 階数 | 3階 |
|---|---|
| 用途/仕様 | 事務所 |
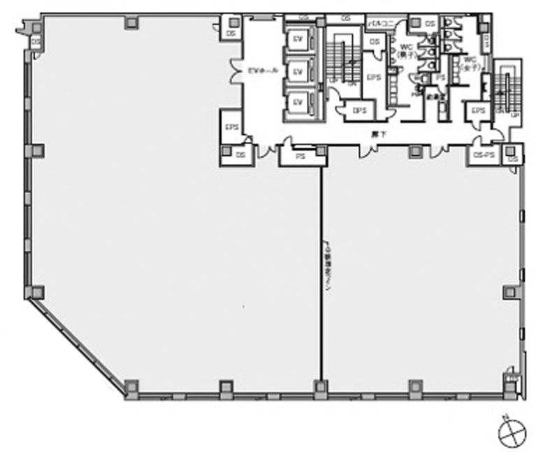
| 面積 | 251.86坪(832.60㎡) |
| 賃料 | |
| 共益費 | |
| 保証金/敷金 | |
| 入居日 | 即 |
| 所在地 | 東京都港区新橋6-17-15 |
| 竣工 | 2015年3月 |
| 最寄り駅 |
都営三田線 御成門 徒歩 1分 都営大江戸線 汐留 徒歩 8分 都営浅草線 大門 徒歩 8分 |
| 構造 | S造(鉄骨造) |
ポイント
御成門駅より徒歩2分、港区新橋6丁目にある賃貸オフィスビルです。2015年竣工で、新耐震基準を満たしています。地上8階・地下1階建てで、エレベーターは3基設置されています。1フロア約250坪の広々とした無柱空間で、自在なオフィスレイアウトが実現できます。賃室内だけでなく共用部にも凝った造りで、ゆとりとデザイン性に富んだエントランス空間で、来訪者を気持ち良く迎えられます。
無料相談で理想のオフィスを見つけましょう
東京で賃貸オフィスをお探しなら、仲介手数料0円の東京オフィスチェックにお任せください。
移転をお考えの方も、お迷いの方も、メールフォームやお電話でお気軽にご相談ください。
菱進御成門ビル のアクセス
菱進御成門ビル の募集中区画
| 階数 | 面積 | 賃料 | 共益費 | 保証金/敷金 | 入居可能日 | 検討リスト | 詳細 | 問合せ |
|---|---|---|---|---|---|---|---|---|
|
新着 2階 |
251.86坪 | 相談 | 相談 | 相談 | 即 | 詳細 > 菱進御成門ビル 2 (832.6㎡) |港区 の賃貸オフィス・セットアップオフィス | お問い合わせ > |
この区画にオススメのレイアウト
-
オフィスサンプルレイアウト122
- 広さ
- 159.4坪(527㎡)
- 会議室
- あり
- 従業員数
- 50
-
オフィスサンプルレイアウト121
- 広さ
- 189.5坪(627㎡)
- 会議室
- あり
- 従業員数
- 80
-
オフィスサンプルレイアウト113
- 広さ
- 113.4坪(375㎡)
- 会議室
- あり
- 従業員数
- 84
-
オフィスサンプルレイアウト107
- 広さ
- 260.7坪(862㎡)
- 会議室
- あり
- 従業員数
- 96
菱進御成門ビル の条件に近い物件
-
新橋SNTビル
東京都港区新橋2-19-4
- 面積
- 56.54坪 〜
- 空きフロア
- 3
- 最寄り駅
- 新橋 徒歩 1分
-
ル・グラシエルBLDG.63
東京都港区新橋4-19-1
- 面積
- 14坪 〜
- 空きフロア
- 1
- 最寄り駅
- 新橋 徒歩 1分
-
ル・グラシエルBLDG.1
東京都港区新橋6-20-1
- 面積
- 38.46坪 〜
- 空きフロア
- 19
- 最寄り駅
- 御成門 徒歩 5分
-
新橋TSビル
東京都港区新橋6-23-7
- 面積
- 13.73坪 〜
- 空きフロア
- 1
- 最寄り駅
- 御成門 徒歩 4分
菱進御成門ビル の近隣のエリア・駅から探す
オフィス移転・物件探しを無料でサポートします
物件探しだけでは、オフィス移転は成功しません。
私たちは単なる「物件紹介会社」ではありません。オフィス移転にかかる費用総額を最小化する専門会社です。物件契約時の仲介手数料0円に加え、内装工事も中間マージンを排除した適正価格でご提案し、トータルコストを大幅に削減します。「希望の物件が見つからない」「移転費用を抑えたい」など、移転をお考えの方はメールまたはお電話でお気軽にご相談ください。




