- 物件番号
- 53251
新着
| 所在地 | 東京都港区新橋6-17-15 |
|---|---|
| 竣工 | 2015年3月 |
| 最寄り駅 |
都営三田線 御成門 徒歩 1分 都営大江戸線 汐留 徒歩 8分 都営浅草線 大門 徒歩 8分 |
| 構造 | S造(鉄骨造) |
| 階数 | 地上8階/地下1階 |
| エレベータ | 3基 |
| 空調 | 個別空調 |
| トイレ | 男女別 |
| 警備 | 有人+機械警備 |
| 使用時間 | 24時間使用可 |
ポイント
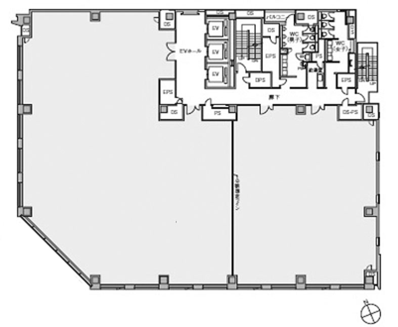
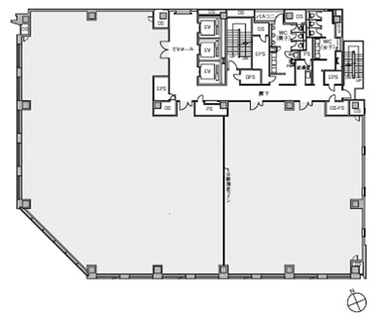
御成門駅より徒歩2分、港区新橋6丁目にある賃貸オフィスビルです。2015年竣工で、新耐震基準を満たしています。地上8階・地下1階建てで、エレベーターは3基設置されています。1フロア約250坪の広々とした無柱空間で、自在なオフィスレイアウトが実現できます。賃室内だけでなく共用部にも凝った造りで、ゆとりとデザイン性に富んだエントランス空間で、来訪者を気持ち良く迎えられます。
菱進御成門ビル の募集中区画
| 階数 | 面積(坪) | 賃料(円) | 共益費 | 保証金/敷金 | 入居可能日 | 検討リスト | 詳細 | 問合せ |
|---|---|---|---|---|---|---|---|---|
|
新着 2階 |
251.86坪 | 相談 | 相談 | 相談 | 即 | 詳細 > 菱進御成門ビル 2 (832.6㎡) |新橋・虎ノ門エリア の賃貸オフィス・セットアップオフィス | お問い合わせ > |
無料相談で理想のオフィスを見つけましょう
東京で賃貸オフィスをお探しなら、仲介手数料0円の東京オフィスチェックにお任せください。
移転をお考えの方も、お迷いの方も、メールフォームやお電話でお気軽にご相談ください。
菱進御成門ビル のアクセス
菱進御成門ビル の近隣のエリア・駅から探す
菱進御成門ビル の募集終了区画
| 階数 | 面積(坪) | 賃料(円) | 共益費 | 保証金/敷金 | 入居可能日 | 詳細 |
|---|---|---|---|---|---|---|
| 2階 | 165.08坪 | ー | ー | ー | 募集終了 | 詳細 > 菱進御成門ビル 2 (545.72㎡) |新橋・虎ノ門エリア の賃貸オフィス・セットアップオフィス |
| 2階 | 86.77坪 | ー | ー | ー | 募集終了 | 詳細 > 菱進御成門ビル 2 (286.84㎡) |新橋・虎ノ門エリア の賃貸オフィス・セットアップオフィス |
| 2階 | 251.86坪 | ー | ー | ー | 募集終了 | 詳細 > |新橋・虎ノ門エリア の賃貸オフィス・セットアップオフィス |
| 3階 | 251.86坪 | ー | ー | ー | 募集終了 | 詳細 > 菱進御成門ビル 3 (832.6㎡) |新橋・虎ノ門エリア の賃貸オフィス・セットアップオフィス |
| 3階 | 251.86坪 | ー | ー | ー | 募集終了 | 詳細 > |新橋・虎ノ門エリア の賃貸オフィス・セットアップオフィス |
| 4階 | 251.86坪 | ー | ー | ー | 募集終了 | 詳細 > 菱進御成門ビル 4 (832.6㎡) |新橋・虎ノ門エリア の賃貸オフィス・セットアップオフィス |
| 5階 | 251.86坪 | ー | ー | ー | 募集終了 | 詳細 > 菱進御成門ビル 5 (832.6㎡) |新橋・虎ノ門エリア の賃貸オフィス・セットアップオフィス |
| 6階 | 251.86坪 | ー | ー | ー | 募集終了 | 詳細 > 菱進御成門ビル 6 (832.6㎡) |新橋・虎ノ門エリア の賃貸オフィス・セットアップオフィス |
| 7階 | 251.86坪 | ー | ー | ー | 募集終了 | 詳細 > 菱進御成門ビル 7 (832.6㎡) |新橋・虎ノ門エリア の賃貸オフィス・セットアップオフィス |
| 8階 | 223.88坪 | ー | ー | ー | 募集終了 | 詳細 > 菱進御成門ビル 8 (740.1㎡) |新橋・虎ノ門エリア の賃貸オフィス・セットアップオフィス |
菱進御成門ビル の条件に近い物件
オフィス移転・物件探しを無料でサポートします
物件探しだけでは、オフィス移転は成功しません。
私たちは単なる「物件紹介会社」ではありません。オフィス移転にかかる費用総額を最小化する専門会社です。物件契約時の仲介手数料0円に加え、内装工事も中間マージンを排除した適正価格でご提案し、トータルコストを大幅に削減します。「希望の物件が見つからない」「移転費用を抑えたい」など、移転をお考えの方はメールまたはお電話でお気軽にご相談ください。



