- 物件番号
- 53234-66050
| 階数 | 4階 |
|---|---|
| 用途/仕様 | 事務所・店舗 |
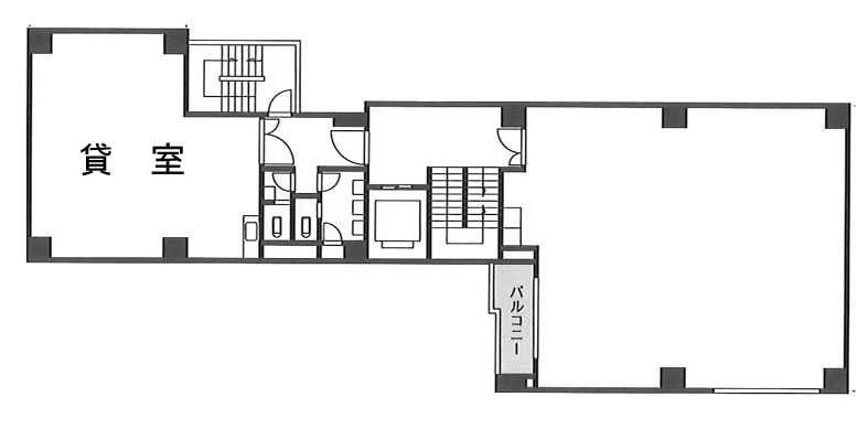
| 面積 | 14.78坪(48.86㎡) |
| 賃料 | |
| 共益費 | |
| 保証金/敷金 | |
| 入居日 | |
| 所在地 | 東京都港区新橋5-25-3 |
| 竣工 | 1983年10月 |
| 最寄り駅 |
都営三田線 御成門 徒歩 5分 JR山手線 新橋 徒歩 8分 都営大江戸線 汐留 徒歩 9分 |
| 構造 | RC造(鉄筋コンクリート造) |
ポイント
御成門駅より徒歩5分、港区新橋5丁目にある賃貸オフィスビルです。1983年竣工、鉄筋コンクリート造(RC造)で、新耐震基準を満たしています。地上8階建てで、エレベーターは1基設置されています。基準階面積は約45坪で、エレベーターホールを挟んで2つの独立した区画に分かれており、賃室内は柔軟なレイアウトが可能です。
無料相談で理想のオフィスを見つけましょう
東京で賃貸オフィスをお探しなら、仲介手数料0円の東京オフィスチェックにお任せください。
移転をお考えの方も、お迷いの方も、メールフォームやお電話でお気軽にご相談ください。
第2一松ビル のアクセス
第2一松ビル の募集中区画
| 階数 | 面積 | 賃料 | 共益費 | 保証金/敷金 | 入居可能日 | 検討リスト | 詳細 | 問合せ |
|---|---|---|---|---|---|---|---|---|
| 2B | 14.78坪 | 230,000円 | 込 | 8ヶ月 | 2026/4/上 | 詳細 > 第2一松ビル 2B (48.86㎡) |港区 の賃貸オフィス・セットアップオフィス | お問い合わせ > | |
| 6A | 29.71坪 | 480,000円 | 込 | 8ヶ月 | 2026/4/上 | 詳細 > 第2一松ビル 6A (98.21㎡) |港区 の賃貸オフィス・セットアップオフィス | お問い合わせ > |
この区画にオススメのレイアウト
-
オフィスサンプルレイアウト98
- 広さ
- 14.7坪(49㎡)
- 会議室
- あり
- 従業員数
- 4
-
オフィスサンプルレイアウト70
- 広さ
- 14.4坪(48㎡)
- 会議室
- あり
- 従業員数
- 5
-
オフィスサンプルレイアウト64
- 広さ
- 16.8坪(56㎡)
- 会議室
- あり
- 従業員数
- 5
-
オフィスサンプルレイアウト61
- 広さ
- 15.6坪(52㎡)
- 会議室
- あり
- 従業員数
- 7
第2一松ビル の条件に近い物件
-
虎ノ門菅井ビル
東京都港区虎ノ門3-18-16
- 面積
- 45.25坪 〜
- 空きフロア
- 1
- 最寄り駅
- 神谷町 徒歩 1分
-
菱進御成門ビル
東京都港区新橋6-17-15
- 面積
- 251.86坪 〜
- 空きフロア
- 11
- 最寄り駅
- 御成門 徒歩 1分
-
新橋SNTビル
東京都港区新橋2-19-4
- 面積
- 56.54坪 〜
- 空きフロア
- 3
- 最寄り駅
- 新橋 徒歩 1分
-
ル・グラシエルBLDG.63
東京都港区新橋4-19-1
- 面積
- 14坪 〜
- 空きフロア
- 1
- 最寄り駅
- 新橋 徒歩 1分
第2一松ビル の近隣のエリア・駅から探す
オフィス移転・物件探しを無料でサポートします
物件探しだけでは、オフィス移転は成功しません。
私たちは単なる「物件紹介会社」ではありません。オフィス移転にかかる費用総額を最小化する専門会社です。物件契約時の仲介手数料0円に加え、内装工事も中間マージンを排除した適正価格でご提案し、トータルコストを大幅に削減します。「希望の物件が見つからない」「移転費用を抑えたい」など、移転をお考えの方はメールまたはお電話でお気軽にご相談ください。



