- 物件番号
- 52837-87114
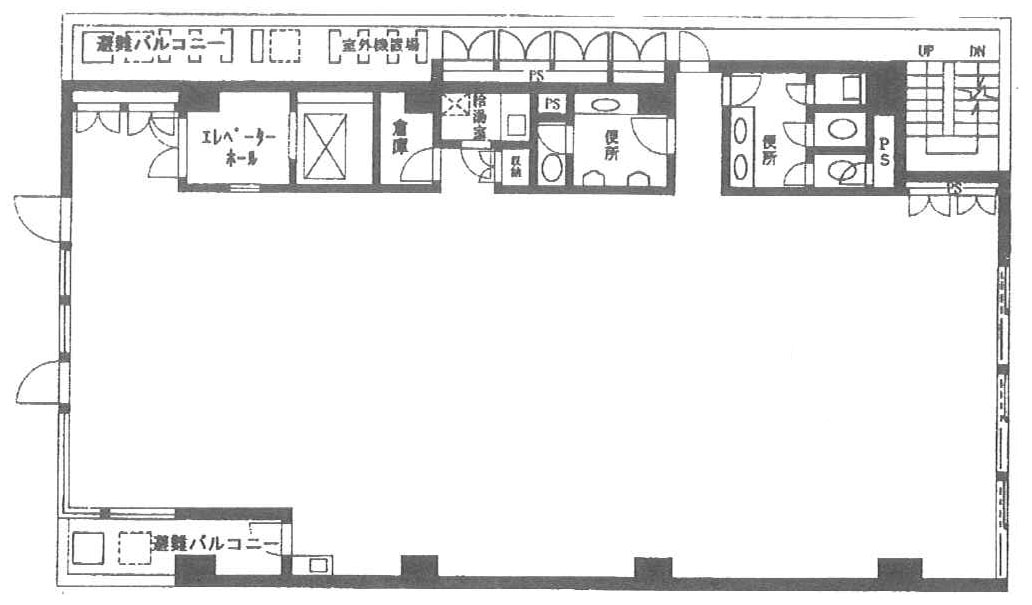
| 階数 | 5階 |
|---|---|
| 用途/仕様 | 事務所 |
| 面積 | 74.00坪(244.63㎡) |
| 賃料 | |
| 共益費 | |
| 保証金/敷金 | |
| 入居日 | |
| 所在地 | 東京都中央区明石町7-14 |
| 竣工 | 1996年4月 |
| 最寄り駅 |
東京メトロ有楽町線 新富町 徒歩 5分 東京メトロ日比谷線 築地 徒歩 6分 JR京葉線 八丁堀 徒歩 7分 |
| 構造 | SRC造(鉄骨鉄筋コンクリート造) |
ポイント
築地駅より徒歩6分、中央区明石町にある賃貸オフィスビルです。1996年竣工、地上8階建てで、エレベーターは1基設置されています。2018年にエントランス・賃室内など大規模なリニューアルを実施しています。基準階面積は約70坪で、個別空調となっています。機械警備が完備されており、オフィスは24時間利用可能となっています。
無料相談で理想のオフィスを見つけましょう
東京で賃貸オフィスをお探しなら、仲介手数料0円の東京オフィスチェックにお任せください。
移転をお考えの方も、お迷いの方も、メールフォームやお電話でお気軽にご相談ください。
築地リバーフロント のアクセス
築地リバーフロント の募集中区画
| 階数 | 面積 | 賃料 | 共益費 | 保証金/敷金 | 入居可能日 | 検討リスト | 詳細 | 問合せ |
|---|---|---|---|---|---|---|---|---|
| 3階 | 69.01坪 | 1,483,715円 | 込 | 6ヶ月 | 2026/4/上 | 詳細 > 築地リバーフロント 3 (228.13㎡) |中央区 の賃貸オフィス・セットアップオフィス | お問い合わせ > | |
| 4階 | 69.01坪 | 1,518,220円 | 込 | 6ヶ月 | 即 | 詳細 > 築地リバーフロント 4 (228.13㎡) |中央区 の賃貸オフィス・セットアップオフィス | お問い合わせ > |
この区画にオススメのレイアウト
-
オフィスサンプルレイアウト123
- 広さ
- 53.5坪(177㎡)
- 会議室
- あり
- 従業員数
- 11
-
オフィスサンプルレイアウト119
- 広さ
- 85坪(281㎡)
- 会議室
- あり
- 従業員数
- 31
-
オフィスサンプルレイアウト112
- 広さ
- 71.3坪(236㎡)
- 会議室
- あり
- 従業員数
- 33
-
オフィスサンプルレイアウト111
- 広さ
- 85.5坪(283㎡)
- 会議室
- あり
- 従業員数
- 31
築地リバーフロント の条件に近い物件
-
フェニックスビル
東京都中央区築地2-11-4
- 面積
- 23.00坪 〜
- 空きフロア
- 1
- 最寄り駅
- 築地 徒歩 1分
-
日本橋兜町第六葉山ビル
東京都中央区日本橋兜町17-2
- 面積
- 72.58坪 〜
- 空きフロア
- 2
- 最寄り駅
- 茅場町 徒歩 3分
-
茅場町EKKビル
東京都中央区日本橋茅場町3-2-2
- 面積
- 50.00坪 〜
- 空きフロア
- 1
- 最寄り駅
- 茅場町 徒歩 4分
-
茅場町偕成ビル
東京都中央区日本橋茅場町2-3-6
- 面積
- 坪 〜
- 空きフロア
- 0
- 最寄り駅
- 茅場町 徒歩 1分
築地リバーフロント の近隣のエリア・駅から探す
オフィス移転・物件探しを無料でサポートします
物件探しだけでは、オフィス移転は成功しません。
私たちは単なる「物件紹介会社」ではありません。オフィス移転にかかる費用総額を最小化する専門会社です。物件契約時の仲介手数料0円に加え、内装工事も中間マージンを排除した適正価格でご提案し、トータルコストを大幅に削減します。「希望の物件が見つからない」「移転費用を抑えたい」など、移転をお考えの方はメールまたはお電話でお気軽にご相談ください。



