- 物件番号
- 298087-305409
新着
| 階数 | 2階 |
|---|---|
| 用途/仕様 | 事務所 |
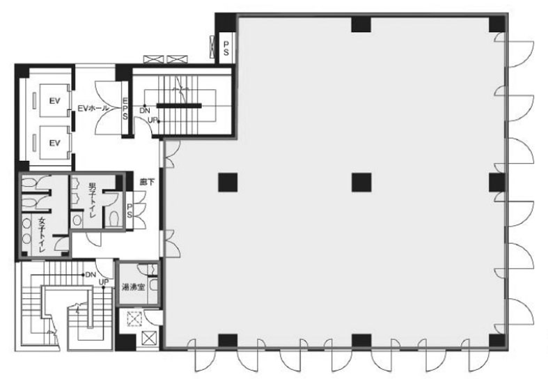
| 面積 | 71.35坪(235.87㎡) |
| 賃料 | 相談 |
| 共益費 | 込 |
| 保証金/敷金 | 12ヶ月 |
| 入居日 | 2026/5/13 |
| 所在地 | 東京都中央区八丁堀2-20-1 |
| 竣工 | 1991年3月 |
| 最寄り駅 |
東京メトロ日比谷線 八丁堀 徒歩 2分 東京メトロ東西線 茅場町 徒歩 5分 都営浅草線 宝町 徒歩 8分 都営浅草線 日本橋 徒歩 10分 |
| 構造 | SRC造(鉄骨鉄筋コンクリート造) |
ポイント
藤和八丁堀ビルは、東京都中央区八丁堀2丁目20-1に位置するSRC造地上8階・地下1階建ての賃貸オフィスビルです。1991年3月竣工で新耐震基準に適合しており、基準階面積は約71坪のゆとりある空間を備えています。
東京メトロ日比谷線「八丁堀駅」より徒歩2分と駅至近で、「茅場町駅」「宝町駅」「新富町駅」も徒歩圏内にあり、複数路線が利用可能です。エレベーター2基、機械警備、光ファイバー完備、24時間使用可能と充実した設備を誇ります。
八丁堀エリアは東京駅にも近く、金融・商社・IT企業など幅広い業種のオフィスが集積するビジネス街です。中規模オフィスとして十分な広さがあり、部署単位での入居や成長期の企業に適しています。
無料相談で理想のオフィスを見つけましょう
東京で賃貸オフィスをお探しなら、仲介手数料0円の東京オフィスチェックにお任せください。
移転をお考えの方も、お迷いの方も、メールフォームやお電話でお気軽にご相談ください。
藤和八丁堀ビル のアクセス
藤和八丁堀ビル の募集中区画
| 階数 | 面積 | 賃料 | 共益費 | 保証金/敷金 | 入居可能日 | 検討リスト | 詳細 | 問合せ |
|---|---|---|---|---|---|---|---|---|
|
新着 2階 |
71.35坪 | 相談 | 込 | 12ヶ月 | 2026/5/13 | 詳細 > 藤和八丁堀ビル 2 (235.87㎡) |中央区 の賃貸オフィス・セットアップオフィス | お問い合わせ > | |
|
新着 3階 |
71.35坪 | 相談 | 込 | 12ヶ月 | 2026/9/6 | 詳細 > 藤和八丁堀ビル 3 (235.87㎡) |中央区 の賃貸オフィス・セットアップオフィス | お問い合わせ > |
この区画にオススメのレイアウト
-
オフィスサンプルレイアウト123
- 広さ
- 53.5坪(177㎡)
- 会議室
- あり
- 従業員数
- 11
-
オフィスサンプルレイアウト119
- 広さ
- 85坪(281㎡)
- 会議室
- あり
- 従業員数
- 31
-
オフィスサンプルレイアウト112
- 広さ
- 71.3坪(236㎡)
- 会議室
- あり
- 従業員数
- 33
-
オフィスサンプルレイアウト111
- 広さ
- 85.5坪(283㎡)
- 会議室
- あり
- 従業員数
- 31
藤和八丁堀ビル の条件に近い物件
-
コンワビル
東京都中央区築地1-12-22
- 面積
- 9.78坪 〜
- 空きフロア
- 3
- 最寄り駅
- 東銀座 徒歩 2分
-
日本ビルディング本館
東京都中央区日本橋茅場町1-2-4
- 面積
- 82.61坪 〜
- 空きフロア
- 2
- 最寄り駅
- 茅場町 徒歩 3分
-
八丁堀KSビル
東京都中央区八丁堀1-12-4
- 面積
- 17.92坪 〜
- 空きフロア
- 1
- 最寄り駅
- 八丁堀 徒歩 3分
-
日本橋ピアザビル
東京都中央区日本橋茅場町3-1-11
- 面積
- 107坪 〜
- 空きフロア
- 1
- 最寄り駅
- 茅場町 徒歩 5分
藤和八丁堀ビル の近隣のエリア・駅から探す
オフィス移転・物件探しを無料でサポートします
物件探しだけでは、オフィス移転は成功しません。
私たちは単なる「物件紹介会社」ではありません。オフィス移転にかかる費用総額を最小化する専門会社です。物件契約時の仲介手数料0円に加え、内装工事も中間マージンを排除した適正価格でご提案し、トータルコストを大幅に削減します。「希望の物件が見つからない」「移転費用を抑えたい」など、移転をお考えの方はメールまたはお電話でお気軽にご相談ください。





