- 物件番号
- 259364-267457
| 階数 | 201 |
|---|---|
| 用途/仕様 | 事務所 |
| 面積 | 30.00坪(99.17㎡) |
| 賃料 | 600,000円(20,000円/坪) |
| 共益費 | 込 |
| 保証金/敷金 | 6ヶ月 |
| 入居日 | 即 |
| 所在地 | 東京都港区六本木5-16-46 |
| 竣工 | 1998年1月 |
| 最寄り駅 |
東京メトロ日比谷線 六本木 徒歩 5分 東京メトロ南北線 六本木一丁目 徒歩 7分 都営大江戸線 麻布十番 徒歩 7分 |
| 構造 | RC造(鉄筋コンクリート造) |
ポイント
ガーデニア六本木は、東京都港区六本木5丁目に位置する1998年1月竣工の地上3階建ての建物です。東京メトロ日比谷線・都営大江戸線「六本木駅」から徒歩約5分、南北線・都営大江戸線「麻布十番駅」から徒歩7分と複数駅からアクセスできます。
鉄筋コンクリート造で総戸数5戸の小規模な物件で、SOHO・事務所利用も相談可能です。オートロック、防犯カメラ、宅配ボックス、TVモニタホン、セコム警備など充実したセキュリティ設備を備えています。
床暖房やフルオートバスなど高品質な住居設備も整っており、住居兼オフィスとしての利用にも適しています。六本木の中心部に位置しながらも落ち着いた環境で、クリエイティブ業種やスモールオフィスに最適な物件です。
無料相談で理想のオフィスを見つけましょう
東京で賃貸オフィスをお探しなら、仲介手数料0円の東京オフィスチェックにお任せください。
移転をお考えの方も、お迷いの方も、メールフォームやお電話でお気軽にご相談ください。
ガーデニア六本木 のアクセス
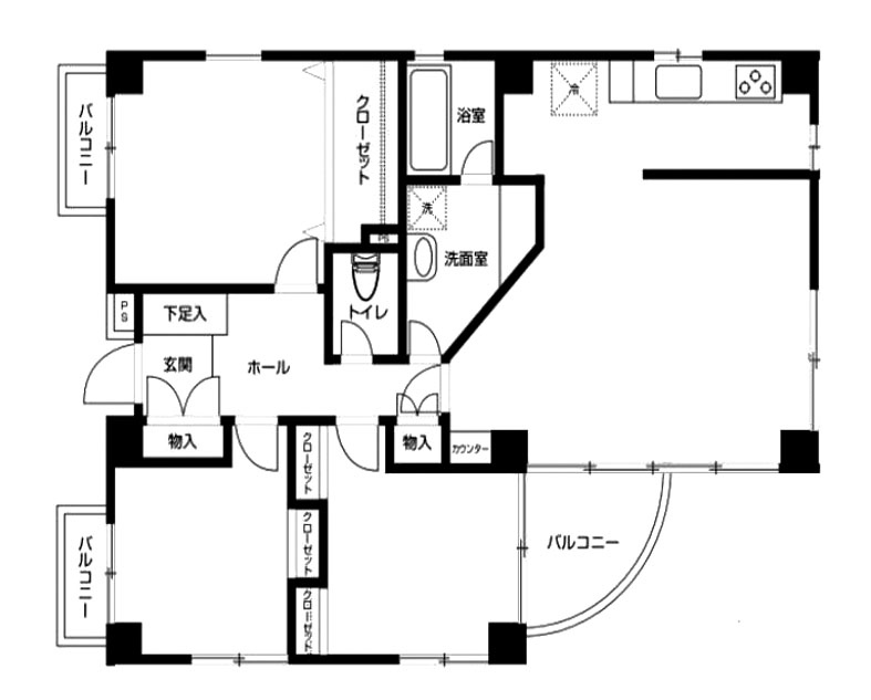
ガーデニア六本木 の募集中区画
| 階数 | 面積 | 賃料 | 共益費 | 保証金/敷金 | 入居可能日 | 検討リスト | 詳細 | 問合せ |
|---|---|---|---|---|---|---|---|---|
| 201 | 30.00坪 | 600,000円 | 込 | 6ヶ月 | 即 | 詳細 > ガーデニア六本木 201 (99.17㎡) |港区 の賃貸オフィス・セットアップオフィス | お問い合わせ > |
この区画にオススメのレイアウト
-
オフィスサンプルレイアウト120
- 広さ
- 30.2坪(100㎡)
- 会議室
- あり
- 従業員数
- 12
-
オフィスサンプルレイアウト118
- 広さ
- 40.2坪(133㎡)
- 会議室
- なし
- 従業員数
- 20
-
オフィスサンプルレイアウト117
- 広さ
- 22.6坪(75㎡)
- 会議室
- あり
- 従業員数
- 11
-
オフィスサンプルレイアウト116
- 広さ
- 39.9坪(132㎡)
- 会議室
- あり
- 従業員数
- 11
ガーデニア六本木 の条件に近い物件
-
エル麻布矢島ビル
東京都港区麻布十番2-8-8
- 面積
- 14.07坪 〜
- 空きフロア
- 1
- 最寄り駅
- 麻布十番 徒歩 2分
-
野沢ビル
東京都港区六本木3-11-6
- 面積
- 15坪 〜
- 空きフロア
- 1
- 最寄り駅
- 六本木 徒歩 2分
-
ソレアード六本木
東京都港区六本木3-3-17
- 面積
- 31.47坪 〜
- 空きフロア
- 1
- 最寄り駅
- 六本木一丁目 徒歩 3分
-
六本木グランドプラザ
東京都港区六本木3-1-25
- 面積
- 坪 〜
- 空きフロア
- 0
- 最寄り駅
- 六本木一丁目 徒歩 1分
ガーデニア六本木 の近隣のエリア・駅から探す
オフィス移転・物件探しを無料でサポートします
物件探しだけでは、オフィス移転は成功しません。
私たちは単なる「物件紹介会社」ではありません。オフィス移転にかかる費用総額を最小化する専門会社です。物件契約時の仲介手数料0円に加え、内装工事も中間マージンを排除した適正価格でご提案し、トータルコストを大幅に削減します。「希望の物件が見つからない」「移転費用を抑えたい」など、移転をお考えの方はメールまたはお電話でお気軽にご相談ください。



