- 物件番号
- 249531-252895
| 階数 | 502 |
|---|---|
| 用途/仕様 | 事務所 |
| 面積 | 37.86坪(125.16㎡) |
| 賃料 | |
| 共益費 | |
| 保証金/敷金 | |
| 入居日 | 2025/9/上 |
| 所在地 | 神奈川県横浜市神奈川区神奈川2-16-15 |
| 竣工 | 1993年8月 |
| 最寄り駅 |
JR京浜東北線 東神奈川 徒歩 5分 急本線 仲木戸 徒歩 5分 |
| 構造 | SRC造(鉄骨鉄筋コンクリート造) |
ポイント
イワサワビルは、横浜市神奈川区神奈川2丁目に位置する地上8階建ての鉄骨鉄筋コンクリート造オフィスビルです。1993年8月竣工の新耐震基準適合物件で、JR京浜東北線東神奈川駅および京急本線京急東神奈川駅からそれぞれ徒歩5分と、2路線2駅が利用可能な好アクセスを実現しています。
第一京浜(国道15号線)沿いに面した視認性の高い立地が特徴で、エレベーターは2基設置されています。個別空調、OAフロア(50mm)、機械警備、男女別トイレなど、オフィスビルとしての基本設備が充実しており、24時間利用が可能です。機械式立体駐車場も完備されており、車でのアクセスにも対応しています。
高速道路出入口にも近く、横浜駅周辺エリアへのアクセスも良好です。東神奈川駅周辺は複数の商業施設や飲食店が点在しており、日常のビジネス利用に便利な環境が整っています。株式会社イワサワが所有・管理するビルで、安定した管理体制のもと運営されています。
無料相談で理想のオフィスを見つけましょう
東京で賃貸オフィスをお探しなら、仲介手数料0円の東京オフィスチェックにお任せください。
移転をお考えの方も、お迷いの方も、メールフォームやお電話でお気軽にご相談ください。
イワサワビル のアクセス
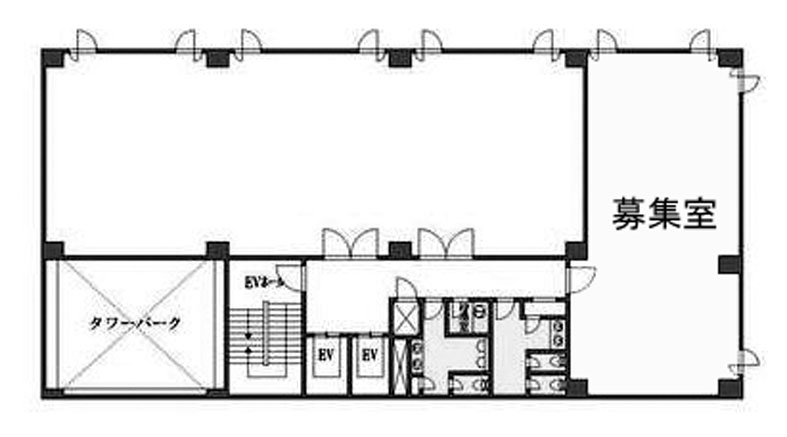
イワサワビル の募集中区画
この区画にオススメのレイアウト
-
オフィスサンプルレイアウト120
- 広さ
- 30.2坪(100㎡)
- 会議室
- あり
- 従業員数
- 12
-
オフィスサンプルレイアウト118
- 広さ
- 40.2坪(133㎡)
- 会議室
- なし
- 従業員数
- 20
-
オフィスサンプルレイアウト117
- 広さ
- 22.6坪(75㎡)
- 会議室
- あり
- 従業員数
- 11
-
オフィスサンプルレイアウト116
- 広さ
- 39.9坪(132㎡)
- 会議室
- あり
- 従業員数
- 11
イワサワビル の条件に近い物件
-
グランドールセンター北
神奈川県横浜市都筑区中川中央1-8-11
- 面積
- 22.35坪 〜
- 空きフロア
- 1
- 最寄り駅
- センター北 徒歩 3分
-
東建シティハイツ鶴見中央
神奈川県横浜市鶴見区鶴見中央3-21-9
- 面積
- 21.8坪 〜
- 空きフロア
- 4
- 最寄り駅
- 京急鶴見 徒歩 8分
-
市ヶ尾内野ビル
神奈川県横浜市青葉区市ケ尾町1170-6
- 面積
- 26.88坪 〜
- 空きフロア
- 1
- 最寄り駅
- 市が尾 徒歩 4分
-
ウエインズ&イッセイ横浜ビル
神奈川県横浜市西区花咲町7-150
- 面積
- 31.33坪 〜
- 空きフロア
- 7
- 最寄り駅
- 高島町 徒歩 1分
イワサワビル の近隣のエリア・駅から探す
オフィス移転・物件探しを無料でサポートします
物件探しだけでは、オフィス移転は成功しません。
私たちは単なる「物件紹介会社」ではありません。オフィス移転にかかる費用総額を最小化する専門会社です。物件契約時の仲介手数料0円に加え、内装工事も中間マージンを排除した適正価格でご提案し、トータルコストを大幅に削減します。「希望の物件が見つからない」「移転費用を抑えたい」など、移転をお考えの方はメールまたはお電話でお気軽にご相談ください。
