- 物件番号
- 236875-264993
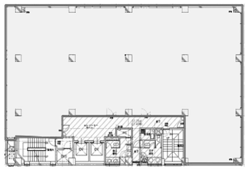
| 階数 | 2階 |
|---|---|
| 用途/仕様 | 事務所 |
| 面積 | 134.31坪(444.00㎡) |
| 賃料 | 相談 |
| 共益費 | 相談 |
| 保証金/敷金 | 相談 |
| 入居日 | 即 |
| 所在地 | 神奈川県横浜市港北区新横浜2-5-14 |
| 竣工 | 1988年3月 |
| 最寄り駅 |
相鉄新横浜線 新横浜 徒歩 1分 JR横浜線 新横浜 徒歩 3分 |
| 構造 | SRC造(鉄骨鉄筋コンクリート造) |
ポイント
WISE NEXT 新横浜は、神奈川県横浜市港北区新横浜2丁目に位置するSRC造地上9階・地下1階建てのオフィスビルです。相鉄新横浜線新横浜駅から徒歩1分、JR横浜線新横浜駅から徒歩3分と駅至近の好立地にあります。個別空調・男女別トイレ・機械警備を完備。新横浜エリアは東海道新幹線の停車駅として全国からのアクセスに優れ、周辺には横浜アリーナ、日産スタジアム、新横浜ラーメン博物館などの大型施設が集積。飲食店やコンビニも充実しており、ビジネス拠点として高いポテンシャルを持つ物件です。
無料相談で理想のオフィスを見つけましょう
東京で賃貸オフィスをお探しなら、仲介手数料0円の東京オフィスチェックにお任せください。
移転をお考えの方も、お迷いの方も、メールフォームやお電話でお気軽にご相談ください。
WISE NEXT 新横浜 のアクセス
WISE NEXT 新横浜 の募集中区画
| 階数 | 面積 | 賃料 | 共益費 | 保証金/敷金 | 入居可能日 | 検討リスト | 詳細 | 問合せ |
|---|---|---|---|---|---|---|---|---|
| 901B | 28.61坪 | 相談 | 相談 | 相談 | 2026/6/1 | 詳細 > WISE NEXT 新横浜 901B (94.58㎡) |その他(神奈川) の賃貸オフィス・セットアップオフィス | お問い合わせ > | |
| 2階 | 134.31坪 | 相談 | 相談 | 相談 | 即 | 詳細 > WISE NEXT 新横浜 2 (444㎡) |その他(神奈川) の賃貸オフィス・セットアップオフィス | お問い合わせ > |
この区画にオススメのレイアウト
-
オフィスサンプルレイアウト122
- 広さ
- 159.4坪(527㎡)
- 会議室
- あり
- 従業員数
- 50
-
オフィスサンプルレイアウト121
- 広さ
- 189.5坪(627㎡)
- 会議室
- あり
- 従業員数
- 80
-
オフィスサンプルレイアウト113
- 広さ
- 113.4坪(375㎡)
- 会議室
- あり
- 従業員数
- 84
-
オフィスサンプルレイアウト107
- 広さ
- 260.7坪(862㎡)
- 会議室
- あり
- 従業員数
- 96
WISE NEXT 新横浜 の条件に近い物件
-
アクアリアタワー横浜
神奈川県横浜市神奈川区新浦島町1-1-32
- 面積
- 256.44坪 〜
- 空きフロア
- 42
- 最寄り駅
- 神奈川新町 徒歩 8分
-
ベルフェリーク横濱山下町
神奈川県横浜市中区山下町127-1
- 面積
- 23.52坪 〜
- 空きフロア
- 1
- 最寄り駅
- 元町・中華街 徒歩 6分
-
メゾン滝頭
神奈川県横浜市磯子区丸山2-20-16
- 面積
- 17.1坪 〜
- 空きフロア
- 1
- 最寄り駅
- 根岸 徒歩 22分
-
横浜ウエストサイドビル
神奈川県横浜市西区北幸2-15-10
- 面積
- 55.71坪 〜
- 空きフロア
- 1
- 最寄り駅
- 横浜 徒歩 11分
WISE NEXT 新横浜 の近隣のエリア・駅から探す
オフィス移転・物件探しを無料でサポートします
物件探しだけでは、オフィス移転は成功しません。
私たちは単なる「物件紹介会社」ではありません。オフィス移転にかかる費用総額を最小化する専門会社です。物件契約時の仲介手数料0円に加え、内装工事も中間マージンを排除した適正価格でご提案し、トータルコストを大幅に削減します。「希望の物件が見つからない」「移転費用を抑えたい」など、移転をお考えの方はメールまたはお電話でお気軽にご相談ください。



