- 物件番号
- 100092
| 所在地 | 東京都港区芝公園2-9-3 |
|---|---|
| 竣工 | 2025年4月 |
| 最寄り駅 |
都営三田線 芝公園 徒歩 4分 JR山手線 浜松町 徒歩 7分 |
| 構造 | RC造(鉄筋コンクリート造) |
| 階数 | 地上5階 |
| エレベータ | 1基 |
| 空調 | 個別空調 |
| トイレ | 男女別 |
| 警備 | 機械警備 |
| 使用時間 | 24時間使用可 |
ポイント
芝ファールビルディングは、港区芝公園2丁目に所在するオフィスビルです。都営三田線芝公園駅から徒歩4分、JR山手線浜松町駅から徒歩7分の立地にあります。RC造地上5階建てで、個別空調・男女別トイレ・機械警備を完備しています。目の前には芝公園の緑が広がり、東京タワーや増上寺が間近に望める環境です。芝大神宮も徒歩圏内にあり、歴史と自然に囲まれた落ち着いた雰囲気の中、快適なオフィスワークを実現できるビルです。
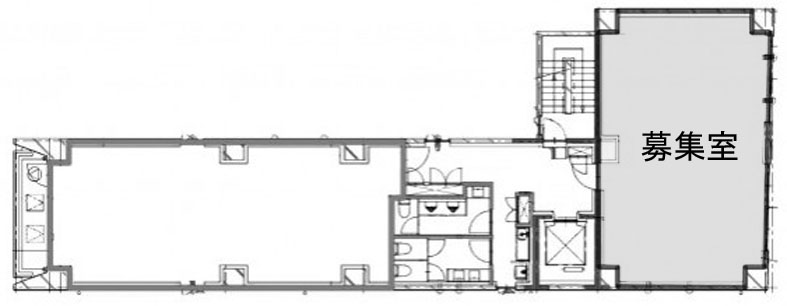
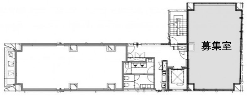
芝ファールビルディング の募集中区画
| 階数 | 面積(坪) | 賃料(円) | 共益費 | 保証金/敷金 | 入居可能日 | 検討リスト | 詳細 | 問合せ |
|---|---|---|---|---|---|---|---|---|
| 4B | 20.28坪 | 507,000円 | 込 | 10ヶ月 | 即 | 詳細 > 芝ファールビルディング 4B (67.04㎡) |浜松町・芝公園・高輪エリア の賃貸オフィス・セットアップオフィス | お問い合わせ > | |
| 3B | 20.28坪 | 507,000円 | 込 | 10ヶ月 | 即 | 詳細 > 芝ファールビルディング 3B (67.04㎡) |浜松町・芝公園・高輪エリア の賃貸オフィス・セットアップオフィス | お問い合わせ > |
無料相談で理想のオフィスを見つけましょう
東京で賃貸オフィスをお探しなら、仲介手数料0円の東京オフィスチェックにお任せください。
移転をお考えの方も、お迷いの方も、メールフォームやお電話でお気軽にご相談ください。
芝ファールビルディング のアクセス
芝ファールビルディング の近隣のエリア・駅から探す
芝ファールビルディング の募集終了区画
芝ファールビルディング の条件に近い物件
オフィス移転・物件探しを無料でサポートします
物件探しだけでは、オフィス移転は成功しません。
私たちは単なる「物件紹介会社」ではありません。オフィス移転にかかる費用総額を最小化する専門会社です。物件契約時の仲介手数料0円に加え、内装工事も中間マージンを排除した適正価格でご提案し、トータルコストを大幅に削減します。「希望の物件が見つからない」「移転費用を抑えたい」など、移転をお考えの方はメールまたはお電話でお気軽にご相談ください。


