- 物件番号
- 56142-94079
| 階数 | 904 |
|---|---|
| 用途/仕様 | 事務所 |
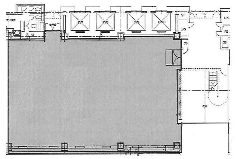
| 面積 | 79.23坪(261.92㎡) |
| 賃料 | |
| 共益費 | |
| 保証金/敷金 | |
| 入居日 | 即 |
| 所在地 | 東京都目黒区下目黒1-8-1 |
| 竣工 | 1991年10月 |
| 最寄り駅 |
JR山手線 目黒 徒歩 4分 都営三田線 目黒 徒歩 4分 |
| 構造 | S造(鉄骨造) |
ポイント
ARCO TOWERは東京都目黒区下目黒1-8-1に位置するオフィスビルです。1991年に竣工し、最寄り駅は都営三田線「目黒」駅から徒歩4分の好立地です。目黒エリアを代表するランドマークビルで、目黒雅叙園の敷地内にあり、緑が多く目黒川も近いため自然が豊かな環境です。地上19階建ての流線形の外観で、開放感のある広々とした高級感あふれるエントランスに、20基のエレベーターを完備。ビル内には食堂や飲食店、コンビニ、スポーツジムなどさまざまな施設が揃っています。大手企業や外資系企業が多数入居しており、安心感のあるビルです。ぜひ一度ご内見ください。
無料相談で理想のオフィスを見つけましょう
東京で賃貸オフィスをお探しなら、仲介手数料0円の東京オフィスチェックにお任せください。
移転をお考えの方も、お迷いの方も、メールフォームやお電話でお気軽にご相談ください。
ARCO TOWER のアクセス
ARCO TOWER の募集中区画
| 階数 | 面積 | 賃料 | 共益費 | 保証金/敷金 | 入居可能日 | 検討リスト | 詳細 | 問合せ |
|---|---|---|---|---|---|---|---|---|
| 401 | 323.89坪 | 相談 | 込 | 12ヶ月 | 即 | 詳細 > ARCO TOWER 401 (1070.71㎡) |目黒区 の賃貸オフィス・セットアップオフィス | お問い合わせ > | |
| 502 | 431.12坪 | 相談 | 込 | 12ヶ月 | 2026/8 | 詳細 > ARCO TOWER 502 (1425.19㎡) |目黒区 の賃貸オフィス・セットアップオフィス | お問い合わせ > | |
| 1401 | 863.14坪 | 相談 | 込 | 12ヶ月 | 相談 | 詳細 > ARCO TOWER 1401 (2853.36㎡) |目黒区 の賃貸オフィス・セットアップオフィス | お問い合わせ > | |
| 1601 | 281.87坪 | 相談 | 込 | 12ヶ月 | 相談 | 詳細 > ARCO TOWER 1601 (931.8㎡) |目黒区 の賃貸オフィス・セットアップオフィス | お問い合わせ > | |
| 1603 | 280.33坪 | 相談 | 込 | 12ヶ月 | 相談 | 詳細 > ARCO TOWER 1603 (926.71㎡) |目黒区 の賃貸オフィス・セットアップオフィス | お問い合わせ > | |
| 1901 | 885.96坪 | 相談 | 込 | 12ヶ月 | 相談 | 詳細 > ARCO TOWER 1901 (2928.79㎡) |目黒区 の賃貸オフィス・セットアップオフィス | お問い合わせ > |
この区画にオススメのレイアウト
-
オフィスサンプルレイアウト123
- 広さ
- 53.5坪(177㎡)
- 会議室
- あり
- 従業員数
- 11
-
オフィスサンプルレイアウト119
- 広さ
- 85坪(281㎡)
- 会議室
- あり
- 従業員数
- 31
-
オフィスサンプルレイアウト112
- 広さ
- 71.3坪(236㎡)
- 会議室
- あり
- 従業員数
- 33
-
オフィスサンプルレイアウト111
- 広さ
- 85.5坪(283㎡)
- 会議室
- あり
- 従業員数
- 31
ARCO TOWER の近隣のエリア・駅から探す
オフィス移転・物件探しを無料でサポートします
物件探しだけでは、オフィス移転は成功しません。
私たちは単なる「物件紹介会社」ではありません。オフィス移転にかかる費用総額を最小化する専門会社です。物件契約時の仲介手数料0円に加え、内装工事も中間マージンを排除した適正価格でご提案し、トータルコストを大幅に削減します。「希望の物件が見つからない」「移転費用を抑えたい」など、移転をお考えの方はメールまたはお電話でお気軽にご相談ください。







