- 物件番号
- 55783
| 所在地 | 東京都渋谷区渋谷1-11-6 |
|---|---|
| 竣工 | 1988年5月 |
| 最寄り駅 |
JR山手線 渋谷 徒歩 4分 東京メトロ銀座線 表参道 徒歩 10分 |
| 構造 | SRC造(鉄骨鉄筋コンクリート造) |
| 階数 | 地上7階 |
| エレベータ | 1基 |
| 空調 | 個別空調 |
| トイレ | 男女別 |
| 警備 | 機械警備 |
| 使用時間 | 24時間使用可 |
ポイント
渋谷区渋谷1丁目に位置するオフィスビルです。渋谷駅徒歩4分表参道駅徒歩10分2駅2路線の好立地。様々なカルチャー文化を発信してる中心地、渋谷エリア。1988年築SRC造地上7階建。センター街側の派手さはないが美竹通りの閑静なオシャレエリアもいい。オシャレな街でお探しの方は是非ご検討下さい。
渋谷111ビル の募集中区画
現在、募集中の区画はありません
無料相談で理想のオフィスを見つけましょう
東京で賃貸オフィスをお探しなら、仲介手数料0円の東京オフィスチェックにお任せください。
移転をお考えの方も、お迷いの方も、メールフォームやお電話でお気軽にご相談ください。
渋谷111ビル のアクセス
渋谷111ビル の近隣のエリア・駅から探す
渋谷111ビル の募集終了区画
| 階数 | 面積(坪) | 賃料(円) | 共益費 | 保証金/敷金 | 入居可能日 | 詳細 |
|---|---|---|---|---|---|---|
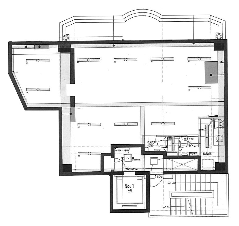
| 2階 | 57.65坪 | ー | ー | ー | 募集終了 | 詳細 > 渋谷111ビル 2 (190.58㎡) |渋谷・道玄坂・神宮前エリア の賃貸オフィス・セットアップオフィス |
| 3階 | 57.08坪 | ー | ー | ー | 募集終了 | 詳細 > 渋谷111ビル 3 (188.69㎡) |渋谷・道玄坂・神宮前エリア の賃貸オフィス・セットアップオフィス |
| 4階 | 46.27坪 | ー | ー | ー | 募集終了 | 詳細 > 渋谷111ビル 4 (152.96㎡) |渋谷・道玄坂・神宮前エリア の賃貸オフィス・セットアップオフィス |
| 7階 | 20.45坪 | ー | ー | ー | 募集終了 | 詳細 > 渋谷111ビル 7 (67.6㎡) |渋谷・道玄坂・神宮前エリア の賃貸オフィス・セットアップオフィス |
渋谷111ビル の条件に近い物件
オフィス移転・物件探しを無料でサポートします
物件探しだけでは、オフィス移転は成功しません。
私たちは単なる「物件紹介会社」ではありません。オフィス移転にかかる費用総額を最小化する専門会社です。物件契約時の仲介手数料0円に加え、内装工事も中間マージンを排除した適正価格でご提案し、トータルコストを大幅に削減します。「希望の物件が見つからない」「移転費用を抑えたい」など、移転をお考えの方はメールまたはお電話でお気軽にご相談ください。






