- 物件番号
- 55634-67391
| 階数 | 4 |
|---|---|
| 用途/仕様 | 事務所 |
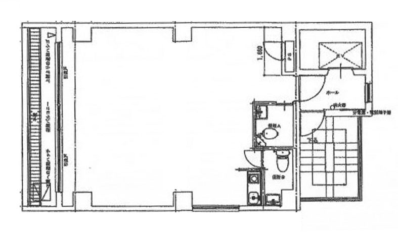
| 面積 | 17.10坪(56.53㎡) |
| 賃料 | 171,000円(10,000円/坪) |
| 共益費 | 51,300円 |
| 保証金/敷金 | 10ヶ月 |
| 入居日 | 即 |
| 所在地 | 東京都港区西新橋1-22-7 |
| 竣工 | 1973年1月 |
| 最寄り駅 |
銀座線 虎ノ門 徒歩 3分 都営三田線 内幸町 徒歩 4分 |
| 構造 | RC造 |
ポイント
港区西新橋1丁目に位置するオフィスビルです。虎ノ門駅徒歩3分内幸町駅徒歩4分2駅2路線の好立地。企業の街、新橋エリアに立ち並ぶビル街。1973年築RC造地上6階建の建物。閑静な通りで様々な飲食店が立ち並ぶ。高度経済成長期からずっと新橋の成長を見守ってきた歴史ある建物の1つ。様々なジャンルの企業が集まる街でお探しの方はぜひご検討ください。
無料相談で理想のオフィスを見つけましょう
東京で賃貸オフィスをお探しなら、仲介手数料0円の東京オフィスチェックにお任せください。
移転をお考えの方も、お迷いの方も、メールフォームやお電話でお気軽にご相談ください。
丸万7号館 のアクセス
丸万7号館 の募集中区画
| 階数 | 面積 | 賃料 | 共益費 | 保証金/敷金 | 入居可能日 | 検討リスト | 詳細 |
|---|---|---|---|---|---|---|---|
| 4 | 17.10坪 | 171,000円 | 51,300円 | 10ヶ月 | 即 | 詳細 |
この区画にオススメのレイアウト
-
オフィスサンプルレイアウト98
- 広さ
- 14.7坪(49㎡)
- 会議室
- あり
- 従業員数
- 4
-
オフィスサンプルレイアウト70
- 広さ
- 14.4坪(48㎡)
- 会議室
- あり
- 従業員数
- 5
-
オフィスサンプルレイアウト64
- 広さ
- 16.8坪(56㎡)
- 会議室
- あり
- 従業員数
- 5
-
オフィスサンプルレイアウト61
- 広さ
- 15.6坪(52㎡)
- 会議室
- あり
- 従業員数
- 7
丸万7号館 の近隣のエリア・駅から探す
オフィス移転・物件探しを無料でサポートします
物件探しだけでは、オフィス移転は成功しません。
私たちは単なる「物件紹介会社」ではありません。オフィス移転にかかる費用総額を最小化する専門会社です。物件契約時の仲介手数料0円に加え、内装工事も中間マージンを排除した適正価格でご提案し、トータルコストを大幅に削減します。「希望の物件が見つからない」「移転費用を抑えたい」など、移転をお考えの方はメールまたはお電話でお気軽にご相談ください。

