- 物件番号
- 55418-69726
| 階数 | 4階 |
|---|---|
| 用途/仕様 | 事務所・店舗 |
| 面積 | 23.26坪(76.89㎡) |
| 賃料 | |
| 共益費 | |
| 保証金/敷金 | |
| 入居日 | |
| 所在地 | 神奈川県横浜市中区元町2-84-2 |
| 竣工 | 1988年6月 |
| 最寄り駅 |
みなとみらい線 元町・中華街 徒歩 3分 JR京浜東北線 石川町 徒歩 6分 |
| 構造 | RC造(鉄筋コンクリート造) |
ポイント
パサージュ元町は、神奈川県横浜市中区元町2丁目に位置する賃貸オフィスビルです。元町エリアは洗練されたショップやカフェが立ち並ぶ横浜屈指のおしゃれなビジネス・商業エリアとして知られ、企業のブランドイメージ向上にも寄与するロケーションです。 アクセスは、みなとみらい線元町・中華街駅から徒歩3分、JR京浜東北線石川町駅から徒歩6分と2路線が利用可能で、通勤・来客対応ともに優れた立地となっています。 RC造(鉄筋コンクリート造)地上7階建て、1988年竣工で築38年のビルです。新耐震基準に適合しており安心してご利用いただけます。エレベーター完備で、上階へのアクセスもスムーズです。 周辺には横浜中華街が徒歩圏内にあり、ランチタイムの選択肢が豊富です。駅構内にはニューデイズ石川町店があるほか、元町商店街沿いにはカフェや飲食店が多数軒を連ねており、日常の買い物や食事に不自由しません。 ブランド力のある元町エリアに拠点を構えたいクリエイティブ企業やデザイン事務所など、立地のイメージを重視する企業に最適です。築年数が経過しているため、内見時には共用部の設備状況や水回りの使い勝手をご確認ください。
無料相談で理想のオフィスを見つけましょう
東京で賃貸オフィスをお探しなら、仲介手数料0円の東京オフィスチェックにお任せください。
移転をお考えの方も、お迷いの方も、メールフォームやお電話でお気軽にご相談ください。
パサージュ元町 のアクセス
パサージュ元町 の募集中区画
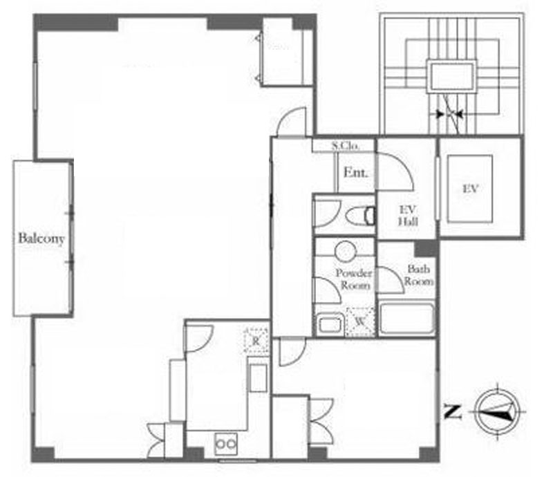
| 階数 | 面積 | 賃料 | 共益費 | 保証金/敷金 | 入居可能日 | 検討リスト | 詳細 | 問合せ |
|---|---|---|---|---|---|---|---|---|
| 2階 | 23.27坪 | 400,000円 | 込 | 4ヶ月 | 2026/6/1 | 詳細 > パサージュ元町 2 (76.93㎡) |その他(神奈川) の賃貸オフィス・セットアップオフィス | お問い合わせ > |
この区画にオススメのレイアウト
-
オフィスサンプルレイアウト120
- 広さ
- 30.2坪(100㎡)
- 会議室
- あり
- 従業員数
- 12
-
オフィスサンプルレイアウト118
- 広さ
- 40.2坪(133㎡)
- 会議室
- なし
- 従業員数
- 20
-
オフィスサンプルレイアウト117
- 広さ
- 22.6坪(75㎡)
- 会議室
- あり
- 従業員数
- 11
-
オフィスサンプルレイアウト116
- 広さ
- 39.9坪(132㎡)
- 会議室
- あり
- 従業員数
- 11
パサージュ元町 の条件に近い物件
-
アクアリアタワー横浜
神奈川県横浜市神奈川区新浦島町1-1-32
- 面積
- 256.44坪 〜
- 空きフロア
- 42
- 最寄り駅
- 神奈川新町 徒歩 8分
-
ベルフェリーク横濱山下町
神奈川県横浜市中区山下町127-1
- 面積
- 23.52坪 〜
- 空きフロア
- 1
- 最寄り駅
- 元町・中華街 徒歩 6分
-
メゾン滝頭
神奈川県横浜市磯子区丸山2-20-16
- 面積
- 17.1坪 〜
- 空きフロア
- 1
- 最寄り駅
- 根岸 徒歩 22分
-
横浜ウエストサイドビル
神奈川県横浜市西区北幸2-15-10
- 面積
- 55.71坪 〜
- 空きフロア
- 1
- 最寄り駅
- 横浜 徒歩 11分
パサージュ元町 の近隣のエリア・駅から探す
オフィス移転・物件探しを無料でサポートします
物件探しだけでは、オフィス移転は成功しません。
私たちは単なる「物件紹介会社」ではありません。オフィス移転にかかる費用総額を最小化する専門会社です。物件契約時の仲介手数料0円に加え、内装工事も中間マージンを排除した適正価格でご提案し、トータルコストを大幅に削減します。「希望の物件が見つからない」「移転費用を抑えたい」など、移転をお考えの方はメールまたはお電話でお気軽にご相談ください。
