- 物件番号
- 55310-252910
| 階数 | 504 |
|---|---|
| 用途/仕様 | 事務所 |
| 面積 | 17.16坪(56.73㎡) |
| 賃料 | |
| 共益費 | |
| 保証金/敷金 | |
| 入居日 | 即 |
| 所在地 | 神奈川県横浜市港北区新横浜3-7-7 |
| 竣工 | 2001年10月 |
| 最寄り駅 |
ブルーライン 新横浜 徒歩 1分 JR横浜線 新横浜 徒歩 4分 |
| 構造 | S造(鉄骨造) |
ポイント
新横浜アリーナ通りビルは、神奈川県横浜市港北区新横浜3丁目に位置する賃貸オフィスビルです。横浜アリーナ沿いに立地し、新横浜エリアのメインストリートに面した視認性の高いオフィスビルです。 アクセスは、横浜市営地下鉄ブルーラインの新横浜駅から徒歩1分と圧倒的な駅近立地です。JR横浜線の新横浜駅からも徒歩4分で、複数路線を活用した機動的な移動が可能です。 2001年10月竣工のS造(鉄骨造)、地上6階建ての建物で、築25年です。新耐震基準に適合しており安心です。エレベーター2基完備、個別空調で各テナントが快適な温度管理を行えます。24時間使用可能です。 周辺には横浜アリーナが隣接しているほか、デイリーヤマザキ横浜アリーナ前店やセブンイレブンなどコンビニが複数あります。飲食店も豊富で、ランチタイムの選択肢に困ることはありません。 ブルーライン新横浜駅から徒歩1分という抜群のアクセスを活かしたいという課題を抱えている企業に最適です。ただし、セキュリティ設備がないため、機密性の高い業務を行う場合は独自のセキュリティ対策を別途検討する必要があります。
無料相談で理想のオフィスを見つけましょう
東京で賃貸オフィスをお探しなら、仲介手数料0円の東京オフィスチェックにお任せください。
移転をお考えの方も、お迷いの方も、メールフォームやお電話でお気軽にご相談ください。
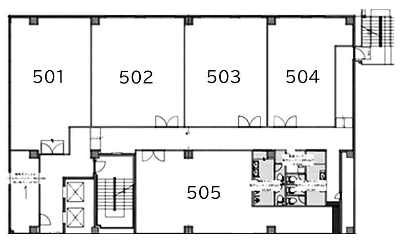
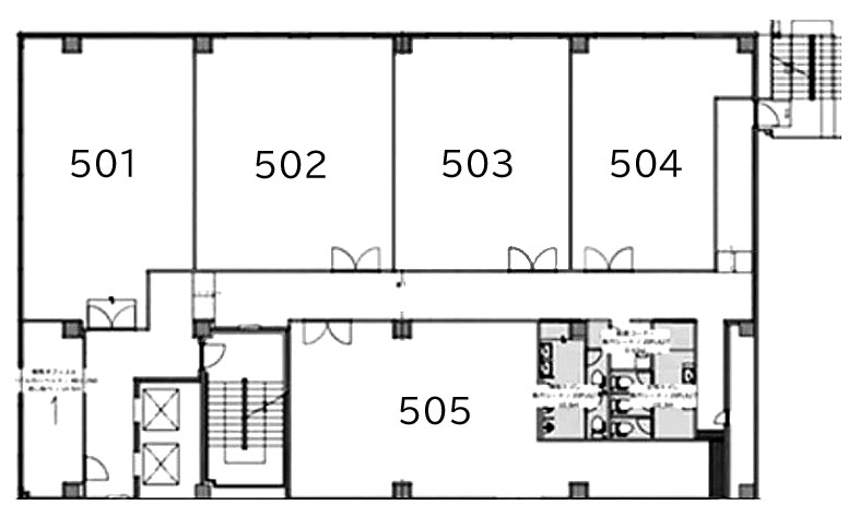
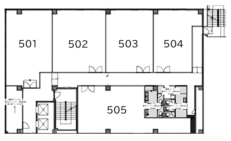
新横浜アリーナ通りビル のアクセス
新横浜アリーナ通りビル の募集中区画
| 階数 | 面積 | 賃料 | 共益費 | 保証金/敷金 | 入居可能日 | 検討リスト | 詳細 | 問合せ |
|---|---|---|---|---|---|---|---|---|
| 503 | 19.50坪 | 相談 | 込 | 12ヶ月 | 即 | 詳細 > 新横浜アリーナ通りビル 503 (64.46㎡) |その他(神奈川) の賃貸オフィス・セットアップオフィス | お問い合わせ > |
この区画にオススメのレイアウト
-
オフィスサンプルレイアウト98
- 広さ
- 14.7坪(49㎡)
- 会議室
- あり
- 従業員数
- 4
-
オフィスサンプルレイアウト70
- 広さ
- 14.4坪(48㎡)
- 会議室
- あり
- 従業員数
- 5
-
オフィスサンプルレイアウト64
- 広さ
- 16.8坪(56㎡)
- 会議室
- あり
- 従業員数
- 5
-
オフィスサンプルレイアウト61
- 広さ
- 15.6坪(52㎡)
- 会議室
- あり
- 従業員数
- 7
新横浜アリーナ通りビル の条件に近い物件
-
アクアリアタワー横浜
神奈川県横浜市神奈川区新浦島町1-1-32
- 面積
- 256.44坪 〜
- 空きフロア
- 42
- 最寄り駅
- 神奈川新町 徒歩 8分
-
ベルフェリーク横濱山下町
神奈川県横浜市中区山下町127-1
- 面積
- 23.52坪 〜
- 空きフロア
- 1
- 最寄り駅
- 元町・中華街 徒歩 6分
-
メゾン滝頭
神奈川県横浜市磯子区丸山2-20-16
- 面積
- 17.1坪 〜
- 空きフロア
- 1
- 最寄り駅
- 根岸 徒歩 22分
-
横浜ウエストサイドビル
神奈川県横浜市西区北幸2-15-10
- 面積
- 55.71坪 〜
- 空きフロア
- 1
- 最寄り駅
- 横浜 徒歩 11分
新横浜アリーナ通りビル の近隣のエリア・駅から探す
オフィス移転・物件探しを無料でサポートします
物件探しだけでは、オフィス移転は成功しません。
私たちは単なる「物件紹介会社」ではありません。オフィス移転にかかる費用総額を最小化する専門会社です。物件契約時の仲介手数料0円に加え、内装工事も中間マージンを排除した適正価格でご提案し、トータルコストを大幅に削減します。「希望の物件が見つからない」「移転費用を抑えたい」など、移転をお考えの方はメールまたはお電話でお気軽にご相談ください。


