- 物件番号
- 54101-69235
| 階数 | 3階 |
|---|---|
| 用途/仕様 | 事務所 |
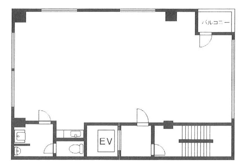
| 面積 | 22.46坪(74.25㎡) |
| 賃料 | |
| 共益費 | |
| 保証金/敷金 | |
| 入居日 | |
| 所在地 | 東京都文京区音羽1-20-16 |
| 竣工 | 1986年5月 |
| 最寄り駅 |
東京メトロ有楽町線 護国寺 徒歩 3分 東京メトロ有楽町線 江戸川橋 徒歩 7分 |
| 構造 | RC造(鉄筋コンクリート造) |
ポイント
PAL音羽ビルは、東京都文京区音羽1-20-16に位置するオフィスビルです。竣工は1986年、最寄り駅は東京メトロ有楽町線「護国寺」駅(徒歩3分)です。新耐震基準を満たした物件で、音羽通り沿いに立地。一階には美容室が入居中。ビル設備として、個別空調・エレベーター1基・OAフロア・光ファイバー対応・機械警備を完備しています。ぜひ一度ご内見いただき、立地や外観をご確認ください。
無料相談で理想のオフィスを見つけましょう
東京で賃貸オフィスをお探しなら、仲介手数料0円の東京オフィスチェックにお任せください。
移転をお考えの方も、お迷いの方も、メールフォームやお電話でお気軽にご相談ください。
PAL音羽ビル のアクセス
PAL音羽ビル の募集中区画
| 階数 | 面積 | 賃料 | 共益費 | 保証金/敷金 | 入居可能日 | 検討リスト | 詳細 | 問合せ |
|---|---|---|---|---|---|---|---|---|
| 7階 | 22.46坪 | 240,000円 | 込 | 10ヶ月 | 即 | 詳細 > PAL音羽ビル 7 (74.25㎡) |文京区 の賃貸オフィス・セットアップオフィス | お問い合わせ > |
この区画にオススメのレイアウト
-
オフィスサンプルレイアウト120
- 広さ
- 30.2坪(100㎡)
- 会議室
- あり
- 従業員数
- 12
-
オフィスサンプルレイアウト118
- 広さ
- 40.2坪(133㎡)
- 会議室
- なし
- 従業員数
- 20
-
オフィスサンプルレイアウト117
- 広さ
- 22.6坪(75㎡)
- 会議室
- あり
- 従業員数
- 11
-
オフィスサンプルレイアウト116
- 広さ
- 39.9坪(132㎡)
- 会議室
- あり
- 従業員数
- 11
PAL音羽ビル の条件に近い物件
-
ダイヤハイツ千駄木
東京都文京区千駄木2-34-5
- 面積
- 12.04坪 〜
- 空きフロア
- 1
- 最寄り駅
- 千駄木 徒歩 1分
-
小石川さくらビル
東京都文京区小石川5-10-5
- 面積
- 坪 〜
- 空きフロア
- 0
- 最寄り駅
- 茗荷谷 徒歩 5分
-
サイドビル茗荷谷
東京都文京区小石川5-4-1
- 面積
- 坪 〜
- 空きフロア
- 0
- 最寄り駅
- 茗荷谷 徒歩 3分
-
堀ビル
東京都文京区小日向4-5-9
- 面積
- 17.09坪 〜
- 空きフロア
- 1
- 最寄り駅
- 茗荷谷 徒歩 1分
PAL音羽ビル の近隣のエリア・駅から探す
オフィス移転・物件探しを無料でサポートします
物件探しだけでは、オフィス移転は成功しません。
私たちは単なる「物件紹介会社」ではありません。オフィス移転にかかる費用総額を最小化する専門会社です。物件契約時の仲介手数料0円に加え、内装工事も中間マージンを排除した適正価格でご提案し、トータルコストを大幅に削減します。「希望の物件が見つからない」「移転費用を抑えたい」など、移転をお考えの方はメールまたはお電話でお気軽にご相談ください。



