- 物件番号
- 54078-58466
| 階数 | 4階 |
|---|---|
| 用途/仕様 | 事務所 |
| 面積 | 33.48坪(110.68㎡) |
| 賃料 | |
| 共益費 | |
| 保証金/敷金 | |
| 入居日 | |
| 所在地 | 東京都文京区後楽1-7-12 |
| 竣工 | 1974年10月 |
| 最寄り駅 |
都営大江戸線 飯田橋 徒歩 5分 東京メトロ丸ノ内線 後楽園 徒歩 6分 JR中央・総武線 飯田橋 徒歩 8分 |
| 構造 | RC造(鉄筋コンクリート造) |
ポイント
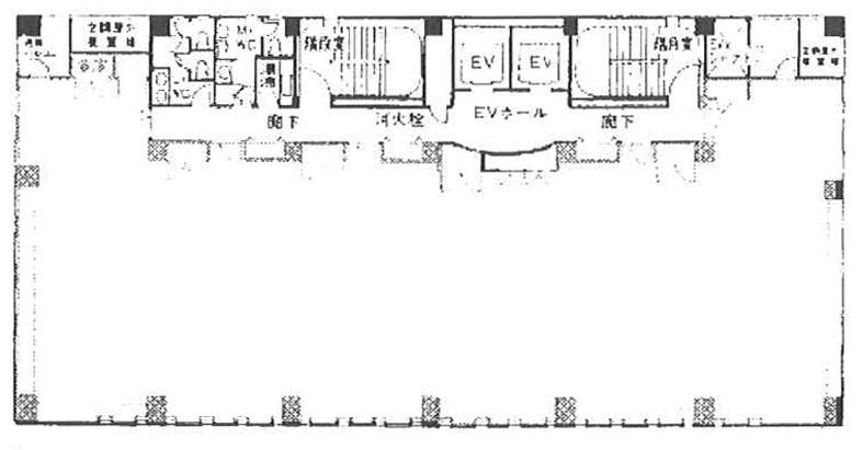
東京都文京区後楽にある地上6階地下1階の賃貸オフィス物件です。 最寄りは、都営大江戸線飯田橋駅徒歩5分、丸ノ内線後楽園駅徒歩6分、JR中央・総武線飯田橋駅徒歩8分です。 1974年竣工、間口が広く見栄えのする外観、天井も高く、奥行きのある間取りです。 分割区画が多く、水回りは室外、光ケーブル引込済、エレベーターは2基です。 見通しの良い通りの交差点の角地に立地し、前面道路から後楽園駅の前のラクーアが見えます。 後楽公園も近く、隣は後楽幼稚園、中央大学や中学校など教育機関が多いエリアです。
無料相談で理想のオフィスを見つけましょう
東京で賃貸オフィスをお探しなら、仲介手数料0円の東京オフィスチェックにお任せください。
移転をお考えの方も、お迷いの方も、メールフォームやお電話でお気軽にご相談ください。
林友ビル のアクセス
林友ビル の募集中区画
| 階数 | 面積 | 賃料 | 共益費 | 保証金/敷金 | 入居可能日 | 検討リスト | 詳細 | 問合せ |
|---|---|---|---|---|---|---|---|---|
| 3階 | 49.70坪 | 657,184円 | 198,800円 | 12ヶ月 | 即 | 詳細 > 林友ビル 3 (164.3㎡) |文京区 の賃貸オフィス・セットアップオフィス | お問い合わせ > | |
| 4階 | 91.41坪 | 1,208,715円 | 365,640円 | 12ヶ月 | 即 | 詳細 > 林友ビル 4 (302.18㎡) |文京区 の賃貸オフィス・セットアップオフィス | お問い合わせ > | |
| 5階 | 111.14坪 | 1,469,605円 | 444,560円 | 12ヶ月 | 即 | 詳細 > 林友ビル 5 (367.4㎡) |文京区 の賃貸オフィス・セットアップオフィス | お問い合わせ > |
この区画にオススメのレイアウト
-
オフィスサンプルレイアウト120
- 広さ
- 30.2坪(100㎡)
- 会議室
- あり
- 従業員数
- 12
-
オフィスサンプルレイアウト118
- 広さ
- 40.2坪(133㎡)
- 会議室
- なし
- 従業員数
- 20
-
オフィスサンプルレイアウト117
- 広さ
- 22.6坪(75㎡)
- 会議室
- あり
- 従業員数
- 11
-
オフィスサンプルレイアウト116
- 広さ
- 39.9坪(132㎡)
- 会議室
- あり
- 従業員数
- 11
林友ビル の条件に近い物件
-
ヒキタカ湯島ビル
東京都文京区湯島2-1-15
- 面積
- 28.6坪 〜
- 空きフロア
- 1
- 最寄り駅
- 御茶ノ水 徒歩 5分
-
水道橋外堀通ビル
東京都文京区後楽1-1-5
- 面積
- 59.99坪 〜
- 空きフロア
- 1
- 最寄り駅
- 水道橋 徒歩 2分
-
THE CROSS Hongo
東京都文京区本郷2-12-10
- 面積
- 57.1坪 〜
- 空きフロア
- 1
- 最寄り駅
- 本郷三丁目 徒歩 5分
-
サンコート湯島
東京都文京区湯島3-21-5
- 面積
- 25坪 〜
- 空きフロア
- 1
- 最寄り駅
- 湯島 徒歩 4分
林友ビル の近隣のエリア・駅から探す
オフィス移転・物件探しを無料でサポートします
物件探しだけでは、オフィス移転は成功しません。
私たちは単なる「物件紹介会社」ではありません。オフィス移転にかかる費用総額を最小化する専門会社です。物件契約時の仲介手数料0円に加え、内装工事も中間マージンを排除した適正価格でご提案し、トータルコストを大幅に削減します。「希望の物件が見つからない」「移転費用を抑えたい」など、移転をお考えの方はメールまたはお電話でお気軽にご相談ください。



