- 物件番号
- 53636-58904
- 情報更新日
- 2024.12.25
| 階数 | 401 |
|---|---|
| 用途/仕様 | 事務所・SOHO |
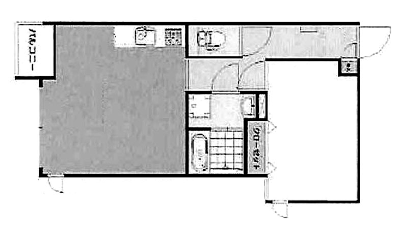
| 面積 | 12.55坪() |
| 賃料 | |
| 共益費 | |
| 預託金 | |
| 入居日 | |
| 所在地 | 東京都港区南麻布1-27-20 |
| 竣工 | 2019年1月 |
| 最寄り駅 |
南北線 麻布十番 徒歩 7分 南北線 白金高輪 徒歩 11分 都営大江戸線 光が丘 徒歩 7分 |
| 構造 | RC造 |
ポイント
東京都港区南麻布にある地上5階の賃貸オフィス物件です。 最寄りは、南北線麻布十番駅徒歩7分、都営大江戸線光が丘駅徒歩7分、南北線白金高輪駅徒歩11分です。 2019年竣工、麻布通りの南麻布一丁目交差点を西側に入った、静かな南麻布エリアの住宅地にある高級デザイナーズ物件です。 南向きで採光も抜群、白い壁面とライトグリーンのバルコニーのガラス面が新鮮です。 1フロアーに3室、1K・1LDKタイプ、事務所・SOHO用です。
無料相談で理想のオフィスを見つけましょう
東京で賃貸オフィスをお探しなら、仲介手数料0円の東京オフィスチェックにお任せください。
移転をお考えの方も、お迷いの方も、メールフォームやお電話でお気軽にご相談ください。
カーサ麻布アネックス のアクセス
カーサ麻布アネックス の募集中区画
| 階数 | 面積(坪) | 賃料(円) | 共益費(円) | 預託金 | 入居可能日 | 検討リスト | 詳細 | |
|---|---|---|---|---|---|---|---|---|
![]() |
402 | 12.11 | 258,000 | 18,000 | 3ヶ月 | 即 | 詳細 | |
![]() |
502 | 12.11 | 258,000 | 18,000 | 3ヶ月 | 即 | 詳細 |
この区画にオススメのレイアウト
-
オフィスサンプルレイアウト98
- 広さ
- 14.7坪(49㎡)
- 会議室
- あり
- 従業員数
- 4
-
オフィスサンプルレイアウト70
- 広さ
- 14.4坪(48㎡)
- 会議室
- あり
- 従業員数
- 5
-
オフィスサンプルレイアウト64
- 広さ
- 16.8坪(56㎡)
- 会議室
- あり
- 従業員数
- 5
-
オフィスサンプルレイアウト61
- 広さ
- 15.6坪(52㎡)
- 会議室
- あり
- 従業員数
- 7
カーサ麻布アネックス の近隣のエリア・駅から探す
お問い合わせ
無料相談で理想のオフィスを見つけましょう
東京で賃貸オフィスをお探しなら、仲介手数料0円の東京オフィスチェックにお任せください。移転をお考えの方も、お迷いの方も、メールフォームやお電話でお気軽にご相談ください。




